Your email has been sent.
Richmond Green 3420 Sarcee SW rd 1,052 - 14,602 SF of Retail Space Available in Calgary, AB T3E 4R1



ALL AVAILABLE SPACES(5)
Display Rental Rate as
- SPACE
- SIZE
- TERM
- RENTAL RATE
- SPACE USE
- CONDITION
- AVAILABLE
CRU?1 is a street-front shell retail unit (˜1,191 SF) ideal for tenants pursuing turnkey restaurant or café operations. It features a corner patio and direct frontage onto 33rd Avenue SW. Built to MU-1 zoning standards, it fits vibrant uses like ice cream shops, patisseries, cafés, or juice bars. Available for a 5–10-year lease starting Fall 2026. Shared parking (27 stalls total) and future green amenities enhance its appeal
- Located in-line with other retail
- Corner retail with patio
- Prime street frontage
- MU-1 zoned for F&B
- Central Air Conditioning
- Shell condition, flexible layout
- 5–10?yr lease term
At approximately 1,431SF, CRU2 is the largest unit available, offering expansive frontage and shell-condition interior ready for build-out. Also MU-1 zoned, the space suits bakeries, small plate restaurants, or tea rooms. It shares a central patio, access to 27 dedicated commercial parking stalls, and benefits from high pedestrian and vehicle traffic. Lease term is 5–10 years with occupancy beginning Q4 2026
- Located in-line with other retail
- Largest CRU w/ 1,431 SF
- Shared central patio access
- MU-1 zoning supports F&B
- Space is in Excellent Condition
- Shell condition for tenant fit-out
- High vehicular & foot traffic
CRU?3 offers ˜1,052?SF of corner shell retail space, perfect for niche or boutique food concepts like gelato shops, donut stores, or sandwich cafés. The unit has direct patio adjacency and MU-1 zoning. With a ground-floor location in a mixed-use building of 400 residential units, the space is supported by nearby programming such as tennis courts, parks, and future toboggan hill. Lease term is 5–10 years, with occupancy slated for Q4 2026
- Space is in Excellent Condition
- Corner shell retail unit
- MU-1 zoning, flexible fit
- 5–10?yr lease start Q4?2026
- Central Air Conditioning
- Patio access included
- Mixed-use community hub
Ideal for retail or service based uses.
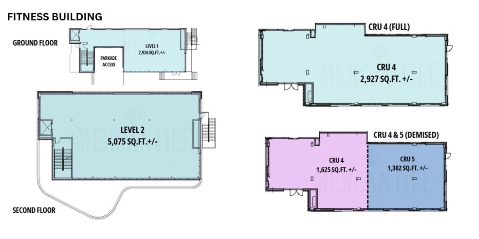
Specialty space in this mixed-use project designed for a fitness use. Spread across two levels, this space will have ample parking and located in the center of the complex for ideal exposure.
| Space | Size | Term | Rental Rate | Space Use | Condition | Available |
| 1st Floor, Ste CRU 1 | 1,191 SF | 5-10 Years | Upon Request Upon Request Upon Request Upon Request | Retail | Shell Space | September 01, 2026 |
| 1st Floor, Ste CRU 2 | 1,431 SF | 5-10 Years | Upon Request Upon Request Upon Request Upon Request | Retail | Shell Space | September 01, 2026 |
| 1st Floor, Ste CRU 3 | 1,052 SF | 5-10 Years | Upon Request Upon Request Upon Request Upon Request | Retail | Shell Space | September 01, 2026 |
| 1st Floor, Ste CRU 4 | 2,927 SF | 5-10 Years | Upon Request Upon Request Upon Request Upon Request | Retail | - | May 04, 2027 |
| 1st Floor, Ste FITNESS BUILDING | 8,001 SF | 5-10 Years | Upon Request Upon Request Upon Request Upon Request | Retail | - | May 04, 2027 |
1st Floor, Ste CRU 1
| Size |
| 1,191 SF |
| Term |
| 5-10 Years |
| Rental Rate |
| Upon Request Upon Request Upon Request Upon Request |
| Space Use |
| Retail |
| Condition |
| Shell Space |
| Available |
| September 01, 2026 |
1st Floor, Ste CRU 2
| Size |
| 1,431 SF |
| Term |
| 5-10 Years |
| Rental Rate |
| Upon Request Upon Request Upon Request Upon Request |
| Space Use |
| Retail |
| Condition |
| Shell Space |
| Available |
| September 01, 2026 |
1st Floor, Ste CRU 3
| Size |
| 1,052 SF |
| Term |
| 5-10 Years |
| Rental Rate |
| Upon Request Upon Request Upon Request Upon Request |
| Space Use |
| Retail |
| Condition |
| Shell Space |
| Available |
| September 01, 2026 |
1st Floor, Ste CRU 4
| Size |
| 2,927 SF |
| Term |
| 5-10 Years |
| Rental Rate |
| Upon Request Upon Request Upon Request Upon Request |
| Space Use |
| Retail |
| Condition |
| - |
| Available |
| May 04, 2027 |
1st Floor, Ste FITNESS BUILDING
| Size |
| 8,001 SF |
| Term |
| 5-10 Years |
| Rental Rate |
| Upon Request Upon Request Upon Request Upon Request |
| Space Use |
| Retail |
| Condition |
| - |
| Available |
| May 04, 2027 |
1st Floor, Ste CRU 1
| Size | 1,191 SF |
| Term | 5-10 Years |
| Rental Rate | Upon Request |
| Space Use | Retail |
| Condition | Shell Space |
| Available | September 01, 2026 |
CRU?1 is a street-front shell retail unit (˜1,191 SF) ideal for tenants pursuing turnkey restaurant or café operations. It features a corner patio and direct frontage onto 33rd Avenue SW. Built to MU-1 zoning standards, it fits vibrant uses like ice cream shops, patisseries, cafés, or juice bars. Available for a 5–10-year lease starting Fall 2026. Shared parking (27 stalls total) and future green amenities enhance its appeal
- Located in-line with other retail
- Central Air Conditioning
- Corner retail with patio
- Shell condition, flexible layout
- Prime street frontage
- 5–10?yr lease term
- MU-1 zoned for F&B
1st Floor, Ste CRU 2
| Size | 1,431 SF |
| Term | 5-10 Years |
| Rental Rate | Upon Request |
| Space Use | Retail |
| Condition | Shell Space |
| Available | September 01, 2026 |
At approximately 1,431SF, CRU2 is the largest unit available, offering expansive frontage and shell-condition interior ready for build-out. Also MU-1 zoned, the space suits bakeries, small plate restaurants, or tea rooms. It shares a central patio, access to 27 dedicated commercial parking stalls, and benefits from high pedestrian and vehicle traffic. Lease term is 5–10 years with occupancy beginning Q4 2026
- Located in-line with other retail
- Space is in Excellent Condition
- Largest CRU w/ 1,431 SF
- Shell condition for tenant fit-out
- Shared central patio access
- High vehicular & foot traffic
- MU-1 zoning supports F&B
1st Floor, Ste CRU 3
| Size | 1,052 SF |
| Term | 5-10 Years |
| Rental Rate | Upon Request |
| Space Use | Retail |
| Condition | Shell Space |
| Available | September 01, 2026 |
CRU?3 offers ˜1,052?SF of corner shell retail space, perfect for niche or boutique food concepts like gelato shops, donut stores, or sandwich cafés. The unit has direct patio adjacency and MU-1 zoning. With a ground-floor location in a mixed-use building of 400 residential units, the space is supported by nearby programming such as tennis courts, parks, and future toboggan hill. Lease term is 5–10 years, with occupancy slated for Q4 2026
- Space is in Excellent Condition
- Central Air Conditioning
- Corner shell retail unit
- Patio access included
- MU-1 zoning, flexible fit
- Mixed-use community hub
- 5–10?yr lease start Q4?2026
1st Floor, Ste CRU 4
| Size | 2,927 SF |
| Term | 5-10 Years |
| Rental Rate | Upon Request |
| Space Use | Retail |
| Condition | - |
| Available | May 04, 2027 |
Ideal for retail or service based uses.
1st Floor, Ste FITNESS BUILDING
| Size | 8,001 SF |
| Term | 5-10 Years |
| Rental Rate | Upon Request |
| Space Use | Retail |
| Condition | - |
| Available | May 04, 2027 |
Specialty space in this mixed-use project designed for a fitness use. Spread across two levels, this space will have ample parking and located in the center of the complex for ideal exposure.
SITE PLAN
PROPERTY FACTS
| Total Space Available | 14,602 SF | Apartment Style | Mid-Rise |
| No. Units | 364 | Building Size | 364,000 SF |
| Property Type | Multifamily | Year Built | 2026 |
| Property Subtype | Apartment | Construction Status | Under Construction |
| Total Space Available | 14,602 SF |
| No. Units | 364 |
| Property Type | Multifamily |
| Property Subtype | Apartment |
| Apartment Style | Mid-Rise |
| Building Size | 364,000 SF |
| Year Built | 2026 |
| Construction Status | Under Construction |
ABOUT THE PROPERTY
The Richmond Green development envisions three ground-floor commercial retail units integrated into a mixed-use building featuring 400 residential units. Designed with a strong focus on community and family living, the project aims to become a vibrant destination where retail and recreation seamlessly come together in a dynamic, neighborhood-oriented setting.
NEARBY MAJOR RETAILERS
Presented by
Richmond Green | 3420 Sarcee SW rd
Hmm, there seems to have been an error sending your message. Please try again.
Thanks! Your message was sent.
