Enter your email to login or create a free account
This feature is unavailable at the moment.
We apologize, but the feature you are trying to access is currently unavailable. We are aware of this issue and our team is working hard to resolve the matter.
Please check back in a few minutes. We apologize for the inconvenience.
- LoopNet Team
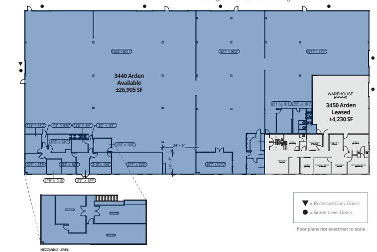
3440-3450 Arden Rd
Hayward, CA 94545
Property For Lease

Highlights
- ±26,905 SF Available for Lease or ±31,135 SF Available for Sale.
Property Overview
Rare opportunity to lease or purchase a light industrial/ manufacturing building located in the heart of the Hayward/East Bay market. The Property offers prime street frontage on Arden Rd and is conveniently located with easy and immediate access to Highway 92, Highway 880, and Foster City/Peninsula via San Mateo Bridge. Additionally the premises is in close proximity to Highway 84/Dumbarton Bridge, The San Francisco and Oakland International Airports the Port of Oakland and the Silicon Valley
Property Facts
| Property Type | Industrial | Rentable Building Area | 31,295 SF |
| Property Subtype | Manufacturing | Year Built | 1979 |
| Property Type | Industrial |
| Property Subtype | Manufacturing |
| Rentable Building Area | 31,295 SF |
| Year Built | 1979 |
Features and Amenities
- Fenced Lot
Utilities
- Water - City
- Sewer - City
Attachments
| 3440-3450 Arden Rd Brochure |
| Colliers direct lease |
Listing ID: 36218186
Date on Market: 6/11/2025
Last Updated:
Address: 3440-3450 Arden Rd, Hayward, CA 94545
The East Outer Fremont Industrial Property at 3440-3450 Arden Rd, Hayward, CA 94545 is no longer being advertised on LoopNet.com. Contact the broker for information on availability.
INDUSTRIAL PROPERTIES IN NEARBY NEIGHBORHOODS
- Baylands Commercial Real Estate Properties
- Davis Tract Commercial Real Estate Properties
- Russell City/West Outer Hayward Commercial Real Estate Properties
- Central Downtown Commercial Real Estate Properties
- Marina Faire Commercial Real Estate Properties
- Redwood Shores Commercial Real Estate Properties
- Floresta Gardens-Bradrick Commercial Real Estate Properties
- Downtown Hayward Commercial Real Estate Properties
- Old San Leandro Commercial Real Estate Properties
- Ashland Commercial Real Estate Properties
- Mulford Gardens Commercial Real Estate Properties
- Mission-Garin Commercial Real Estate Properties
- Southgate Commercial Real Estate Properties
- Washington Manor-Bonaire Commercial Real Estate Properties
NEARBY LISTINGS
- 31259 Wiegman Rd, Hayward CA
- 1495-1497 Zephyr Ave, Hayward CA
- 33400 Dowe Ave, Union City CA
- 25005 Viking St, Hayward CA
- 1025 A St, Hayward CA
- 25509 Industrial Blvd, Hayward CA
- 2373-2389 Lincoln Ave, Hayward CA
- 2671-2675 McCone Ave, Hayward CA
- 1010 B St, Hayward CA
- 30995-30997 Huntwood Ave, Hayward CA
- 16440 Ashland Ave, San Lorenzo CA
- 2700-2714 McCone Ave, Hayward CA
- 30993 Huntwood Ave, Hayward CA
- 371-389 Gresel St, Hayward CA
- 1273 W Industrial Pky, Hayward CA
