Your email has been sent.
Highlights
- Completed Construction Drawings
- Architect: Ware Malcomb
- Entitlement approved by the County of Fresno
- Civil Engineer: Yamabe & Horn Engineering, Inc.
Features
All Available Space(1)
Display Rental Rate as
- Space
- Size
- Term
- Rental Rate
- Space Use
- Condition
- Available
Contact Agent for Pricing Information. Build to Suit.
- 4 Drive Ins
- 50 Loading Docks
| Space | Size | Term | Rental Rate | Space Use | Condition | Available |
| 1st Floor | 124,320-248,640 SF | Negotiable | Upon Request Upon Request Upon Request Upon Request | Industrial | Shell Space | January 01, 2027 |
1st Floor
| Size |
| 124,320-248,640 SF |
| Term |
| Negotiable |
| Rental Rate |
| Upon Request Upon Request Upon Request Upon Request |
| Space Use |
| Industrial |
| Condition |
| Shell Space |
| Available |
| January 01, 2027 |
1st Floor
| Size | 124,320-248,640 SF |
| Term | Negotiable |
| Rental Rate | Upon Request |
| Space Use | Industrial |
| Condition | Shell Space |
| Available | January 01, 2027 |
Contact Agent for Pricing Information. Build to Suit.
- 4 Drive Ins
- 50 Loading Docks
Property Overview
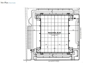
The property is located at the northwest corner of Willow and Muscat Avenues, in Fresno’s largest and most accessible industrial submarket. Situated on Willow Avenue between North and Central Avenues, it provides convenient access to Highway 99 through the nearby Central Avenue and North Avenue interchanges. Fully-entitled, 248,640± SF, Class “A” warehouse on 13.65± acres available for sale or lease. Developer will build-to-lease, build-to-sell or sell the entitled, permit-ready project pre-construction. The project, which is located in Fresno, CA, is a planned Class “A” building designed to accommodate single or multiple tenants. The building is just 1.25± miles from the Highway 99 and Central Avenue interchange, making it a prime location in Fresno’s most desirable
Distribution Facility Facts
Presented by
3441 S Willow Ave
Hmm, there seems to have been an error sending your message. Please try again.
Thanks! Your message was sent.





