Your email has been sent.
Highlights
- Full-floor, brick-and-beam office spaces from 6,000 to 9,000 square feet with 12-foot ceilings, hardwood floors, and abundant natural light.
- 345 Adelaide Street W is in the heart of King West, steps from streetcars, top restaurants, and the city’s best cultural and lifestyle amenities.
- Updated historic building with a modern lobby, operable windows, freight elevator, kitchen/lounge space, and Beanfield fibre connectivity.
- Move-in-ready suites with turnkey wiring, private washrooms, and dedicated air-conditioning systems, ideal for tech, creative, and professional users.
- Benefit from flexible lease terms, signage opportunities for anchor tenants, and on-site parking with nine stalls and monthly options available.
- Convenient walking distance to Spadina, Osgoode, and St. Andrew Stations, with fast access to Union Station, Billy Bishop, and major highways.
All Available Spaces(5)
Display Rental Rate as
- Space
- Size
- Term
- Rental Rate
- Space Use
- Build-Out
- Available
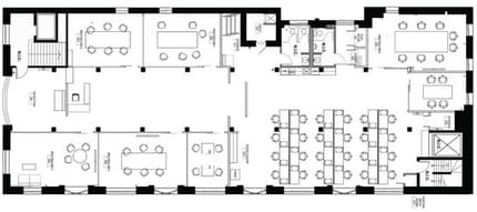
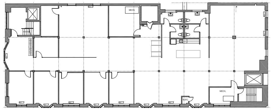
This is ground floor space is a traditional post and beam office building. The space is ideal for mix-sized tenants looking for full floor opportunities and can accommodate office or retail users. This space has a stairwell connecting with the ground floor. Signage available for an anchor tenant. Monthly parking available. Flexible lease terms available.
- Listed rate may not include certain utilities, building services and property expenses
- Mostly Open Floor Plan Layout
- Space is in Excellent Condition
- Central Air Conditioning
- Large open concept
- Fully Built-Out as Standard Office
- Fits 23 - 72 People
- Can be combined with additional space(s) for up to 27,000 SF of adjacent space
- Natural Light
- Great exposure
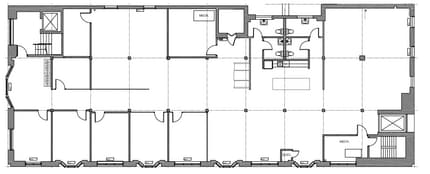
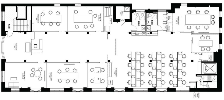
This is a turnkey, fully wired, tech/creative space that is fully furnished with open bench style seating. It was built out with a large boardroom, two meeting rooms, and features several collaboration areas, large kitchen space and an open area. Signage available for an anchor tenant. Monthly parking available. Flexible lease terms available.
- Listed rate may not include certain utilities, building services and property expenses
- Mostly Open Floor Plan Layout
- Space is in Excellent Condition
- Central Air Conditioning
- Phone booths, lockers, banquets, etc.
- Fully Built-Out as Standard Office
- Fits 15 - 48 People
- Can be combined with additional space(s) for up to 27,000 SF of adjacent space
- Natural Light
- Private outdoor patio space
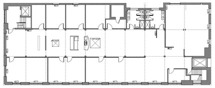
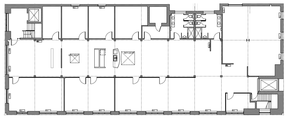
This is turnkey, full wired tech/creative space. The entire 3rd floor is brick and beam space that is fully furnished with open bench style seating and operable windows. Tenants also get their own A/C equipment exclusive to their use, 2 tons per 1000SF. Signage available for an anchor tenant. Monthly parking available. Flexible lease terms available.
- Listed rate may not include certain utilities, building services and property expenses
- Mostly Open Floor Plan Layout
- Space is in Excellent Condition
- Central Air Conditioning
- Sandblasted ceilings and beams
- Security cameras and card access
- Fully Built-Out as Standard Office
- Fits 15 - 48 People
- Can be combined with additional space(s) for up to 27,000 SF of adjacent space
- Natural Light
- Sanded and urethaned floors
This is turnkey, full wired tech/creative space. The entire 4th floor is brick and beam space with operable windows. Tenants also get their own A/C equipment exclusive to their use, 2 tons per 1000SF. Signage available for an anchor tenant. Monthly parking available. Flexible lease terms available.
- Listed rate may not include certain utilities, building services and property expenses
- Mostly Open Floor Plan Layout
- Space is in Excellent Condition
- Central Air Conditioning
- Sanded and urethaned floors
- Security cameras and card access
- Fully Built-Out as Standard Office
- Fits 15 - 48 People
- Can be combined with additional space(s) for up to 27,000 SF of adjacent space
- Natural Light
- Sandblasted ceilings and beams
This is turnkey, full wired tech/creative space. The entire 4th floor is brick and beam space with operable windows. Tenants also get their own A/C equipment exclusive to their use, 2 tons per 1000SF. Signage available for an anchor tenant. Monthly parking available. Flexible lease terms available.
- Listed rate may not include certain utilities, building services and property expenses
- Mostly Open Floor Plan Layout
- Space is in Excellent Condition
- Natural Light
- Sanded and urethaned floors
- Fully Built-Out as Standard Office
- Fits 15 - 48 People
- Central Air Conditioning
- This is a bright unit with skylights.
- Security cameras and card access
| Space | Size | Term | Rental Rate | Space Use | Build-Out | Available |
| 1st Floor | 9,000 SF | 1-5 Years | $29.40 USD/SF/YR $2.45 USD/SF/MO $264,607 USD/YR $22,051 USD/MO | Office | Full Build-Out | 60 Days |
| 2nd Floor | 6,000 SF | 1-5 Years | $29.40 USD/SF/YR $2.45 USD/SF/MO $176,404 USD/YR $14,700 USD/MO | Office | Full Build-Out | 60 Days |
| 3rd Floor | 6,000 SF | 1-5 Years | $29.40 USD/SF/YR $2.45 USD/SF/MO $176,404 USD/YR $14,700 USD/MO | Office | Full Build-Out | 60 Days |
| 4th Floor | 6,000 SF | 1-5 Years | $29.40 USD/SF/YR $2.45 USD/SF/MO $176,404 USD/YR $14,700 USD/MO | Office | Full Build-Out | 60 Days |
| 6th Floor | 6,000 SF | 1-5 Years | $29.40 USD/SF/YR $2.45 USD/SF/MO $176,404 USD/YR $14,700 USD/MO | Office | Full Build-Out | 60 Days |
1st Floor
| Size |
| 9,000 SF |
| Term |
| 1-5 Years |
| Rental Rate |
| $29.40 USD/SF/YR $2.45 USD/SF/MO $264,607 USD/YR $22,051 USD/MO |
| Space Use |
| Office |
| Build-Out |
| Full Build-Out |
| Available |
| 60 Days |
2nd Floor
| Size |
| 6,000 SF |
| Term |
| 1-5 Years |
| Rental Rate |
| $29.40 USD/SF/YR $2.45 USD/SF/MO $176,404 USD/YR $14,700 USD/MO |
| Space Use |
| Office |
| Build-Out |
| Full Build-Out |
| Available |
| 60 Days |
3rd Floor
| Size |
| 6,000 SF |
| Term |
| 1-5 Years |
| Rental Rate |
| $29.40 USD/SF/YR $2.45 USD/SF/MO $176,404 USD/YR $14,700 USD/MO |
| Space Use |
| Office |
| Build-Out |
| Full Build-Out |
| Available |
| 60 Days |
4th Floor
| Size |
| 6,000 SF |
| Term |
| 1-5 Years |
| Rental Rate |
| $29.40 USD/SF/YR $2.45 USD/SF/MO $176,404 USD/YR $14,700 USD/MO |
| Space Use |
| Office |
| Build-Out |
| Full Build-Out |
| Available |
| 60 Days |
6th Floor
| Size |
| 6,000 SF |
| Term |
| 1-5 Years |
| Rental Rate |
| $29.40 USD/SF/YR $2.45 USD/SF/MO $176,404 USD/YR $14,700 USD/MO |
| Space Use |
| Office |
| Build-Out |
| Full Build-Out |
| Available |
| 60 Days |
1st Floor
| Size | 9,000 SF |
| Term | 1-5 Years |
| Rental Rate | $29.40 USD/SF/YR |
| Space Use | Office |
| Build-Out | Full Build-Out |
| Available | 60 Days |
This is ground floor space is a traditional post and beam office building. The space is ideal for mix-sized tenants looking for full floor opportunities and can accommodate office or retail users. This space has a stairwell connecting with the ground floor. Signage available for an anchor tenant. Monthly parking available. Flexible lease terms available.
- Listed rate may not include certain utilities, building services and property expenses
- Fully Built-Out as Standard Office
- Mostly Open Floor Plan Layout
- Fits 23 - 72 People
- Space is in Excellent Condition
- Can be combined with additional space(s) for up to 27,000 SF of adjacent space
- Central Air Conditioning
- Natural Light
- Large open concept
- Great exposure
2nd Floor
| Size | 6,000 SF |
| Term | 1-5 Years |
| Rental Rate | $29.40 USD/SF/YR |
| Space Use | Office |
| Build-Out | Full Build-Out |
| Available | 60 Days |
This is a turnkey, fully wired, tech/creative space that is fully furnished with open bench style seating. It was built out with a large boardroom, two meeting rooms, and features several collaboration areas, large kitchen space and an open area. Signage available for an anchor tenant. Monthly parking available. Flexible lease terms available.
- Listed rate may not include certain utilities, building services and property expenses
- Fully Built-Out as Standard Office
- Mostly Open Floor Plan Layout
- Fits 15 - 48 People
- Space is in Excellent Condition
- Can be combined with additional space(s) for up to 27,000 SF of adjacent space
- Central Air Conditioning
- Natural Light
- Phone booths, lockers, banquets, etc.
- Private outdoor patio space
3rd Floor
| Size | 6,000 SF |
| Term | 1-5 Years |
| Rental Rate | $29.40 USD/SF/YR |
| Space Use | Office |
| Build-Out | Full Build-Out |
| Available | 60 Days |
This is turnkey, full wired tech/creative space. The entire 3rd floor is brick and beam space that is fully furnished with open bench style seating and operable windows. Tenants also get their own A/C equipment exclusive to their use, 2 tons per 1000SF. Signage available for an anchor tenant. Monthly parking available. Flexible lease terms available.
- Listed rate may not include certain utilities, building services and property expenses
- Fully Built-Out as Standard Office
- Mostly Open Floor Plan Layout
- Fits 15 - 48 People
- Space is in Excellent Condition
- Can be combined with additional space(s) for up to 27,000 SF of adjacent space
- Central Air Conditioning
- Natural Light
- Sandblasted ceilings and beams
- Sanded and urethaned floors
- Security cameras and card access
4th Floor
| Size | 6,000 SF |
| Term | 1-5 Years |
| Rental Rate | $29.40 USD/SF/YR |
| Space Use | Office |
| Build-Out | Full Build-Out |
| Available | 60 Days |
This is turnkey, full wired tech/creative space. The entire 4th floor is brick and beam space with operable windows. Tenants also get their own A/C equipment exclusive to their use, 2 tons per 1000SF. Signage available for an anchor tenant. Monthly parking available. Flexible lease terms available.
- Listed rate may not include certain utilities, building services and property expenses
- Fully Built-Out as Standard Office
- Mostly Open Floor Plan Layout
- Fits 15 - 48 People
- Space is in Excellent Condition
- Can be combined with additional space(s) for up to 27,000 SF of adjacent space
- Central Air Conditioning
- Natural Light
- Sanded and urethaned floors
- Sandblasted ceilings and beams
- Security cameras and card access
6th Floor
| Size | 6,000 SF |
| Term | 1-5 Years |
| Rental Rate | $29.40 USD/SF/YR |
| Space Use | Office |
| Build-Out | Full Build-Out |
| Available | 60 Days |
This is turnkey, full wired tech/creative space. The entire 4th floor is brick and beam space with operable windows. Tenants also get their own A/C equipment exclusive to their use, 2 tons per 1000SF. Signage available for an anchor tenant. Monthly parking available. Flexible lease terms available.
- Listed rate may not include certain utilities, building services and property expenses
- Fully Built-Out as Standard Office
- Mostly Open Floor Plan Layout
- Fits 15 - 48 People
- Space is in Excellent Condition
- Central Air Conditioning
- Natural Light
- This is a bright unit with skylights.
- Sanded and urethaned floors
- Security cameras and card access
Property Overview
Located in the heart of Toronto's vibrant King West neighbourhood, 345 Adelaide Street West is a beautifully restored brick-and-beam office building offering entire floor leasing opportunities from 6,000 to 9,000 square feet. Built in 1914 and recently updated with a newly decorated lobby and modern finishes, this seven-story property combines historic charm with functional design tailored to today's creative and tech-oriented businesses. Amenities include a freight elevator, a kitchen with a lounge/town hall area, Beanfield fibre internet, monthly parking availability, signage options for anchor tenants, and flexible lease terms. Ideal for mid-sized tenants seeking a full-floor presence, 345 Adelaide Street W features 12-foot sandblasted ceilings, sanded and urethane hardwood floors, operable windows, and an abundance of natural light throughout. Each floor comes with dedicated washrooms, exclusive-use air-conditioning systems, and fully wired turnkey options, some of which include furnishings, AV equipment, and a server room with racks. Select floors are move-in ready, and the second floor is fully furnished for immediate occupancy. Multi-level contiguous spaces are also available for tenants seeking a larger footprint. 345 Adelaide Street W is surrounded by top dining and lifestyle destinations such as Fusaro's Italian Kitchen, Tutti Matti, One Hotel, and Mike's Independent City Market. The neighborhood's rich cultural offerings and excellent transit access, including nearby Spadina, Osgoode, St. Andrew, and Union Stations, make 345 Adelaide West a premier leasing opportunity in Downtown Toronto. The property is also conveniently located just minutes from the Gardiner Expressway, Waterfront, and Billy Bishop Airport, with Pearson Airport reachable within 50 minutes.
- Security System
- Wheelchair Accessible
- Air Conditioning
Property Facts
Presented by
345 Adelaide A | 345 Adelaide St W
Hmm, there seems to have been an error sending your message. Please try again.
Thanks! Your message was sent.













