Your email has been sent.
Park Highlights
- Premier lab and flex space for lease at Edison Technology Park, designed for research and development in a thriving, innovative business environment.
- Tenants enjoy high ceilings, skylights, drive-in bays, kitchenettes, 100/400-amp power, and on-site solar power for cost-efficient operations.
- Near major transportation hubs such as CalTrain station, plus nearby retailers like Target, Costco, and dining spots such as Brew Coffee and Bakery.
- Flexible, build-to-suit spaces, ready for customization with tenant improvement allowances, ideal for life science and tech tenants.
- Located just minutes from Silicon Valley, with easy access to Highway 101, Interstate 280, and El Camino Real for convenient commutes and logistics.
- Menlo Park offers a highly educated workforce and global connectivity with three international airports within 28 miles.
Park Facts
| Total Space Available | 14,019 SF | Features | Skylights |
| Park Type | Industrial Park |
| Total Space Available | 14,019 SF |
| Park Type | Industrial Park |
| Features | Skylights |
Features and Amenities
- Skylights
All Available Spaces(6)
Display Rental Rate as
- Space
- Size
- Term
- Rental Rate
- Space Use
- Build-Out
- Available
Unit 3503 Features new paint, new lighting fixtures, a break room with a kitchenette on mezzanine level, in suite restroom There is polished concrete floors on the ground floors, and carpet in Kitchenette/Break room. Lab benching along the side of the ground floor is installed with a sink. A fume hood is also in place.
- Lease rate does not include utilities, property expenses or building services
- Laboratory
- Exposed Ceiling
- Central Air Conditioning
- High Ceilings
Building 2 at 3501-3513 Edison Way features an in-suite kitchenette, two roll-up doors, and an in-suite restroom with a shower. The property is equipped with innovative solar panels and is just a short walk from Stanford's new development. With experienced life science ownership, the facility grounds are meticulously maintained year-round, ensuring a pristine environment. Additionally, on-site parking is available for convenience.
- Lease rate does not include utilities, property expenses or building services
- Space is in Excellent Condition
| Space | Size | Term | Rental Rate | Space Use | Build-Out | Available |
| 1st Floor - 3503 | 1,834 SF | Negotiable | $42.00 /SF/YR $3.50 /SF/MO $77,028 /YR $6,419 /MO | Flex | Full Build-Out | Now |
| 1st Floor - 3505-3507 | 3,622 SF | Negotiable | $42.00 /SF/YR $3.50 /SF/MO $152,124 /YR $12,677 /MO | Flex | Full Build-Out | Now |
3501-3513 Edison Way - 1st Floor - 3503
3501-3513 Edison Way - 1st Floor - 3505-3507
- Space
- Size
- Term
- Rental Rate
- Space Use
- Build-Out
- Available
Unit J featured new paint, new lighting fixtures, new glass open office in mezzanine level, a break room with a kitchenette for added convenience, in suite restroom and glass offices/conference rooms. There is polished concrete floors on the ground floors, Laminate flooring in Kitchenette/Break room and carpet in open office area.
- Lease rate does not include utilities, property expenses or building services
- Central Air and Heating
- High Ceilings
- Exposed Ceiling
- Space is in Excellent Condition
- Private Restrooms
- Conference Rooms
Market-ready work underway consisting of: Polished Concrete Floors Mezzanine Kitchenette/Break Area Updated Lighting Fixtures New Carpet Private offices and Glass Conference Room Open Office in Mezzanine level Can be combined with units J &L for ~6,300 SF
- Lease rate does not include utilities, property expenses or building services
Market-ready work underway consisting of: Polished Concrete Floor Open Office in Mezzanine Level In-suite Restroom New Lighting Fixtures High Ceilings Private Offices/Conference Room Can be Combined with Unit J & K for ~6,300 SF
- Lease rate does not include utilities, property expenses or building services
Unit M at 3475 Edison Way - Building 4 features fresh paint, new lighting fixtures, and new carpeting throughout. The space includes a fume hood with benching, an open office area on the mezzanine level, private offices, and a break room with a kitchenette for added convenience.
- Lease rate does not include utilities, property expenses or building services
- High Ceilings
- Space is in Excellent Condition
| Space | Size | Term | Rental Rate | Space Use | Build-Out | Available |
| 1st Floor - J | 2,134 SF | Negotiable | $42.00 /SF/YR $3.50 /SF/MO $89,628 /YR $7,469 /MO | Flex | Full Build-Out | Now |
| 1st Floor - K | 2,172 SF | Negotiable | $42.00 /SF/YR $3.50 /SF/MO $91,224 /YR $7,602 /MO | Flex | Full Build-Out | Now |
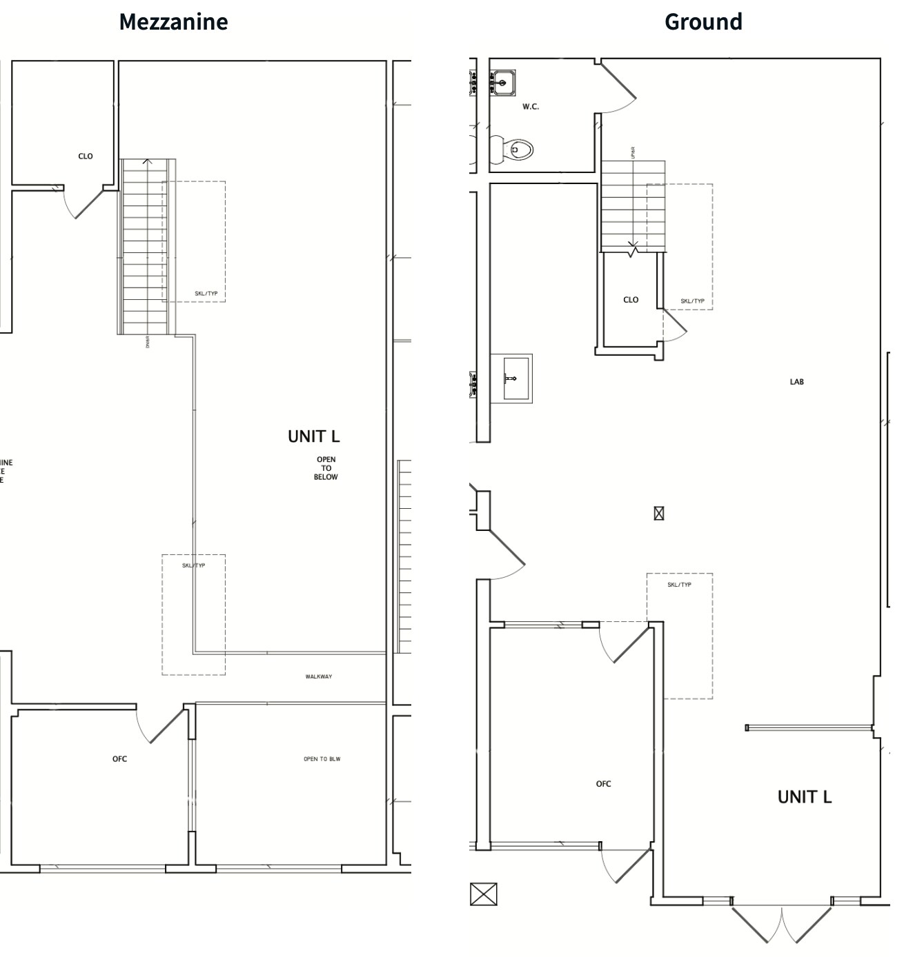
| 1st Floor - L | 1,924 SF | Negotiable | $42.00 /SF/YR $3.50 /SF/MO $80,808 /YR $6,734 /MO | Flex | Full Build-Out | Now |
| 1st Floor - M | 2,333 SF | Negotiable | $42.00 /SF/YR $3.50 /SF/MO $97,986 /YR $8,166 /MO | Flex | Full Build-Out | Now |
3475 Edison Way - 1st Floor - J
3475 Edison Way - 1st Floor - K
3475 Edison Way - 1st Floor - L
3475 Edison Way - 1st Floor - M
3501-3513 Edison Way - 1st Floor - 3503
| Size | 1,834 SF |
| Term | Negotiable |
| Rental Rate | $42.00 /SF/YR |
| Space Use | Flex |
| Build-Out | Full Build-Out |
| Available | Now |
Unit 3503 Features new paint, new lighting fixtures, a break room with a kitchenette on mezzanine level, in suite restroom There is polished concrete floors on the ground floors, and carpet in Kitchenette/Break room. Lab benching along the side of the ground floor is installed with a sink. A fume hood is also in place.
- Lease rate does not include utilities, property expenses or building services
- Central Air Conditioning
- Laboratory
- High Ceilings
- Exposed Ceiling
3501-3513 Edison Way - 1st Floor - 3505-3507
| Size | 3,622 SF |
| Term | Negotiable |
| Rental Rate | $42.00 /SF/YR |
| Space Use | Flex |
| Build-Out | Full Build-Out |
| Available | Now |
Building 2 at 3501-3513 Edison Way features an in-suite kitchenette, two roll-up doors, and an in-suite restroom with a shower. The property is equipped with innovative solar panels and is just a short walk from Stanford's new development. With experienced life science ownership, the facility grounds are meticulously maintained year-round, ensuring a pristine environment. Additionally, on-site parking is available for convenience.
- Lease rate does not include utilities, property expenses or building services
- Space is in Excellent Condition
3475 Edison Way - 1st Floor - J
| Size | 2,134 SF |
| Term | Negotiable |
| Rental Rate | $42.00 /SF/YR |
| Space Use | Flex |
| Build-Out | Full Build-Out |
| Available | Now |
Unit J featured new paint, new lighting fixtures, new glass open office in mezzanine level, a break room with a kitchenette for added convenience, in suite restroom and glass offices/conference rooms. There is polished concrete floors on the ground floors, Laminate flooring in Kitchenette/Break room and carpet in open office area.
- Lease rate does not include utilities, property expenses or building services
- Space is in Excellent Condition
- Central Air and Heating
- Private Restrooms
- High Ceilings
- Conference Rooms
- Exposed Ceiling
3475 Edison Way - 1st Floor - K
| Size | 2,172 SF |
| Term | Negotiable |
| Rental Rate | $42.00 /SF/YR |
| Space Use | Flex |
| Build-Out | Full Build-Out |
| Available | Now |
Market-ready work underway consisting of: Polished Concrete Floors Mezzanine Kitchenette/Break Area Updated Lighting Fixtures New Carpet Private offices and Glass Conference Room Open Office in Mezzanine level Can be combined with units J &L for ~6,300 SF
- Lease rate does not include utilities, property expenses or building services
3475 Edison Way - 1st Floor - L
| Size | 1,924 SF |
| Term | Negotiable |
| Rental Rate | $42.00 /SF/YR |
| Space Use | Flex |
| Build-Out | Full Build-Out |
| Available | Now |
Market-ready work underway consisting of: Polished Concrete Floor Open Office in Mezzanine Level In-suite Restroom New Lighting Fixtures High Ceilings Private Offices/Conference Room Can be Combined with Unit J & K for ~6,300 SF
- Lease rate does not include utilities, property expenses or building services
3475 Edison Way - 1st Floor - M
| Size | 2,333 SF |
| Term | Negotiable |
| Rental Rate | $42.00 /SF/YR |
| Space Use | Flex |
| Build-Out | Full Build-Out |
| Available | Now |
Unit M at 3475 Edison Way - Building 4 features fresh paint, new lighting fixtures, and new carpeting throughout. The space includes a fume hood with benching, an open office area on the mezzanine level, private offices, and a break room with a kitchenette for added convenience.
- Lease rate does not include utilities, property expenses or building services
- Space is in Excellent Condition
- High Ceilings
Select Tenants at This Property
- Floor
- Tenant Name
- Industry
- Multiple
- AccuVein
- Manufacturing
- Multiple
- Acuity Technologies Inc
- Manufacturing
- 1st
- Landmark
- Real Estate
- Multiple
- Top Alliance Biosciences
- Professional, Scientific, and Technical Services
Park Overview
Premier laboratory and flex space designed for research and development at Edison Technology Park, Menlo Park. Edison Technology Park features 22-foot-high ceilings, skylights, yard space, an en-suite kitchenette, drive-in bays, an innovative solar facade, and 100/400-amp, 3-phase power supply. On-site amenities include parking with charging stations, signage opportunities, and a solar generation plant that powers all businesses within the park. Edison Technology Park offers flexible zoning allowing for a variety of uses. This is an ideal space for any tenant looking to thrive in a dynamic environment and add to the synergy of an established technology park. In the heart of Menlo Park, Edison Technology Park offers exceptional access to major thoroughfares, including Highway 101, Interstate 280, Woodside Road, and El Camino Real, making commuting and logistics. Menlo Park, known for its proximity to Silicon Valley, is less than 3 miles away, providing tenants access to one of the world’s most innovative tech hubs. The area also boasts convenient transportation options, including access to the Atherton CalTrain Station and nearby bus stops along El Camino Real. Tenants will benefit from being close to national retailers such as Target, Marshalls, and Costco, as well as local dining spots like Dickey’s Barbecue Pit and Brew Coffee and Bakery. The Menlo Park area offers an appealing mix of commercial and residential appeal. The surrounding neighborhood is home to over 260,000 residents within a 5-mile radius, with nearly 60% of the population holding a bachelor's degree or higher, providing businesses with access to a well-educated workforce. With its central location, businesses can easily tap into the dynamic talent pool of Silicon Valley, and the convenience of three international airports within a 17- to 28-mile radius, San Francisco, San Jose, and Oakland Airports, ensures global connectivity. With its flexible zoning, infrastructure, and proximity to essential amenities, this prime location, creates a highly attractive environment for any business looking to grow and innovate.
Presented by
Edison Technology Park | Menlo Park, CA 94025
Hmm, there seems to have been an error sending your message. Please try again.
Thanks! Your message was sent.





















