Your email has been sent.
Sublease Highlights
- ±79,181 SF facility with integrated office, lab, and manufacturing space, including ±10,523 SF mezzanine.
- Heavy power capacity with 1,500 kVA transformer, 4,000A main switchboard, and 250 kW emergency generator.
- Upgraded infrastructure featuring ±5,500 SF dry room, advanced fire suppression, and Trane BMS system.
- Multiple loading options with 2 dock-high and 3 grade-level doors for efficient logistics.
Features
All Available Space(1)
Display Rental Rate as
- Space
- Size
- Term
- Rental Rate
- Space Use
- Build-Out
- Available
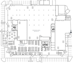
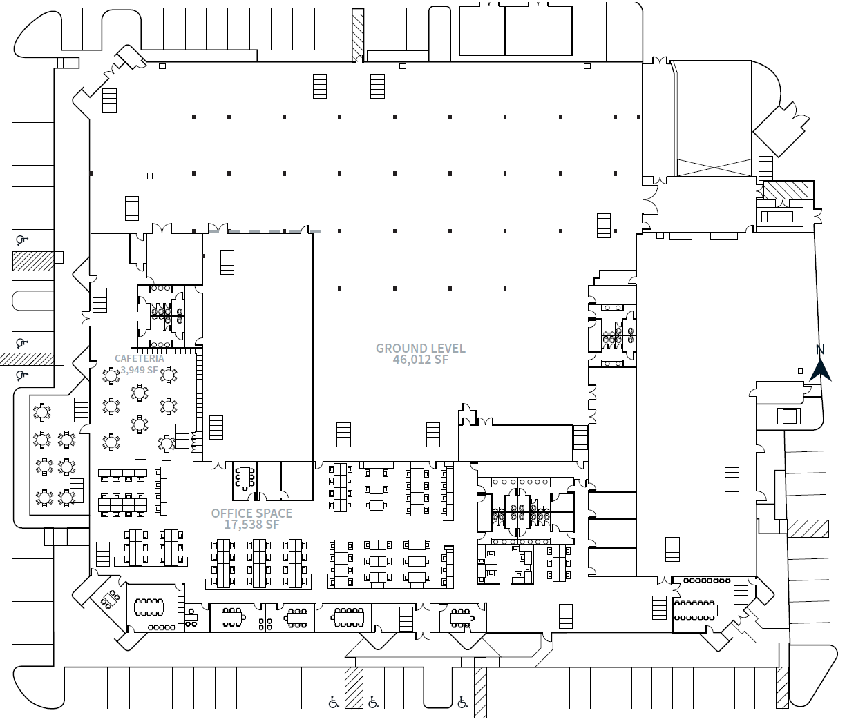
The available space within this advanced battery R&D manufacturing facility is designed to meet the stringent requirements of high-tech operations. It features approximately 5,500 square feet of specialized dryroom space, providing an ideal environment for precision processes. The infrastructure includes an upgraded fire alarm control panel for enhanced safety and two high-capacity dehumidifiers—one rated at 20,000 CFM and the other at 2,250 CFM—ensuring optimal humidity control for sensitive manufacturing activities. Emergency power is supported by a 250 kW diesel generator, delivering reliable backup during outages. Additionally, the space is integrated with a Trane Tracer Building Management System, offering centralized monitoring and control for critical systems. This configuration is tailored for advanced research and development workflows, combining environmental stability with operational resilience.
- Sublease space available from current tenant
- 3 Drive Ins
- High Ceilings
- Upgraded fire alarm control pane
- Emergency Power - 250 kW diesel generator
- Includes 17,538 SF of dedicated office space
- 2 Loading Docks
- ±5,500 SF of total dryroom space
- Trane Tracer BMS
- Two dehumidifiers - one 20,000 and one 2,250 CFM
| Space | Size | Term | Rental Rate | Space Use | Build-Out | Available |
| 1st Floor | 43,000-68,658 SF | Aug 2030 | Upon Request Upon Request Upon Request Upon Request | Flex | Full Build-Out | Now |
1st Floor
| Size |
| 43,000-68,658 SF |
| Term |
| Aug 2030 |
| Rental Rate |
| Upon Request Upon Request Upon Request Upon Request |
| Space Use |
| Flex |
| Build-Out |
| Full Build-Out |
| Available |
| Now |
1st Floor
| Size | 43,000-68,658 SF |
| Term | Aug 2030 |
| Rental Rate | Upon Request |
| Space Use | Flex |
| Build-Out | Full Build-Out |
| Available | Now |
The available space within this advanced battery R&D manufacturing facility is designed to meet the stringent requirements of high-tech operations. It features approximately 5,500 square feet of specialized dryroom space, providing an ideal environment for precision processes. The infrastructure includes an upgraded fire alarm control panel for enhanced safety and two high-capacity dehumidifiers—one rated at 20,000 CFM and the other at 2,250 CFM—ensuring optimal humidity control for sensitive manufacturing activities. Emergency power is supported by a 250 kW diesel generator, delivering reliable backup during outages. Additionally, the space is integrated with a Trane Tracer Building Management System, offering centralized monitoring and control for critical systems. This configuration is tailored for advanced research and development workflows, combining environmental stability with operational resilience.
- Sublease space available from current tenant
- Includes 17,538 SF of dedicated office space
- 3 Drive Ins
- 2 Loading Docks
- High Ceilings
- ±5,500 SF of total dryroom space
- Upgraded fire alarm control pane
- Trane Tracer BMS
- Emergency Power - 250 kW diesel generator
- Two dehumidifiers - one 20,000 and one 2,250 CFM
Property Overview
Located within Bayside Technology Park, this advanced R&D and manufacturing facility offers ±79,181 SF of highly specialized space designed for battery research and production. The property features a combination of office, lab, and manufacturing areas, including a dedicated ±5,500 SF dry room and upgraded fire protection systems. With 21’-22’ clear heights, robust power infrastructure (1,500 kVA transformer and 4,000A main panel), and multiple loading options, the building is engineered to support high-tech and industrial operations.
Property Facts
Presented by
Company Not Provided
3481-3501 W Warren Ave
Hmm, there seems to have been an error sending your message. Please try again.
Thanks! Your message was sent.






