Your email has been sent.
35 Melanie Ln 25,000 - 51,971 SF of Industrial Space Available in Whippany, NJ 07981



Sublease Highlights
- 24-foot clear ceiling height ideal for racking and storage.
- ESFR sprinkler system enhances safety and compliance.
- Located near I-287, Route 10, and I-80 for regional access.
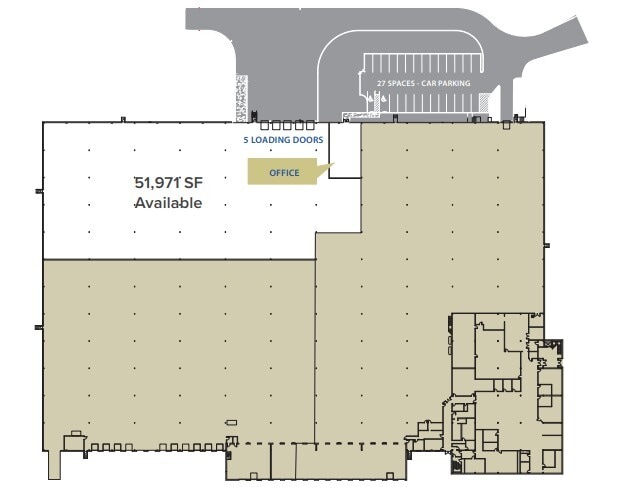
- Five loading doors support high-volume distribution.
- 27 on-site parking spaces accommodate staff and visitors.
Features
All Available Space(1)
Display Rental Rate as
- Space
- Size
- Term
- Rental Rate
- Space Use
- Condition
- Available
Positioned in the heart of Whippany, New Jersey, 35 Melanie Lane presents a prime sublease opportunity for industrial users seeking a well-equipped facility with immediate access to regional transportation corridors. This 51,971-square-foot warehouse includes over 2,000 square feet of dedicated office space, offering a balanced layout for operational efficiency. The property features a 24-foot clear ceiling height, five loading doors for streamlined logistics, and an ESFR sprinkler system for enhanced fire protection. With 27 on-site parking spaces, the site supports both workforce and visitor needs. Located in Morris County, Whippany benefits from proximity to major highways including I-287, Route 10, and I-80, facilitating efficient distribution throughout the Northeast. The area is home to a mix of corporate campuses, light industrial parks, and residential neighborhoods, creating a dynamic business environment. Newark Liberty International Airport is approximately 30 minutes away, adding convenience for air freight and executive travel. This sublease runs through December 31, 2030, offering long-term stability for tenants looking to establish or expand operations in a strategic New Jersey location. The property’s layout and infrastructure are ideal for warehousing, light manufacturing, or logistics operations.
- Sublease space available from current tenant
- 5 Loading Docks
- Includes 2,000 SF of dedicated office space
- Sublease expires 12/31/2030
| Space | Size | Term | Rental Rate | Space Use | Condition | Available |
| 1st Floor | 25,000-51,971 SF | Dec 2030 | Upon Request Upon Request Upon Request Upon Request | Industrial | Partial Build-Out | 30 Days |
1st Floor
| Size |
| 25,000-51,971 SF |
| Term |
| Dec 2030 |
| Rental Rate |
| Upon Request Upon Request Upon Request Upon Request |
| Space Use |
| Industrial |
| Condition |
| Partial Build-Out |
| Available |
| 30 Days |
1st Floor
| Size | 25,000-51,971 SF |
| Term | Dec 2030 |
| Rental Rate | Upon Request |
| Space Use | Industrial |
| Condition | Partial Build-Out |
| Available | 30 Days |
Positioned in the heart of Whippany, New Jersey, 35 Melanie Lane presents a prime sublease opportunity for industrial users seeking a well-equipped facility with immediate access to regional transportation corridors. This 51,971-square-foot warehouse includes over 2,000 square feet of dedicated office space, offering a balanced layout for operational efficiency. The property features a 24-foot clear ceiling height, five loading doors for streamlined logistics, and an ESFR sprinkler system for enhanced fire protection. With 27 on-site parking spaces, the site supports both workforce and visitor needs. Located in Morris County, Whippany benefits from proximity to major highways including I-287, Route 10, and I-80, facilitating efficient distribution throughout the Northeast. The area is home to a mix of corporate campuses, light industrial parks, and residential neighborhoods, creating a dynamic business environment. Newark Liberty International Airport is approximately 30 minutes away, adding convenience for air freight and executive travel. This sublease runs through December 31, 2030, offering long-term stability for tenants looking to establish or expand operations in a strategic New Jersey location. The property’s layout and infrastructure are ideal for warehousing, light manufacturing, or logistics operations.
- Sublease space available from current tenant
- Includes 2,000 SF of dedicated office space
- 5 Loading Docks
- Sublease expires 12/31/2030
Warehouse Facility Facts
Select Tenants
- Floor
- Tenant Name
- Industry
- Multiple
- TransDigm Group Inc.
- Manufacturing
Presented by
35 Melanie Ln
Hmm, there seems to have been an error sending your message. Please try again.
Thanks! Your message was sent.


