Your email has been sent.
Park Highlights
- DFW Beltline Commerce Center consists of four warehouses featuring cross-loading with dock and grade-level doors and ample truck depths.
- Central location with swift access to the DFW Metroplex and nearby arterial routes, including Interstate 30, Highways 183 and 161, and Loop 12.
- 16-foot to 20-foot clear heights, vast truck courts, wide column spacing, and LED lighting throughout, boosting operational efficiency.
- Numerous retailers within a 10-minute drive from the subject location, including The Home Depot, Walmart, and multiple wholesale supply companies.
Park Facts
| Total Space Available | 29,859 SF | Features | 24 Hour Access |
| Park Type | Industrial Park |
| Total Space Available | 29,859 SF |
| Park Type | Industrial Park |
| Features | 24 Hour Access |
Features and Amenities
- 24 Hour Access
All Available Spaces(9)
Display Rental Rate as
- Space
- Size
- Term
- Rental Rate
- Space Use
- Build-Out
- Available
- Lease rate does not include utilities, property expenses or building services
Located in Irving, TX off of North and South Belt Line Rd. This location is central to the DFW Metroplex providing easy access to Hwy 183 (1.8 miles), Hwy 161, I-30 (3.6 miles), & Hwy Loop 12. The building is also in close proximity to DFW Airport.
- 40,000 Total SF
- Dock + Grade Level Loading
- 25’ W x 33’ D Column Spacing
- Clear Height: 20’ - 16’
- 65’ Truck Ct
- White Boxed Office and LED Lights in Warehouse
| Space | Size | Term | Rental Rate | Space Use | Build-Out | Available |
| 1st Floor - 103 | 3,750 SF | Negotiable | $12.50 /SF/YR $1.04 /SF/MO $46,875 /YR $3,906 /MO | Industrial | - | Now |
| 1st Floor - 111 | 2,500 SF | Negotiable | Upon Request Upon Request Upon Request Upon Request | Industrial | - | Now |
320 S Belt Line Rd - 1st Floor - 103
320 S Belt Line Rd - 1st Floor - 111
- Space
- Size
- Term
- Rental Rate
- Space Use
- Build-Out
- Available
1 Grade-Level (10 by 10) 19’ to 16’2” Clear 3-Phase/ 120A/ 240V
- Lease rate does not include utilities, property expenses or building services
- 1 Drive Bay
• 1 Dock door (10 by 10) • 19’ - 16’2” Clear • +/- 5 Parking Spots • 3-Phase/ 120A/ 240V
- Lease rate does not include utilities, property expenses or building services
- 1 Loading Dock
- Includes 625 SF of dedicated office space
- Small Outside Storage Component Possible
2 Grade-Level (10 by 10) 19’ - 16’2” Clear 3-Phase/ 120A/ 240V
- Lease rate does not include utilities, property expenses or building services
- 2 Loading Docks
- Includes 625 SF of dedicated office space
- Small Outside Storage Component Possible
2 Grade-Level (10 by 10) 19’ - 16’2” Clear 3-Phase/ 120A/ 240V
- Lease rate does not include utilities, property expenses or building services
- 2 Loading Docks
- Includes 625 SF of dedicated office space
| Space | Size | Term | Rental Rate | Space Use | Build-Out | Available |
| 1st Floor - 105 | 1,984 SF | Negotiable | $13.00 /SF/YR $1.08 /SF/MO $25,792 /YR $2,149 /MO | Industrial | Partial Build-Out | Now |
| 1st Floor - 107 | 2,125 SF | Negotiable | $12.50 /SF/YR $1.04 /SF/MO $26,563 /YR $2,214 /MO | Industrial | Partial Build-Out | Now |
| 1st Floor - 119 | 2,125 SF | Negotiable | $12.25 /SF/YR $1.02 /SF/MO $26,031 /YR $2,169 /MO | Industrial | Partial Build-Out | Now |
| 1st Floor - 129 | 3,500 SF | Negotiable | $11.75 /SF/YR $0.98 /SF/MO $41,125 /YR $3,427 /MO | Industrial | Partial Build-Out | Now |
309 N Belt Line Rd - 1st Floor - 105
309 N Belt Line Rd - 1st Floor - 107
309 N Belt Line Rd - 1st Floor - 119
309 N Belt Line Rd - 1st Floor - 129
- Space
- Size
- Term
- Rental Rate
- Space Use
- Build-Out
- Available
• +/- 1,100-SF office • Two grade-level doors (12 by 10) • Two dock doors (10 by 10) • 20’ - 16’ Clear • 75’ Truck Ct • 3-Phase/ 220A/ 240V
- Lease rate does not include utilities, property expenses or building services
- Space is in Excellent Condition
- 2 Drive Ins
- 2 Loading Docks
| Space | Size | Term | Rental Rate | Space Use | Build-Out | Available |
| 1st Floor - 109 | 7,500 SF | Negotiable | $10.40 /SF/YR $0.87 /SF/MO $78,000 /YR $6,500 /MO | Industrial | Full Build-Out | Now |
350 S Belt Line Rd - 1st Floor - 109
- Space
- Size
- Term
- Rental Rate
- Space Use
- Build-Out
- Available
- Lease rate does not include utilities, property expenses or building services
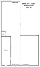
Suite 278- 2,125 SF
- 15'-19' Clear Height
- 3 phrase Power
- 10 x 10' Dock
| Space | Size | Term | Rental Rate | Space Use | Build-Out | Available |
| 1st Floor - 272 | 4,250 SF | Negotiable | $12.00 /SF/YR $1.00 /SF/MO $51,000 /YR $4,250 /MO | Industrial | - | Now |
| 1st Floor - 278 | 2,125 SF | Negotiable | Upon Request Upon Request Upon Request Upon Request | Industrial | - | Now |
260 S Belt Line Rd - 1st Floor - 272
260 S Belt Line Rd - 1st Floor - 278
320 S Belt Line Rd - 1st Floor - 103
| Size | 3,750 SF |
| Term | Negotiable |
| Rental Rate | $12.50 /SF/YR |
| Space Use | Industrial |
| Build-Out | - |
| Available | Now |
- Lease rate does not include utilities, property expenses or building services
320 S Belt Line Rd - 1st Floor - 111
| Size | 2,500 SF |
| Term | Negotiable |
| Rental Rate | Upon Request |
| Space Use | Industrial |
| Build-Out | - |
| Available | Now |
Located in Irving, TX off of North and South Belt Line Rd. This location is central to the DFW Metroplex providing easy access to Hwy 183 (1.8 miles), Hwy 161, I-30 (3.6 miles), & Hwy Loop 12. The building is also in close proximity to DFW Airport.
- 40,000 Total SF
- Clear Height: 20’ - 16’
- Dock + Grade Level Loading
- 65’ Truck Ct
- 25’ W x 33’ D Column Spacing
- White Boxed Office and LED Lights in Warehouse
309 N Belt Line Rd - 1st Floor - 105
| Size | 1,984 SF |
| Term | Negotiable |
| Rental Rate | $13.00 /SF/YR |
| Space Use | Industrial |
| Build-Out | Partial Build-Out |
| Available | Now |
1 Grade-Level (10 by 10) 19’ to 16’2” Clear 3-Phase/ 120A/ 240V
- Lease rate does not include utilities, property expenses or building services
- 1 Drive Bay
309 N Belt Line Rd - 1st Floor - 107
| Size | 2,125 SF |
| Term | Negotiable |
| Rental Rate | $12.50 /SF/YR |
| Space Use | Industrial |
| Build-Out | Partial Build-Out |
| Available | Now |
• 1 Dock door (10 by 10) • 19’ - 16’2” Clear • +/- 5 Parking Spots • 3-Phase/ 120A/ 240V
- Lease rate does not include utilities, property expenses or building services
- Includes 625 SF of dedicated office space
- 1 Loading Dock
- Small Outside Storage Component Possible
309 N Belt Line Rd - 1st Floor - 119
| Size | 2,125 SF |
| Term | Negotiable |
| Rental Rate | $12.25 /SF/YR |
| Space Use | Industrial |
| Build-Out | Partial Build-Out |
| Available | Now |
2 Grade-Level (10 by 10) 19’ - 16’2” Clear 3-Phase/ 120A/ 240V
- Lease rate does not include utilities, property expenses or building services
- Includes 625 SF of dedicated office space
- 2 Loading Docks
- Small Outside Storage Component Possible
309 N Belt Line Rd - 1st Floor - 129
| Size | 3,500 SF |
| Term | Negotiable |
| Rental Rate | $11.75 /SF/YR |
| Space Use | Industrial |
| Build-Out | Partial Build-Out |
| Available | Now |
2 Grade-Level (10 by 10) 19’ - 16’2” Clear 3-Phase/ 120A/ 240V
- Lease rate does not include utilities, property expenses or building services
- Includes 625 SF of dedicated office space
- 2 Loading Docks
350 S Belt Line Rd - 1st Floor - 109
| Size | 7,500 SF |
| Term | Negotiable |
| Rental Rate | $10.40 /SF/YR |
| Space Use | Industrial |
| Build-Out | Full Build-Out |
| Available | Now |
• +/- 1,100-SF office • Two grade-level doors (12 by 10) • Two dock doors (10 by 10) • 20’ - 16’ Clear • 75’ Truck Ct • 3-Phase/ 220A/ 240V
- Lease rate does not include utilities, property expenses or building services
- 2 Drive Ins
- Space is in Excellent Condition
- 2 Loading Docks
260 S Belt Line Rd - 1st Floor - 272
| Size | 4,250 SF |
| Term | Negotiable |
| Rental Rate | $12.00 /SF/YR |
| Space Use | Industrial |
| Build-Out | - |
| Available | Now |
- Lease rate does not include utilities, property expenses or building services
260 S Belt Line Rd - 1st Floor - 278
| Size | 2,125 SF |
| Term | Negotiable |
| Rental Rate | Upon Request |
| Space Use | Industrial |
| Build-Out | - |
| Available | Now |
Suite 278- 2,125 SF
- 15'-19' Clear Height
- 10 x 10' Dock
- 3 phrase Power
Matterport 3D Tours
Park Overview
The DFW Beltline Commerce Center is centrally located in Irving, Texas, off Belt Line Road, offering excellent access to the Dallas–Fort Worth Metroplex and strategically positioned near major throughfares, including Highway 183 (1.8 miles away), Highway 161, Interstate 30 (3.6 miles away), and Loop 12. The industrial park is also conveniently located near Dallas–Fort Worth International Airport (6.9 miles away) and Dallas Love Field Airport (11.9 miles away). 309 N Belt Line offers 1,984 to 3,500 square feet of space, with clear heights ranging from 16 to 19 feet. Spaces include dock and grade-level loading (suite-dependent), a white box office, 3-phase power, and LED lighting throughout the warehouse. Additional features include a 55-foot truck court, potential outside storage, and column spacing of 25 feet wide by 33 feet deep. 260 S Belt Line Road offers 3,187 to 4,250 square feet of space, with clear heights ranging from 16 feet to 20 feet. Spaces include cross-loading with both dock and grade-level doors, white box offices, 3-phase power, and LED lighting throughout the warehouse. Additional features include a 55-foot truck court and sufficient column spacing of 25 feet wide by 33 feet deep, providing a layout that prioritizes operational efficiency. 320 S Belt Line Road features 2,500 to 5,000 square feet of space, with clear heights ranging from 16 feet to 20 feet. Spaces include dock and grade-level loading (suite dependent), a 65-foot truck court, and column spacing of 25 feet wide by 33 feet deep. The larger suite is equipped with a showroom, one drive-in, and two loading docks, providing flexible access for loading and unloading. 350 S Belt Line Road features a 7,500-square-foot unit, with a 1,100-square-foot white box office, and a clear height ranging from 16 feet to 20 feet. It includes two grade-level doors, two dock doors, 3-phase power, a 75-foot truck court, column spacing of 15 feet wide by 33 feet deep, and LED lighting throughout. Together, these properties within the DFW Beltline Commerce Center are the ideal industrial solution for businesses seeking excellent accessibility, modern features, and an efficient operational layout in a central location in the Dallas–Fort Worth Metroplex.
Park Brochure
About West Brookhollow
The West Brookhollow industrial submarket lies at the geographic center of the Dallas-Fort Worth metroplex. Intersected by key trade routes like Texas State Highways 183 and 114, Loop 12, and, perhaps most importantly, I-35W, the region has been a popular destination for distribution companies for decades.
Being one of Dallas’ original suburban industrial hubs, a majority of the stock in West Brookhollow can be found in small to mid-sized industrial sites and flex buildings of an older vintage. The biggest cluster of these buildings is along John Carpenter Freeway near the former Chicago, Rock Island & Pacific Railroad line purchased by the City of Dallas and Fort Worth in the mid-1980s. Additional hubs are concentrated on the other side of the river in Irving.
Being the product of previous construction cycles, this submarket is relatively well insulated from supply-side pressures that have impacted many of its peers throughout Dallas-Fort Worth. Although space is occasionally cleared to make way for new developments, options are fairly limited thanks to the proliferation of smaller parcels, many of which are occupied by owner-users.
Demographics
Regional Accessibility
Nearby Amenities
Restaurants |
|||
|---|---|---|---|
| Church's Chicken | - | - | 3 min walk |
| Taco Bell | Fast Food | - | 8 min walk |
Retail |
||
|---|---|---|
| Family Dollar | Dollar/Variety/Thrift | 4 min walk |
Hotels |
|
|---|---|
| Studio 6 |
60 rooms
6 min drive
|
| Red Roof Inn |
140 rooms
6 min drive
|
| Holiday Inn Express |
128 rooms
7 min drive
|
| Fairfield Inn |
120 rooms
7 min drive
|
| Home2 Suites by Hilton |
109 rooms
7 min drive
|
Leasing Team
Parker LanCarte, Vice President, Brokerage
Prior to joining LanCarte Commercial, Parker served as VP of Leasing for Latipac Commercial in Houston, TX and then as an associate with SRS Retail Partners in Austin, TX. He has ample experience working with both landlords and tenants in a wide range of leasing projects through various asset classes.
Parker graduated from Texas Tech University with a Bachelor of Arts in Communications. When he is not working, you will find Parker with his wife, Kimberly, and their two boys, Nathan and Alister.
Matt Murff, Senior Associate
About the Owner
Presented by
DFW Beltline Commerce Center | Irving, TX 75060
Hmm, there seems to have been an error sending your message. Please try again.
Thanks! Your message was sent.





















