Log In/Sign Up
Your email has been sent.
Features
Clear Height
18’
Drive In Bays
2
Standard Parking Spaces
48
All Available Space(1)
Display Rental Rate as
- Space
- Size
- Term
- Rental Rate
- Space Use
- Build-Out
- Available
- Listed rate may not include certain utilities, building services and property expenses
- Includes 1,430 SF of dedicated office space
| Space | Size | Term | Rental Rate | Space Use | Build-Out | Available |
| 1st Floor | 9,730 SF | Negotiable | $16.80 /SF/YR $1.40 /SF/MO $163,464 /YR $13,622 /MO | Industrial | - | Now |
1st Floor
| Size |
| 9,730 SF |
| Term |
| Negotiable |
| Rental Rate |
| $16.80 /SF/YR $1.40 /SF/MO $163,464 /YR $13,622 /MO |
| Space Use |
| Industrial |
| Build-Out |
| - |
| Available |
| Now |
1 of 1
Videos
Matterport 3D Exterior
Matterport 3D Tour
Photos
Street View
Street
Map
1st Floor
| Size | 9,730 SF |
| Term | Negotiable |
| Rental Rate | $16.80 /SF/YR |
| Space Use | Industrial |
| Build-Out | - |
| Available | Now |
- Listed rate may not include certain utilities, building services and property expenses
- Includes 1,430 SF of dedicated office space
Property Overview
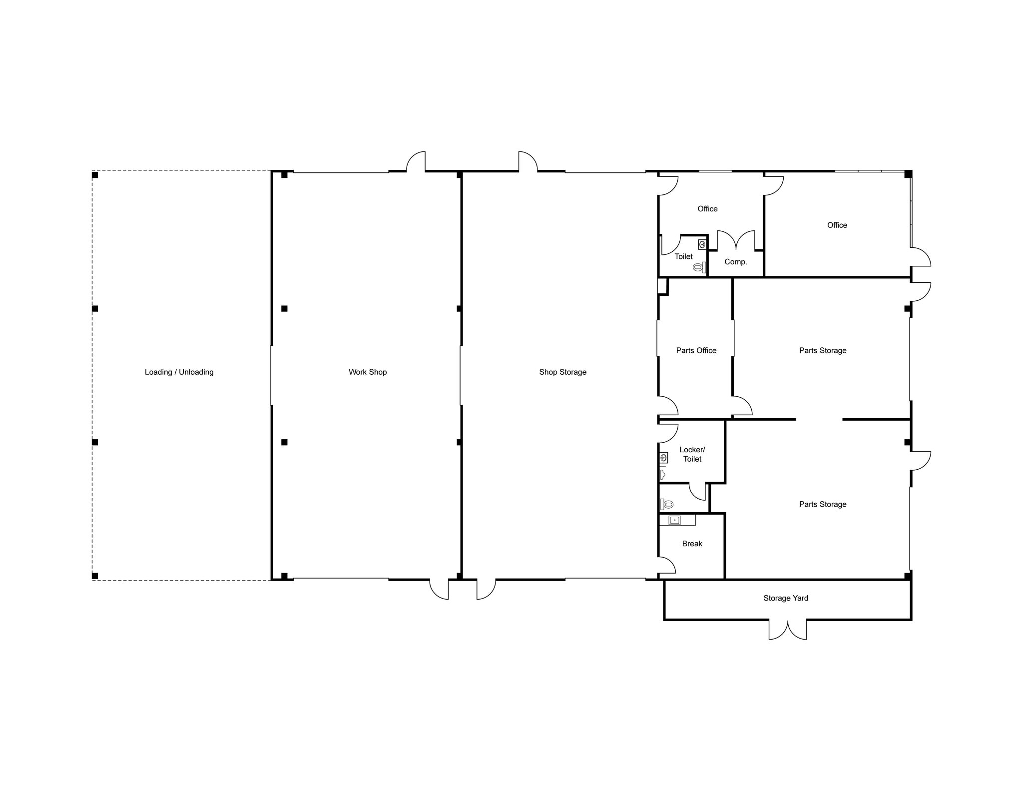
3501 Unicorn Rd is a 9,730 SF building situated on 3.25 acres, of which +/- 1.15 acres is secured yard area. 3501 Unicorn has a total of four (4) 14’ x 16’ Ground-Level Roll-Up Doors, two (2) 16’x16’ Ground-Level Roll-Up Doors, and two (2) 10’x14’’ Ground-Level Roll-Up Doors. The site offers an extra-large yard area, fenced and gated for storage or parking, and has a 5,250 SF covered canopy, plus a 2,400 SF covered parking.
Service Facility Facts
Building Size
9,730 SF
Lot Size
3.25 AC
Year Built
1992
Zoning
M-2
Select Tenants
- Floor
- Tenant Name
- Industry
- 1st
- Road Machinery LLC
- Construction
1 1
Somewhat walkable
20/100
Exceptionally drivable
100/100
Somewhat bikeable
20/100
1 of 9
Videos
Matterport 3D Exterior
Matterport 3D Tour
Photos
Street View
Street
Map
1 of 1
Presented by
3501 Unicorn Rd
Already a member? Log In
Hmm, there seems to have been an error sending your message. Please try again.
Thanks! Your message was sent.





