Your email has been sent.
Flamingo Pearl Office Building 3585 E Flamingo Rd 2,064 - 15,562 SF of Office Space Available in Las Vegas, NV 89121



Highlights
- Pylon Signage
- Furnished
- Street Frontage
All Available Spaces(4)
Display Rental Rate as
- Space
- Size
- Term
- Rental Rate
- Space Use
- Build-Out
- Available
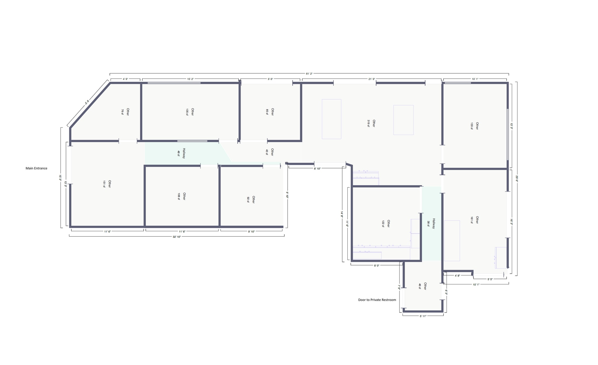
Ground floor corner suite with street view. Entry lobby, six (6) private offices, one (1) conference room, bullpen, wet break room and in-suite restroom.
- Lease rate does not include utilities, property expenses or building services
- Fits 6 - 17 People
- 1 Conference Room
- Can be combined with additional space(s) for up to 5,875 SF of adjacent space
- Corner Space
- Fully Built-Out as Standard Office
- 6 Private Offices
- Space is in Excellent Condition
- Private Restrooms
- In-suite restroom
Open pony wall cubicle bullpen with inline private offices, off-lobby office, and large meeting room at the rear with natural light.
- Lease rate does not include utilities, property expenses or building services
- Fits 10 - 31 People
- 2 Conference Rooms
- Space is in Excellent Condition
- Central Air Conditioning
- Natural Light
- Built-in cubicles
- Fully Built-Out as Professional Services Office
- 7 Private Offices
- Finished Ceilings: 10’
- Can be combined with additional space(s) for up to 5,875 SF of adjacent space
- Drop Ceilings
- Lots of natural light
Full south end ground floor of building located directly off the lobby. Two (2) large conference rooms, thirteen (13) private offices, break area with sink, copy room and record storage with sliding track archive system.
- Lease rate does not include utilities, property expenses or building services
- Fits 17 - 54 People
- 2 Conference Rooms
- Print/Copy Room
- Natural Light
- Fully Built-Out as Standard Office
- 13 Private Offices
- Space is in Excellent Condition
- Corner Space
Large offices (6), tall ceilings, lots of light, reception area with built in desk, break room, utility closet and storage. Front and rear exit. Open central work area with built ins. Feels very functional.
- Lease rate does not include utilities, property expenses or building services
- Mostly Open Floor Plan Layout
- 6 Private Offices
- Finished Ceilings: 10’
- High Ceilings
- Large Windows
- Fully Built-Out as Financial Services Office
- Fits 8 - 24 People
- 1 Conference Room
- Central Air and Heating
- Large Offices
| Space | Size | Term | Rental Rate | Space Use | Build-Out | Available |
| 1st Floor, Ste 101 | 2,064 SF | 3-5 Years | $15.60 /SF/YR $1.30 /SF/MO $32,198 /YR $2,683 /MO | Office | Full Build-Out | Now |
| 1st Floor, Ste 102 | 3,811 SF | 3-10 Years | $13.80 /SF/YR $1.15 /SF/MO $52,592 /YR $4,383 /MO | Office | Full Build-Out | Now |
| 1st Floor, Ste 103 | 6,709 SF | 3-10 Years | $13.80 /SF/YR $1.15 /SF/MO $92,584 /YR $7,715 /MO | Office | Full Build-Out | Now |
| 2nd Floor, Ste 201 | 2,978 SF | 3-5 Years | $13.20 /SF/YR $1.10 /SF/MO $39,310 /YR $3,276 /MO | Office | Full Build-Out | Now |
1st Floor, Ste 101
| Size |
| 2,064 SF |
| Term |
| 3-5 Years |
| Rental Rate |
| $15.60 /SF/YR $1.30 /SF/MO $32,198 /YR $2,683 /MO |
| Space Use |
| Office |
| Build-Out |
| Full Build-Out |
| Available |
| Now |
1st Floor, Ste 102
| Size |
| 3,811 SF |
| Term |
| 3-10 Years |
| Rental Rate |
| $13.80 /SF/YR $1.15 /SF/MO $52,592 /YR $4,383 /MO |
| Space Use |
| Office |
| Build-Out |
| Full Build-Out |
| Available |
| Now |
1st Floor, Ste 103
| Size |
| 6,709 SF |
| Term |
| 3-10 Years |
| Rental Rate |
| $13.80 /SF/YR $1.15 /SF/MO $92,584 /YR $7,715 /MO |
| Space Use |
| Office |
| Build-Out |
| Full Build-Out |
| Available |
| Now |
2nd Floor, Ste 201
| Size |
| 2,978 SF |
| Term |
| 3-5 Years |
| Rental Rate |
| $13.20 /SF/YR $1.10 /SF/MO $39,310 /YR $3,276 /MO |
| Space Use |
| Office |
| Build-Out |
| Full Build-Out |
| Available |
| Now |
1st Floor, Ste 101
| Size | 2,064 SF |
| Term | 3-5 Years |
| Rental Rate | $15.60 /SF/YR |
| Space Use | Office |
| Build-Out | Full Build-Out |
| Available | Now |
Ground floor corner suite with street view. Entry lobby, six (6) private offices, one (1) conference room, bullpen, wet break room and in-suite restroom.
- Lease rate does not include utilities, property expenses or building services
- Fully Built-Out as Standard Office
- Fits 6 - 17 People
- 6 Private Offices
- 1 Conference Room
- Space is in Excellent Condition
- Can be combined with additional space(s) for up to 5,875 SF of adjacent space
- Private Restrooms
- Corner Space
- In-suite restroom
1st Floor, Ste 102
| Size | 3,811 SF |
| Term | 3-10 Years |
| Rental Rate | $13.80 /SF/YR |
| Space Use | Office |
| Build-Out | Full Build-Out |
| Available | Now |
Open pony wall cubicle bullpen with inline private offices, off-lobby office, and large meeting room at the rear with natural light.
- Lease rate does not include utilities, property expenses or building services
- Fully Built-Out as Professional Services Office
- Fits 10 - 31 People
- 7 Private Offices
- 2 Conference Rooms
- Finished Ceilings: 10’
- Space is in Excellent Condition
- Can be combined with additional space(s) for up to 5,875 SF of adjacent space
- Central Air Conditioning
- Drop Ceilings
- Natural Light
- Lots of natural light
- Built-in cubicles
1st Floor, Ste 103
| Size | 6,709 SF |
| Term | 3-10 Years |
| Rental Rate | $13.80 /SF/YR |
| Space Use | Office |
| Build-Out | Full Build-Out |
| Available | Now |
Full south end ground floor of building located directly off the lobby. Two (2) large conference rooms, thirteen (13) private offices, break area with sink, copy room and record storage with sliding track archive system.
- Lease rate does not include utilities, property expenses or building services
- Fully Built-Out as Standard Office
- Fits 17 - 54 People
- 13 Private Offices
- 2 Conference Rooms
- Space is in Excellent Condition
- Print/Copy Room
- Corner Space
- Natural Light
2nd Floor, Ste 201
| Size | 2,978 SF |
| Term | 3-5 Years |
| Rental Rate | $13.20 /SF/YR |
| Space Use | Office |
| Build-Out | Full Build-Out |
| Available | Now |
Large offices (6), tall ceilings, lots of light, reception area with built in desk, break room, utility closet and storage. Front and rear exit. Open central work area with built ins. Feels very functional.
- Lease rate does not include utilities, property expenses or building services
- Fully Built-Out as Financial Services Office
- Mostly Open Floor Plan Layout
- Fits 8 - 24 People
- 6 Private Offices
- 1 Conference Room
- Finished Ceilings: 10’
- Central Air and Heating
- High Ceilings
- Large Offices
- Large Windows
Property Overview
Dramatic and timeless art deco entry lobby with modern building systems and access options. 3:1000 parking ratio with covered stalls and fast access to Clark County 215, 7 mins from Harry Reid International Airport (LAS), and easy Highway 95 / I-15 access Turn Key professional suite available for immediate move in. Clark County C-G Commercial GeneralProfessional office zoning for a variety of uses 2008 Construction, Fully Sprinklered building PERFECT Location for: architecture firms, contractors, insurance brokerages, accounting, real estate offices, gaming companies, tech, tutoring, and government.
- 24 Hour Access
- Bus Line
- Signage
Property Facts
Presented by
Flamingo Pearl Office Building | 3585 E Flamingo Rd
Hmm, there seems to have been an error sending your message. Please try again.
Thanks! Your message was sent.












