Log In/Sign Up
Your email has been sent.
Investment Highlights
- PRIVATE STREET ENTRANCE EAST 72ND STREET
- ADAPTABLE TO ANY MEDICAL SPECIALTY
- 75% MAX FINANCING
- MULTI-ZONE CLIMATE CONTROL
- NO FLIP TAX
1 Unit Available
- Unit
- Unit Size
- Condo Use
- Price
- NOI
| Sale Type | Owner User |
| Sale Type | Owner User |
Description
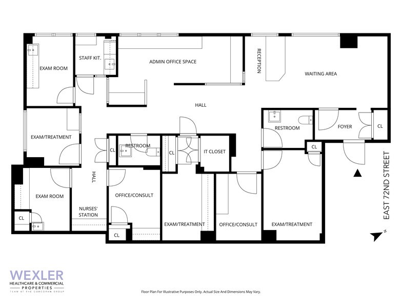
Available for sale, 360 East 72nd Street, Suite 1A is a move-in ready Lenox Hill medical office located between First and Second Avenues. This ground-floor medical suite is located at the base of a full-service cooperative featuring a private street entrance.
The layout of approximately 1,800 square feet includes a large area, a reception, admin office space, five exam/treatment rooms, two offices/consults, a nurses’ station, a staff kitchenette, two restrooms, and an IT closet.
This space features multi-zone climate control, six windows, and security system. This space is configured as a Hyperbaric Oxygen Therapy practice but is adaptable to any medical specialty.
360 East 72nd Street is easily accessible by public transportation via UES bus routes and subway lines. This location is proximate to Lenox Hill Hospital, NewYork-Presbyterian Hospital, Weill Cornell Medical Center, HSS Hospital for Special Surgery, and Memorial Sloan Kettering Cancer Center.
Maintenance/Month: $3,151.11
Max Financing: 75%
Flip Tax: None
The layout of approximately 1,800 square feet includes a large area, a reception, admin office space, five exam/treatment rooms, two offices/consults, a nurses’ station, a staff kitchenette, two restrooms, and an IT closet.
This space features multi-zone climate control, six windows, and security system. This space is configured as a Hyperbaric Oxygen Therapy practice but is adaptable to any medical specialty.
360 East 72nd Street is easily accessible by public transportation via UES bus routes and subway lines. This location is proximate to Lenox Hill Hospital, NewYork-Presbyterian Hospital, Weill Cornell Medical Center, HSS Hospital for Special Surgery, and Memorial Sloan Kettering Cancer Center.
Maintenance/Month: $3,151.11
Max Financing: 75%
Flip Tax: None
| Unit | Unit Size | Condo Use | Price | NOI |
| Unit 1A | 1,800 SF | Office/Medical | $1,695,000 ($941.67/SF) | - |
Unit 1A
| Unit Size |
| 1,800 SF |
| Condo Use |
| Office/Medical |
| Price |
| $1,695,000 ($941.67/SF) |
| NOI |
| - |
1 of 13
Videos
Matterport 3D Exterior
Matterport 3D Tour
Photos
Street View
Street
Map
Unit 1A
| Unit Size | 1,800 SF |
| Condo Use | Office/Medical |
| Price | $1,695,000 ($941.67/SF) |
| NOI | - |
| Sale Type | Owner User |
| Description | |
| Available for sale, 360 East 72nd Street, Suite 1A is a move-in ready Lenox Hill medical office located between First and Second Avenues. This ground-floor medical suite is located at the base of a full-service cooperative featuring a private street entrance.<br> <br> The layout of approximately 1,800 square feet includes a large area, a reception, admin office space, five exam/treatment rooms, two offices/consults, a nurses’ station, a staff kitchenette, two restrooms, and an IT closet.<br> <br> This space features multi-zone climate control, six windows, and security system. This space is configured as a Hyperbaric Oxygen Therapy practice but is adaptable to any medical specialty.<br> <br> 360 East 72nd Street is easily accessible by public transportation via UES bus routes and subway lines. This location is proximate to Lenox Hill Hospital, NewYork-Presbyterian Hospital, Weill Cornell Medical Center, HSS Hospital for Special Surgery, and Memorial Sloan Kettering Cancer Center.<br> <br> Maintenance/Month: $3,151.11<br> Max Financing: 75%<br> Flip Tax: None</li></ul> |
Property Facts
The following property facts and amenities apply to the entire building. Details for individual condo units may vary and are listed in the unit information above.
| Total Building Size | 560,525 SF | Floors | 34 |
| Property Type | Multifamily (Condo) | Typical Floor Size | 16,486 SF |
| Property Subtype | Apartment | Year Built | 1963 |
| Building Class | B | Lot Size | 0.94 AC |
| Zoning | R10A - Residential | ||
| Total Building Size | 560,525 SF |
| Property Type | Multifamily (Condo) |
| Property Subtype | Apartment |
| Building Class | B |
| Floors | 34 |
| Typical Floor Size | 16,486 SF |
| Year Built | 1963 |
| Lot Size | 0.94 AC |
| Zoning | R10A - Residential |
Amenities
Site Amenities
- 24 Hour Access
- Concierge
- Fitness Center
- Laundry Facilities
- Playground
- Doorman
- Package Service
- Smoke Free
- Storage Space
- Bicycle Storage
- Elevator
- Lounge
- Zen Garden
- Green Community
Unit Mix Information
| Description | No. Units | Avg. Rent/Mo | SF |
|---|---|---|---|
| Studios | 460 | - | - |
1 1
Exceptionally walkable
100/100
Fairly drivable
50/100
Exceptional public transit
100/100
Very bikeable
80/100
1 of 5
Videos
Matterport 3D Exterior
Matterport 3D Tour
Photos
Street View
Street
Map
1 of 1
Presented by
360 E 72nd St
Already a member? Log In
Hmm, there seems to have been an error sending your message. Please try again.
Thanks! Your message was sent.





