Log In/Sign Up
Your email has been sent.
Investment Highlights
- Close To Services
- Off-Street Parking
Executive Summary
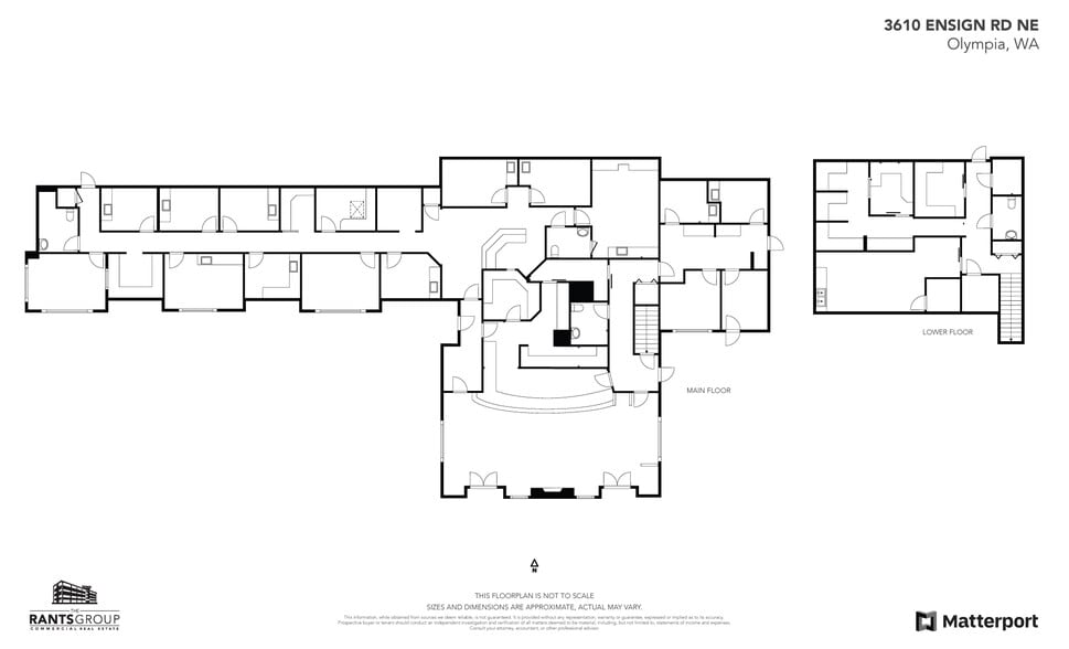
This 6,222 SF medical office building, formerly used as a surgical center, is located on 0.53 acres across from Providence St. Peter Hospital (A 390-bed non-profit teaching hospital). The building features ten exam rooms, a procedure room, multiple reception and administrative areas, four restrooms, more than nine private offices, a large kitchen/breakroom, ample storage, 30 off-street parking stalls, and a covered patient drive-thru/drop-off area.
Property Facts
Sale Type
Owner User
Property Type
Office
Property Subtype
Medical
Building Size
6,711 SF
Building Class
B
Year Built
1978
Price
$1,575,000
Price Per SF
$234.69
Tenancy
Multiple
Building Height
1 Story
Typical Floor Size
6,711 SF
Building FAR
0.29
Lot Size
0.53 AC
Zoning
MS - Medical Services
Parking
30 Spaces (4.47 Spaces per 1,000 SF Leased)
Amenities
- Bus Line
- Signage
Space Availability
- Space
- Size
- Space Use
- Condition
- Available
| Space | Size | Space Use | Condition | Available |
| 1st Floor | 6,222 SF | Office | - | Now |
1st Floor
| Size |
| 6,222 SF |
| Space Use |
| Office |
| Condition |
| - |
| Available |
| Now |
1 of 30
Videos
Matterport 3D Exterior
Matterport 3D Tour
Photos
Street View
Street
Map
1st Floor
| Size | 6,222 SF |
| Space Use | Office |
| Condition | - |
| Available | Now |
1 1
Bike Score®
Very Bikeable (75)
Property Taxes
| Parcel Number | 66180000800 | Improvements Assessment | $826,300 (2024) |
| Land Assessment | $344,100 (2024) | Total Assessment | $1,170,400 (2024) |
Property Taxes
Parcel Number
66180000800
Land Assessment
$344,100 (2024)
Improvements Assessment
$826,300 (2024)
Total Assessment
$1,170,400 (2024)
1 of 15
Videos
Matterport 3D Exterior
Matterport 3D Tour
Photos
Street View
Street
Map
1 of 1
Presented by
3610 Ensign Rd NE
Already a member? Log In
Hmm, there seems to have been an error sending your message. Please try again.
Thanks! Your message was sent.
Your message has been sent!
Activate your LoopNet account now to track properties, get real-time alerts, save time on future inquiries, and more.







