Your email has been sent.
HIGHLIGHTS
- Located within an active strip center
- Multiple affordable office options
- Mix of first and second-floor availability
- Surrounded by offices, restaurants, retail & service businesses
- Units from 175 SF - 600 SF
- Central Sarasota location near major corridors
ALL AVAILABLE SPACES(3)
Display Rental Rate as
- SPACE
- SIZE
- TERM
- RENTAL RATE
- SPACE USE
- CONDITION
- AVAILABLE
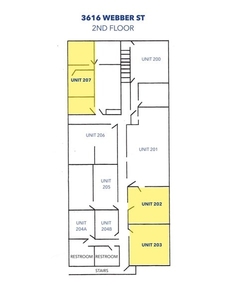
Unit 202 | 2nd Floor | 175 SF - $350/mo (Absolute Gross) A compact open-plan suite suitable for a private office, small administrative use, or professional workspace. Electric, water, and trash pick-up are included in the monthly rate.
- Rate includes utilities, building services and property expenses
Unit 203 | 2nd Floor | 200 SF - $475/mo (Absolute Gross) An efficient open-layout office ideal for small operations or solo users. This unit includes a window providing natural light and a flexible configuration. Electric, water, and trash pick-up are included in the monthly rate.
- Rate includes utilities, building services and property expenses
Unit 207 | 2nd Floor | 600 SF - $900/mo (Absolute Gross) This larger suite features five individual rooms, a newly installed countertop and sink in one of the rooms, retextured and freshly painted walls and ceilings, and updated lighting. A window allows natural light into the space. Electric, water, and trash pick-up are included in the monthly rate.
- Rate includes utilities, building services and property expenses
| Space | Size | Term | Rental Rate | Space Use | Condition | Available |
| 2nd Floor, Ste Unit 202 | 175 SF | Negotiable | $24.00 /SF/YR $2.00 /SF/MO $4,200 /YR $350.00 /MO | Office | - | Now |
| 2nd Floor, Ste Unit 203 | 200 SF | Negotiable | $28.50 /SF/YR $2.38 /SF/MO $5,700 /YR $475.00 /MO | Office | - | Now |
| 2nd Floor, Ste Unit 207 | 600 SF | Negotiable | $18.00 /SF/YR $1.50 /SF/MO $10,800 /YR $900.00 /MO | Office | - | Now |
2nd Floor, Ste Unit 202
| Size |
| 175 SF |
| Term |
| Negotiable |
| Rental Rate |
| $24.00 /SF/YR $2.00 /SF/MO $4,200 /YR $350.00 /MO |
| Space Use |
| Office |
| Condition |
| - |
| Available |
| Now |
2nd Floor, Ste Unit 203
| Size |
| 200 SF |
| Term |
| Negotiable |
| Rental Rate |
| $28.50 /SF/YR $2.38 /SF/MO $5,700 /YR $475.00 /MO |
| Space Use |
| Office |
| Condition |
| - |
| Available |
| Now |
2nd Floor, Ste Unit 207
| Size |
| 600 SF |
| Term |
| Negotiable |
| Rental Rate |
| $18.00 /SF/YR $1.50 /SF/MO $10,800 /YR $900.00 /MO |
| Space Use |
| Office |
| Condition |
| - |
| Available |
| Now |
2nd Floor, Ste Unit 202
| Size | 175 SF |
| Term | Negotiable |
| Rental Rate | $24.00 /SF/YR |
| Space Use | Office |
| Condition | - |
| Available | Now |
Unit 202 | 2nd Floor | 175 SF - $350/mo (Absolute Gross) A compact open-plan suite suitable for a private office, small administrative use, or professional workspace. Electric, water, and trash pick-up are included in the monthly rate.
- Rate includes utilities, building services and property expenses
2nd Floor, Ste Unit 203
| Size | 200 SF |
| Term | Negotiable |
| Rental Rate | $28.50 /SF/YR |
| Space Use | Office |
| Condition | - |
| Available | Now |
Unit 203 | 2nd Floor | 200 SF - $475/mo (Absolute Gross) An efficient open-layout office ideal for small operations or solo users. This unit includes a window providing natural light and a flexible configuration. Electric, water, and trash pick-up are included in the monthly rate.
- Rate includes utilities, building services and property expenses
2nd Floor, Ste Unit 207
| Size | 600 SF |
| Term | Negotiable |
| Rental Rate | $18.00 /SF/YR |
| Space Use | Office |
| Condition | - |
| Available | Now |
Unit 207 | 2nd Floor | 600 SF - $900/mo (Absolute Gross) This larger suite features five individual rooms, a newly installed countertop and sink in one of the rooms, retextured and freshly painted walls and ceilings, and updated lighting. A window allows natural light into the space. Electric, water, and trash pick-up are included in the monthly rate.
- Rate includes utilities, building services and property expenses
PROPERTY OVERVIEW
American Property Group of Sarasota, Inc. presents 3616 Webber St, Sarasota, FL Property Type: Office Space for Lease Spaces Available: Multiple units ranging from 175 SF - 600 SF Located within a well-positioned neighborhood strip center, this property offers convenient access and strong visibility surrounded by a variety of established tenants, including offices, restaurants, retail, and service-based businesses. This central Sarasota location provides an ideal setting for small businesses seeking an affordable and professional workspace with nearby amenities. Electric, water, and trash pick-up are included in the monthly rate (Absolute Gross). Available Units (Current): Unit 207 | 2nd Floor | 600 SF - $900/mo This larger suite features five individual rooms, a newly installed countertop and sink in one of the rooms, retextured and freshly painted walls and ceilings, and updated lighting. A window allows natural light into the space. Electric, water, and trash pick-up are included in the monthly rate. Unit 203 | 2nd Floor | 200 SF - $475/mo An efficient open-layout office ideal for small operations or solo users. This unit includes a window providing natural light and a flexible configuration. Unit 202 | 2nd Floor | 175 SF - $350/mo A compact open-plan suite suitable for a private office, small administrative use, or professional workspace.
- Bus Line
- Reception
- Partitioned Offices
- Air Conditioning
PROPERTY FACTS
SELECT TENANTS
- FLOOR
- TENANT NAME
- INDUSTRY
- 1st
- Adtech Cleaning Svc Inc
- Services
- 1st
- Atlantic Paving & Concrete
- Construction
- 2nd
- CPR Sarasota
- -
- 1st
- Jjp Properties LLC
- Real Estate
- 1st
- Rosanne M Davis Lmt
- Health Care and Social Assistance
- 1st
- Shifting Sands Coaching Systems
- Health Care and Social Assistance
- 1st
- Spider King LLC
- Public Administration
- 1st
- Sympson & Assoc
- Finance and Insurance
Presented by
3616 Webber St
Hmm, there seems to have been an error sending your message. Please try again.
Thanks! Your message was sent.


