Log In/Sign Up
Your email has been sent.
Mercer Univ Dr Retail Storefront 3627 Mercer University Dr 8,692 SF Retail Building Macon-Bibb, GA 31204 $725,000 ($83.41/SF)



INVESTMENT HIGHLIGHTS
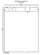
- Mostly open floorplan allows for easy modification
- 125 ft frontage on Mercer University Drive with 24,400 VPD
- Surrounded by national retailers
- 0.78-acre site with 36 on-site parking spaces
- Minutes from Atrium Health Amphitheatre and The Macon Mall
EXECUTIVE SUMMARY
PRICE REDUCED! 8,692 SF freestanding retail building available. Mostly open floorplan allows for easy modification for a variety of uses. Property sits on a 0.78 Acre lot and has ample parking (36 spaces). Great visibility on Mercer University Drive. Also available for lease.
Located on Mercer University Drive, just minutes away from the Atrium Health Amphitheatre and The Macon Mall. Other surrounding neighbors include Ollie’s Bargain Outlet, Rack Room Shoes, Cato, Foot Locker, Pizza Hut, No Name Chicken, Burger King, Ken’s Stereo Macon, Capital City Bank, Title Max, Loan Max, and many more restaurants, retailers, and businesses.
Located on Mercer University Drive, just minutes away from the Atrium Health Amphitheatre and The Macon Mall. Other surrounding neighbors include Ollie’s Bargain Outlet, Rack Room Shoes, Cato, Foot Locker, Pizza Hut, No Name Chicken, Burger King, Ken’s Stereo Macon, Capital City Bank, Title Max, Loan Max, and many more restaurants, retailers, and businesses.
PROPERTY FACTS
Sale Type
Investment or Owner User
Property Type
Retail
Property Subtype
Building Size
8,692 SF
Building Class
C
Year Built
1984
Price
$725,000
Price Per SF
$83.41
Tenancy
Single
Building Height
1 Story
Building FAR
0.26
Lot Size
0.78 AC
Zoning
C-2 - Commercial
Parking
30 Spaces (3.45 Spaces per 1,000 SF Leased)
Frontage
125’ on Mercer University Dr
AMENITIES
- 24 Hour Access
- Signage
- Air Conditioning
SPACE AVAILABILITY
- SPACE
- SIZE
- SPACE USE
- POSITION
- AVAILABLE
8,692 SF freestanding retail building available. Mostly open floorplan allows for easy modification for a variety of uses.
| Space | Size | Space Use | Position | Available |
| 1st Floor | 8,692 SF | Retail | Outparcel | Now |
1st Floor
| Size |
| 8,692 SF |
| Space Use |
| Retail |
| Position |
| Outparcel |
| Available |
| Now |
1 of 7
VIDEOS
MATTERPORT 3D EXTERIOR
MATTERPORT 3D TOUR
PHOTOS
STREET VIEW
STREET
MAP
1st Floor
| Size | 8,692 SF |
| Space Use | Retail |
| Position | Outparcel |
| Available | Now |
8,692 SF freestanding retail building available. Mostly open floorplan allows for easy modification for a variety of uses.
NEARBY MAJOR RETAILERS
PROPERTY TAXES
| Parcel Number | M084-0007 | Improvements Assessment | $73,684 |
| Land Assessment | $51,818 | Total Assessment | $125,502 |
PROPERTY TAXES
Parcel Number
M084-0007
Land Assessment
$51,818
Improvements Assessment
$73,684
Total Assessment
$125,502
1 of 10
VIDEOS
MATTERPORT 3D EXTERIOR
MATTERPORT 3D TOUR
PHOTOS
STREET VIEW
STREET
MAP
Presented by
Mercer Univ Dr Retail Storefront | 3627 Mercer University Dr
Already a member? Log In
Hmm, there seems to have been an error sending your message. Please try again.
Thanks! Your message was sent.



