Your email has been sent.
Warehouse/Flex Space 36730 Democracy Dr 870 - 4,910 SF of Flex Space Available in Trinidad, CO 81082



Highlights
- Heated & Insulated, 24/7 security monitoring, easy I-25 Access
Features
All Available Space(1)
Display Rental Rate as
- Space
- Size
- Term
- Rental Rate
- Space Use
- Condition
- Available
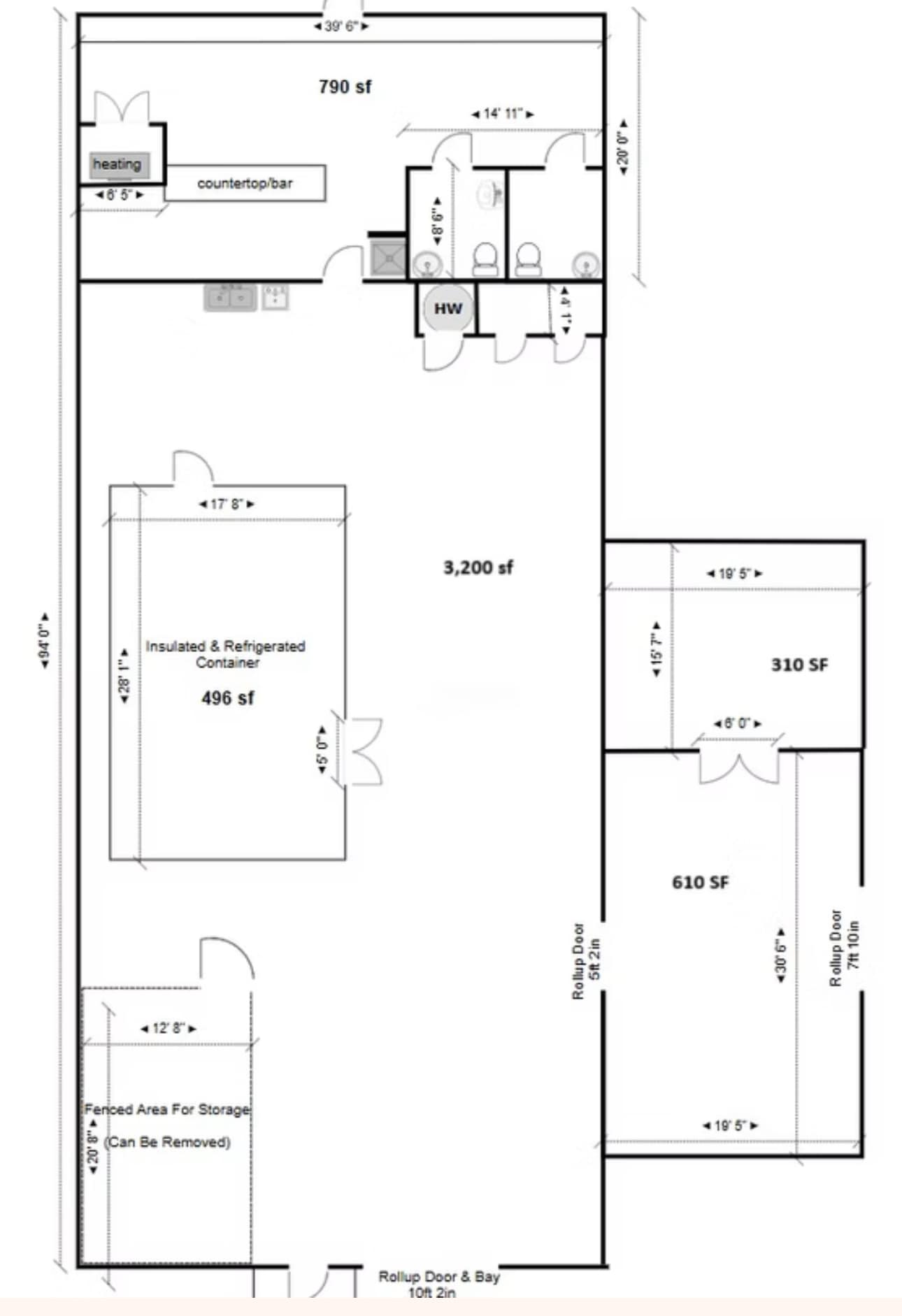
Main Warehouse: 3,200 sq. ft. Includes 500 sq. ft. Insulated Refrigerated Container Removable 20' x 12' fenced storage Side Room A: 310 sq. ft. Side Room B: 610 sq. ft. Optional Shared Office: 790 sq. ft Key Features Two large 10’ roll-up doors for easy loading and equipment access Loading dock for efficient shipping/receiving High ceilings, insulated & heated warehouse 2 ADA-compliant restrooms Plenty of on-site parking for employees and visitors Fenced and secure property with 24/7 security monitoring & nighttime lighting Fast internet connection included Overhead power & floor drains – ideal for food production or manufacturing Instant hot water system Office space features A/C and modern finishes Commercial zoning suitable for a wide range of industrial or food-related uses Lease Terms Modified Gross Lease Trash, internet, and snow removal included Other utilities covered by landlord up to 2024 averages; overages billed to tenant Lease Rate: $8.90 – $9.80/SF annually (depending on term & agreement) Flexible Lease Options: 1-year minimum; discounted rate for multi-year commitments Willing to negotiate all or partial warehouse space to accommodate tenant needs Location Advantages Convenient access to I/25 for distribution, contractors, or production operations Secure, well-maintained property in a commercially zoned district On-site Snow Removal
- Listed rate may not include certain utilities, building services and property expenses
- Central Air and Heating
- Reception Area
- Wi-Fi Connectivity
- Closed Circuit Television Monitoring (CCTV)
- Fits 1 - 40 People
- High Ceilings
- Wheelchair Accessible
- Heated and insulated
- Space is in Excellent Condition
- 1 Private Office
- Private Restrooms
- Security System
- Secure Storage
- Finished Ceilings: 12’ - 15’
- Smoke Detector
- 24/7 Security Monitoring
- Easy I-25 Access
| Space | Size | Term | Rental Rate | Space Use | Condition | Available |
| 1st Floor | 870-4,910 SF | Negotiable | $8.90 /SF/YR $0.74 /SF/MO $43,699 /YR $3,642 /MO | Flex | - | Now |
1st Floor
| Size |
| 870-4,910 SF |
| Term |
| Negotiable |
| Rental Rate |
| $8.90 /SF/YR $0.74 /SF/MO $43,699 /YR $3,642 /MO |
| Space Use |
| Flex |
| Condition |
| - |
| Available |
| Now |
1st Floor
| Size | 870-4,910 SF |
| Term | Negotiable |
| Rental Rate | $8.90 /SF/YR |
| Space Use | Flex |
| Condition | - |
| Available | Now |
Main Warehouse: 3,200 sq. ft. Includes 500 sq. ft. Insulated Refrigerated Container Removable 20' x 12' fenced storage Side Room A: 310 sq. ft. Side Room B: 610 sq. ft. Optional Shared Office: 790 sq. ft Key Features Two large 10’ roll-up doors for easy loading and equipment access Loading dock for efficient shipping/receiving High ceilings, insulated & heated warehouse 2 ADA-compliant restrooms Plenty of on-site parking for employees and visitors Fenced and secure property with 24/7 security monitoring & nighttime lighting Fast internet connection included Overhead power & floor drains – ideal for food production or manufacturing Instant hot water system Office space features A/C and modern finishes Commercial zoning suitable for a wide range of industrial or food-related uses Lease Terms Modified Gross Lease Trash, internet, and snow removal included Other utilities covered by landlord up to 2024 averages; overages billed to tenant Lease Rate: $8.90 – $9.80/SF annually (depending on term & agreement) Flexible Lease Options: 1-year minimum; discounted rate for multi-year commitments Willing to negotiate all or partial warehouse space to accommodate tenant needs Location Advantages Convenient access to I/25 for distribution, contractors, or production operations Secure, well-maintained property in a commercially zoned district On-site Snow Removal
- Listed rate may not include certain utilities, building services and property expenses
- Space is in Excellent Condition
- Central Air and Heating
- 1 Private Office
- Reception Area
- Private Restrooms
- Wi-Fi Connectivity
- Security System
- Closed Circuit Television Monitoring (CCTV)
- Secure Storage
- Fits 1 - 40 People
- Finished Ceilings: 12’ - 15’
- High Ceilings
- Smoke Detector
- Wheelchair Accessible
- 24/7 Security Monitoring
- Heated and insulated
- Easy I-25 Access
Property Overview
For Lease – Versatile 4,120 SF Warehouse with Optional 790 SF Office Space This highly functional warehouse offers flexibility for a wide variety of uses, including manufacturing, storage, food production, bottling/labeling, contractor space, or creative industrial use. The property is well-equipped with 3way power, infrastructure, and amenities to support growing businesses. Property Highlights Total Size: 4,910 SF 4,120 SF warehouse Main Warehouse: 3,200 SF clear-span space Side Room: 910 SF attached to main area Insulated Container: 500 SF within warehouse for advanced food/production or secure storage Commercial Kitchen already in place Optional Office Space: 790 SF available with A/C (can be leased separately or combined) Key Features Two large 10’ roll-up doors for easy loading and equipment access Loading dock for efficient shipping/receiving High ceilings, insulated & heated warehouse 2 ADA-compliant restrooms Plenty of on-site parking for employees and visitors Fenced and secure property with 24/7 security monitoring & nighttime lighting Fast internet connection included Overhead three way power & floor drains – ideal for food production or manufacturing Instant hot water system Office space features A/C Commercial zoning suitable for a wide range of industrial or food-related uses Lease Terms Modified Gross Lease: Trash, internet, and snow removal included! Other utilities covered by landlord based on 2024 averages; overages billed to tenant Lease Rate: $8.90 – $9.80/SF annually (depending on term & agreement) Flexible Lease Options: 1-year minimum; discounted rate for multi-year commitments Willing to negotiate all or partial warehouse space to accommodate tenant needs Location Advantages Convenient access to I/25 for distribution, contractors, or production operations Secure, well-maintained property in a commercially zoned district Do you have questions? Would you like a virtual or in person tour?
Warehouse Facility Facts
Presented by
Las Animas County Storage
Warehouse/Flex Space | 36730 Democracy Dr
Hmm, there seems to have been an error sending your message. Please try again.
Thanks! Your message was sent.



