Your email has been sent.
Park Highlights
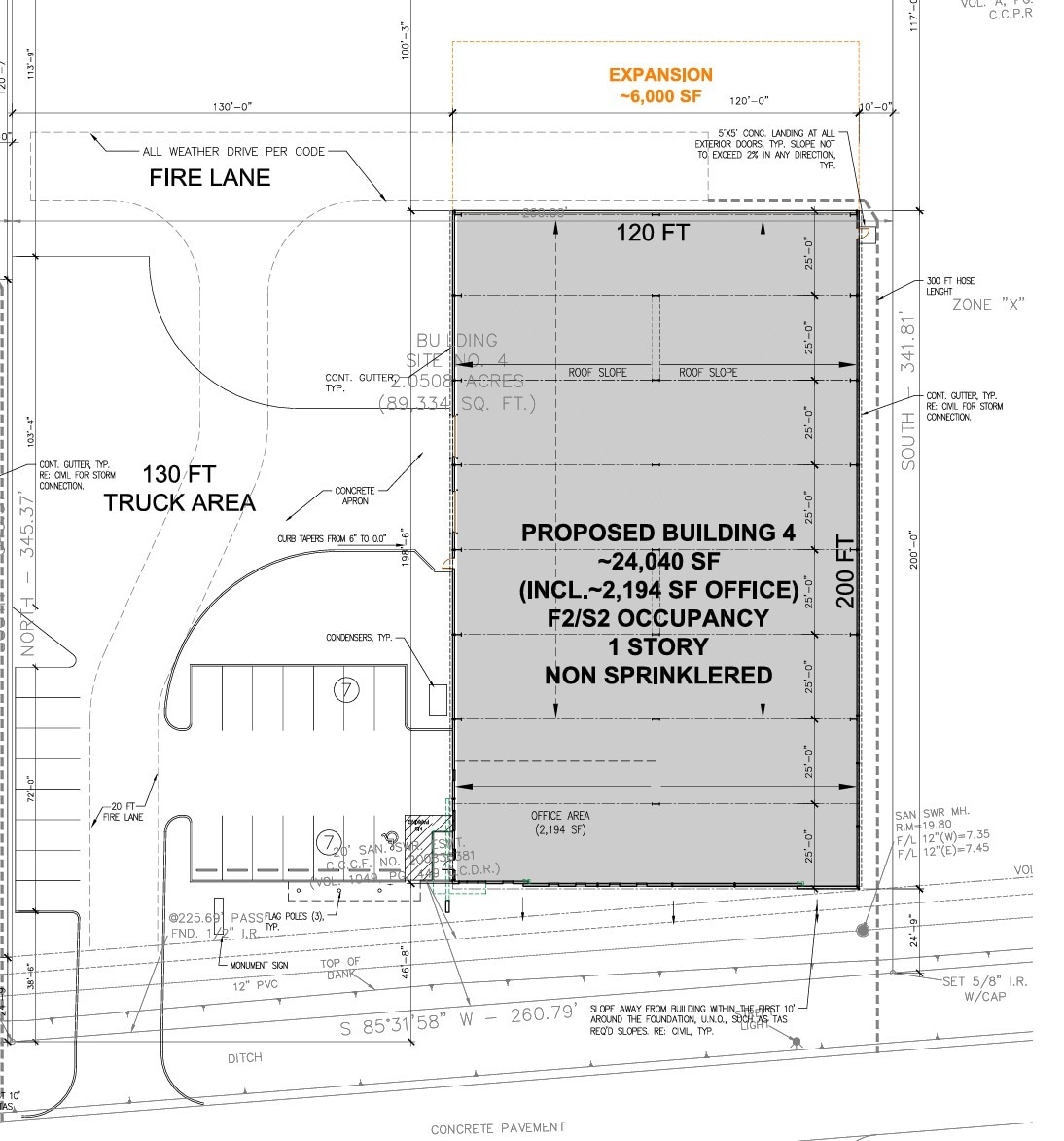
- Cedar Port Industrial Park offers two identical, newly built 24,040-square-foot warehouse facilities, each with 2,194 square feet of office space.
- Park is a crucial last-mile distribution hub with a heavy haul corridor, two barge terminals, and more than 100 miles of dual-service rail.
- Join Houston’s top performers, including Ikea, The Home Depot, Walmart, and DHL, which all have substantial distribution facilities in the park.
- Both buildings feature 28-foot clear heights, 130-foot truck courts, 12-foot by 14-foot overhead doors, and 480-volt, 3-phase, 800-amp heavy power.
- Incredible connection via direct access to Highway 99 provides a 40-minute drive to Downtown Houston and unmatched port and air connectivity.
Park Facts
Features and Amenities
- Freeway Visibility
- Storage Space
- Air Conditioning
All Available Spaces(2)
Display Rental Rate as
- Space
- Size
- Term
- Rental Rate
- Space Use
- Build-Out
- Available
20-ton crane ready space featuring a 28-foot clear height, 12-foot by 14-foot overhead doors, 2,194 square feet of office space, 130-foot truck courts, and 480 Volt, 3 Phase, 800-amp heavy power. Ownership is willing to provide custom build-outs for maximum flexibility.
- Includes 2,194 SF of dedicated office space
- Space is in Excellent Condition
- Heavy Power
- 2 Drive Ins
- 28-Foot Clear
- 12' x 14' Overhead Doors
| Space | Size | Term | Rental Rate | Space Use | Build-Out | Available |
| 1st Floor | 24,040 SF | Negotiable | Upon Request Upon Request Upon Request Upon Request | Industrial | Partial Build-Out | Now |
3711 Cedar Blvd - 1st Floor
- Space
- Size
- Term
- Rental Rate
- Space Use
- Build-Out
- Available
20-ton crane ready facility featuring a 28-foot clear height, 12-foot by 14-foot overhead doors, 2,194 square feet of office space, 130-foot truck courts, and 480 Volt, 3 Phase, 800-amp heavy power. Ownership is willing to provide custom build-outs for maximum flexibility.
- Includes 2,194 SF of dedicated office space
- Space is in Excellent Condition
- Heavy Power
- 2 Drive Ins
- 28-Foot Clear
- 12' x 14' Overhead Doors
| Space | Size | Term | Rental Rate | Space Use | Build-Out | Available |
| 1st Floor | 24,040 SF | Negotiable | Upon Request Upon Request Upon Request Upon Request | Industrial | Partial Build-Out | Now |
3703 Cedar Blvd - 1st Floor
3711 Cedar Blvd - 1st Floor
| Size | 24,040 SF |
| Term | Negotiable |
| Rental Rate | Upon Request |
| Space Use | Industrial |
| Build-Out | Partial Build-Out |
| Available | Now |
20-ton crane ready space featuring a 28-foot clear height, 12-foot by 14-foot overhead doors, 2,194 square feet of office space, 130-foot truck courts, and 480 Volt, 3 Phase, 800-amp heavy power. Ownership is willing to provide custom build-outs for maximum flexibility.
- Includes 2,194 SF of dedicated office space
- 2 Drive Ins
- Space is in Excellent Condition
- 28-Foot Clear
- Heavy Power
- 12' x 14' Overhead Doors
3703 Cedar Blvd - 1st Floor
| Size | 24,040 SF |
| Term | Negotiable |
| Rental Rate | Upon Request |
| Space Use | Industrial |
| Build-Out | Partial Build-Out |
| Available | Now |
20-ton crane ready facility featuring a 28-foot clear height, 12-foot by 14-foot overhead doors, 2,194 square feet of office space, 130-foot truck courts, and 480 Volt, 3 Phase, 800-amp heavy power. Ownership is willing to provide custom build-outs for maximum flexibility.
- Includes 2,194 SF of dedicated office space
- 2 Drive Ins
- Space is in Excellent Condition
- 28-Foot Clear
- Heavy Power
- 12' x 14' Overhead Doors
Matterport 3D Tours
Park Overview
3711 and 3703 Cedar Boulevard offer brand-new warehouse space in Houston’s most pivotal commercial hub with air, land, and sea access. The two new buildings, nestled in the bustling Cedar Port Industrial Park, are identical 24,040-square-foot facilities completed in late 2024. Both are 20-ton crane ready and feature 28-foot clear heights, 12-foot by 14-foot overhead doors, 2,194 square feet of office space, 130-foot truck courts, and 480-volt, 3-phase, 800-amp heavy power. Ownership is willing to provide custom buildouts for maximum flexibility. Cedar Port Industrial Park’s strategic positioning near the Port of Houston and major thoroughfares has made it a crucial last-mile distribution hub, with dozens of companies, including Walmart, Ikea, The Home Depot, and DHL, already operating within the park. The park is designated a foreign trade zone, leading to potential tax incentives. A heavy haul corridor services its high-volume logistical capacity, two barge terminals able to handle overweight containers, and more than 100 miles of dual-service operating rail within the park. The park offers unmatched convenience to the Port of Houston; however, with direct access to Highway 99 and a regional airport 10 minutes away, all modes of transport lie at the doorstep of Cedar Port Industrial Park. With robust locational advantages and best-in-class industrial space, 3711 and 3703 Cedar Boulevard offer indispensable tools to accelerate organizational success and prosperity.
Park Brochure
About East Southeast Far
The Port of Houston continues to be an economic engine for this area of Houston. The Houston Ship Channel is home to 330 public and private terminals that are owned by more than 150 companies. One of the world's busiest waterways, the area constitutes the largest petrochemical complex in the world. The Port of Houston is also the nation’s largest net-export port and first in terms of international traffic.
From a warehouse and distribution perspective, it has direct access to several major arteries, including Interstate 10, Beltway 8, and Texas State Highway 146, that can connect distributors with the growing population in this part of Houston. As suburban south Houston continues to grow, so should industrial demand for e-commerce and distribution uses in the future.
A notable amount of wholesale trade and transportation occupiers are located here. Some of the area's largest industrial occupiers include Katoen Natie USA (1.1 million square feet), Home Depot Distribution (750,000 square feet), Ravagos Americas (710,000 square feet), and Exel, Inc. (640,000 square feet).
Demographics
Regional Accessibility
Leasing Team
Ryan Wasaff, Sr. Vice President
Prior to joining Welcome Group, Mr. Wasaff was a landlord leasing representative for TCP Realty Services, where his team was responsible for leasing a portfolio of over 5 million square feet of office space.
An avid sportsman, Mr. Wasaff enjoys hunting, fishing, and horseback riding. He has long been active with the Houston Livestock Show and Rodeo, serving as a Vice Chairman of the Lamb and Goat Auction Committee, as well as serving on the Grand Entry Committee, and Ranching & Wildlife. He rides with the Tejas Vaqueros and the Saltgrass Trail Ride, and is a member of the Jacques DeMolay Masonic Lodge Number 1390. He is also a native Houstonian.
Brad Berry, Vice President
Cole Bercher, Senior Associate
About the Owner
Other Properties in the WELCOME GROUP Portfolio
Presented by
Cedar Port Industrial Park | Baytown, TX 77523
Hmm, there seems to have been an error sending your message. Please try again.
Thanks! Your message was sent.







