Log In/Sign Up
Your email has been sent.
Property Facts
| Sale Type | Investment or Owner User | Construction Status | Proposed |
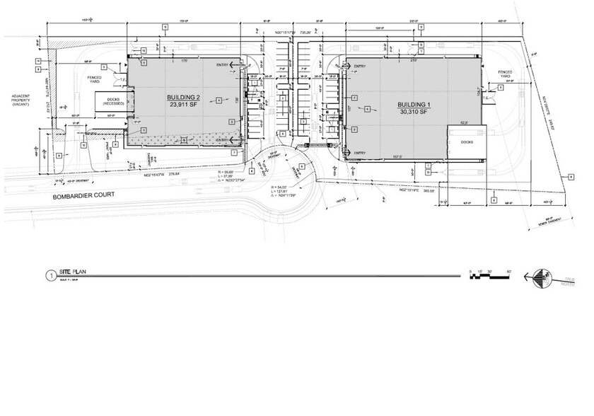
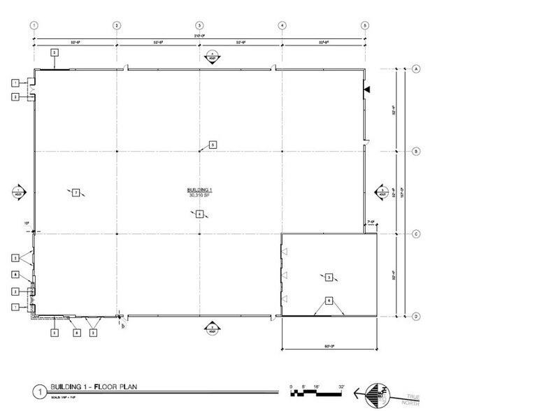
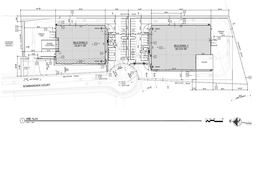
| Property Type | Industrial | Rentable Building Area | 30,310 SF |
| Building Class | B | No. Stories | 1 |
| Lot Size | 1.77 AC | Year Built | 2027 |
| Zoning | M1 | ||
| Sale Type | Investment or Owner User |
| Property Type | Industrial |
| Building Class | B |
| Lot Size | 1.77 AC |
| Construction Status | Proposed |
| Rentable Building Area | 30,310 SF |
| No. Stories | 1 |
| Year Built | 2027 |
| Zoning | M1 |
Space Availability
- Space
- Size
- Space Use
- Condition
- Available
- 1st Floor
- 30,310 SF
- Industrial
- -
- Sep 2026
| Space | Size | Space Use | Condition | Available |
| 1st Floor | 30,310 SF | Industrial | - | Sep 2026 |
1st Floor
| Size |
| 30,310 SF |
| Space Use |
| Industrial |
| Condition |
| - |
| Available |
| Sep 2026 |
1 1
Property Taxes
| Parcel Number | 067-0160-096 | Improvements Assessment | $0 |
| Land Assessment | $232,166 | Total Assessment | $232,166 |
Property Taxes
Parcel Number
067-0160-096
Land Assessment
$232,166
Improvements Assessment
$0
Total Assessment
$232,166
1 of 7
Videos
Matterport 3D Exterior
Matterport 3D Tour
Photos
Street View
Street
Map
1 of 1
Presented by
3761 Bombardier Ct
Already a member? Log In
Hmm, there seems to have been an error sending your message. Please try again.
Thanks! Your message was sent.
Your message has been sent!
Activate your LoopNet account now to track properties, get real-time alerts, save time on future inquiries, and more.



