Your email has been sent.
3772 S Military Trl 1,200 - 2,400 SF of Retail Space Available in Lake Worth, FL 33463



Highlights
- Newly redeveloped shopping center offering nine shell suites between 490 and 3,000 SF in vanilla shell condition for build-to-suit customization.
- Easily accessible from major hotspots, including Lake Worth Beach (5 miles) and Palm Beach International Airport (5.2 miles).
- Supported by a 3-mile population of more than 171,000, with an average household income of over $69,000 and annual spending exceeding $1.6 billion.
- Ideal corner location, just off the intersection of Military Trail and Lake Worth Road, with visibility to over 40,000 passing vehicles each day.
- Surrounded by traffic-driving retail, including The Home Depot, Sherwin-Williams, AutoZone, Dollar Tree, KFC, IHOP, Dairy Queen, and more.
Space Availability (1)
Display Rental Rate as
- Space
- Size
- Term
- Rental Rate
- Rent Type
| Space | Size | Term | Rental Rate | Rent Type | ||
| 1st Floor | 1,200-2,400 SF | 1-10 Years | $45.00 /SF/YR $3.75 /SF/MO $108,000 /YR $9,000 /MO | Modified Gross |
1st Floor
Available spaces range from 490 to 3,000 square feet, with build-to-suit space available. Both spaces can be purchased together. Please contact the listing agent with any questions.
- Listed rate may not include certain utilities, building services and property expenses
- Partially Built-Out as a Restaurant or Café Space
- Fits 2 - 24 People
Rent Types
The rent amount and type that the tenant (lessee) will be responsible to pay to the landlord (lessor) throughout the lease term is negotiated prior to both parties signing a lease agreement. The rent type will vary depending upon the services provided. For example, triple net rents are typically lower than full service rents due to additional expenses the tenant is required to pay in addition to the base rent. Contact the listing broker for a full understanding of any associated costs or additional expenses for each rent type.
1. Full Service: A rental rate that includes normal building standard services as provided by the landlord within a base year rental.
2. Double Net (NN): Tenant pays for only two of the building expenses; the landlord and tenant determine the specific expenses prior to signing the lease agreement.
3. Triple Net (NNN): A lease in which the tenant is responsible for all expenses associated with their proportional share of occupancy of the building.
4. Modified Gross: Modified Gross is a general type of lease rate where typically the tenant will be responsible for their proportional share of one or more of the expenses. The landlord will pay the remaining expenses. See the below list of common Modified Gross rental rate structures: 4. Plus All Utilities: A type of Modified Gross Lease where the tenant is responsible for their proportional share of utilities in addition to the rent. 4. Plus Cleaning: A type of Modified Gross Lease where the tenant is responsible for their proportional share of cleaning in addition to the rent. 4. Plus Electric: A type of Modified Gross Lease where the tenant is responsible for their proportional share of the electrical cost in addition to the rent. 4. Plus Electric & Cleaning: A type of Modified Gross Lease where the tenant is responsible for their proportional share of the electrical and cleaning cost in addition to the rent. 4. Plus Utilities and Char: A type of Modified Gross Lease where the tenant is responsible for their proportional share of the utilities and cleaning cost in addition to the rent. 4. Industrial Gross: A type of Modified Gross lease where the tenant pays one or more of the expenses in addition to the rent. The landlord and tenant determine these prior to signing the lease agreement.
5. Tenant Electric: The landlord pays for all services and the tenant is responsible for their usage of lights and electrical outlets in the space they occupy.
6. Negotiable or Upon Request: Used when the leasing contact does not provide the rent or service type.
7. TBD: To be determined; used for buildings for which no rent or service type is known, commonly utilized when the buildings are not yet built.
Matterport 3D Tour
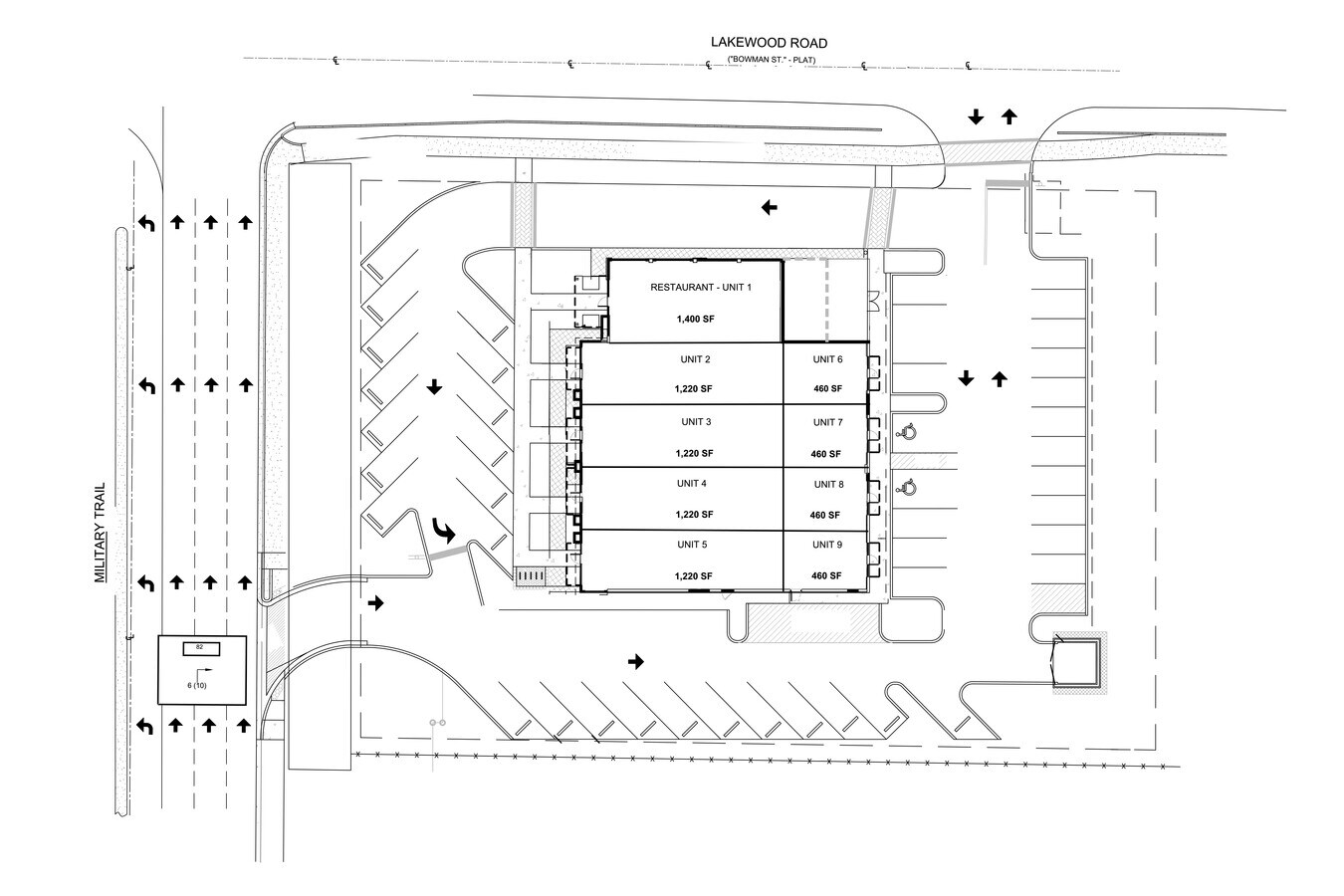
Site Plan
Property Facts
| Total Space Available | 2,400 SF | Gross Leasable Area | 8,175 SF |
| Min. Divisible | 1,200 SF | Year Built/Renovated | 1975/2026 |
| Property Type | Retail | Parking Ratio | 5.75/1,000 SF |
| Property Subtype | Storefront Retail/Office |
| Total Space Available | 2,400 SF |
| Min. Divisible | 1,200 SF |
| Property Type | Retail |
| Property Subtype | Storefront Retail/Office |
| Gross Leasable Area | 8,175 SF |
| Year Built/Renovated | 1975/2026 |
| Parking Ratio | 5.75/1,000 SF |
About the Property
3772 S Military Trail presents an uncompromising retail leasing opportunity, offering flexible spaces in a newly redeveloped shopping center at the heart of Lake Worth, Florida. The building, spanning a total of 8,175 square feet, offers nine available suites ranging from 490 to 3,000 square feet in vanilla box condition, ready for build-to-suit customization. Five spaces enjoy direct visibility to Military Trail, with smaller, approximately 490-square-foot units at the rear and a 1,400-square-foot restaurant end cap. The property offers fantastic curb appeal for tenants, boasting full glass storefronts with covered entryways and a modern façade with wood accents. Situated on 0.91 acres, the center includes multiple convenient access points and abundant on-site parking, ensuring simplified access options for customers. 3772 S Military Trail provides exceptional visibility for businesses, with signage that can be seen by more than 40,000 passing vehicles each day. The location also sits just off the intersection with Lake Worth Road, the main artery leading to Lake Worth Beach, with nearby connections from Interstate 95 and the Florida Turnpike. The beach is just 5 miles away, and Palm Beach International Airport is just 5.2 miles away, providing a steady stream of customers to the area. The surrounding area also presents a thriving retail hub that attracts customers with industry-leading brands such as The Home Depot, Sherwin-Williams, AutoZone, Pep Boys Auto Service, Dollar Tree, KFC, IHOP, Dairy Queen, and more. Businesses at 3772 S Military Trail will be able to tap into a dependable customer base when looking within just 3 miles of the property. More than 171,000 residents call the area home, and the average household income for the region exceeds $69,000. These locals are avid shoppers, providing strong support for retail ventures with annual consumer spending that surpassed $1.6 billion during 2024. 3772 S Military Trail provides an unmatched opportunity for growing retail businesses to establish themselves in Palm Beach County, offering a variety of newly redeveloped shell spaces with a premier corner location in Lake Worth. These top-tier spaces will not last long. Contact the Catayu Properties team today to schedule a tour and find the perfect space.
- Restaurant
- Air Conditioning
Demographics
Demographics
Nearby Major Retailers
Presented by
Catayu Properties
3772 S Military Trl
Hmm, there seems to have been an error sending your message. Please try again.
Thanks! Your message was sent.



