Enter your email to login or create a free account
This feature is unavailable at the moment.
We apologize, but the feature you are trying to access is currently unavailable. We are aware of this issue and our team is working hard to resolve the matter.
Please check back in a few minutes. We apologize for the inconvenience.
- LoopNet Team
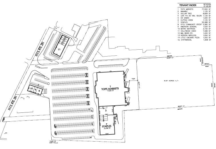
3832-3940 State Route 281
Cortland, NY 13045
Tops Plaza Cortland Station · Property For Lease

Highlights
- Grocery anchored shopping center with new lease with Harbor Freight.
Property Facts
| Center Type | Community Center | Gross Leasable Area | 133,846 SF |
| Parking | 1873 Spaces | Total Land Area | 17.53 AC |
| Stores | 15 | Year Built | 1996 |
| Center Properties | 4 | Cross Streets | SEC Rte 281 & Rte 222 |
| Frontage | Route 281 |
| Center Type | Community Center |
| Parking | 1873 Spaces |
| Stores | 15 |
| Center Properties | 4 |
| Frontage | Route 281 |
| Gross Leasable Area | 133,846 SF |
| Total Land Area | 17.53 AC |
| Year Built | 1996 |
| Cross Streets | SEC Rte 281 & Rte 222 |
About the Property
Attractive plaza with great tenant mix. Join Tops, Metro Mattress, Americu, Crickett, Little Caesars, Cost Cutters and Smoker's Choice, This center is on a dedicated traffic signal with access to a secondary street. TOPS is doing very well. This center is close to SUNY Cortland, Route 81, and the City of Cortland population center.
Links
Listing ID: 12523331
Date on Market: 5/10/2018
Last Updated:
Address: 3832-3940 State Route 281, Cortland, NY 13045
The Property at 3832-3940 State Route 281, Cortland, NY 13045 is no longer being advertised on LoopNet.com. Contact the broker for information on availability.
PROPERTIES IN NEARBY NEIGHBORHOODS
NEARBY LISTINGS
- 44 River St, Cortland NY
- 110 Main St, Cortland NY
- 1 Main St, Cortland NY
- 839 Rt-13, Cortland NY
- 77 Main St, Cortland NY
- 11 Clinton Ave, Cortland NY
- 879 New York 13, Cortland NY
- 3654-3656 Rt 281, Cortland NY
- 3901 Us-11, Cortland NY
- 6-14 N Franklin St, Cortland NY
- 3246 S Cortland Virgil Rd, Cortland NY
