Log In/Sign Up
Your email has been sent.
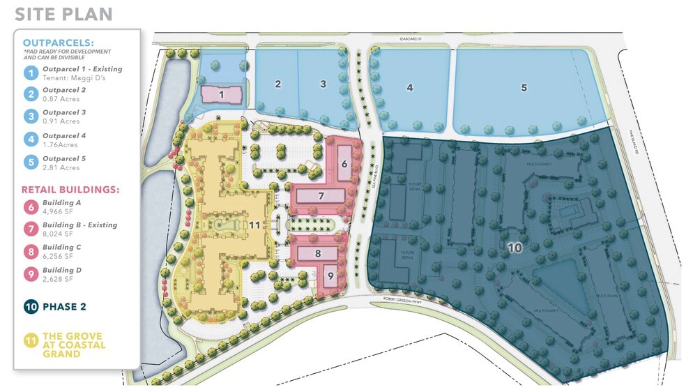
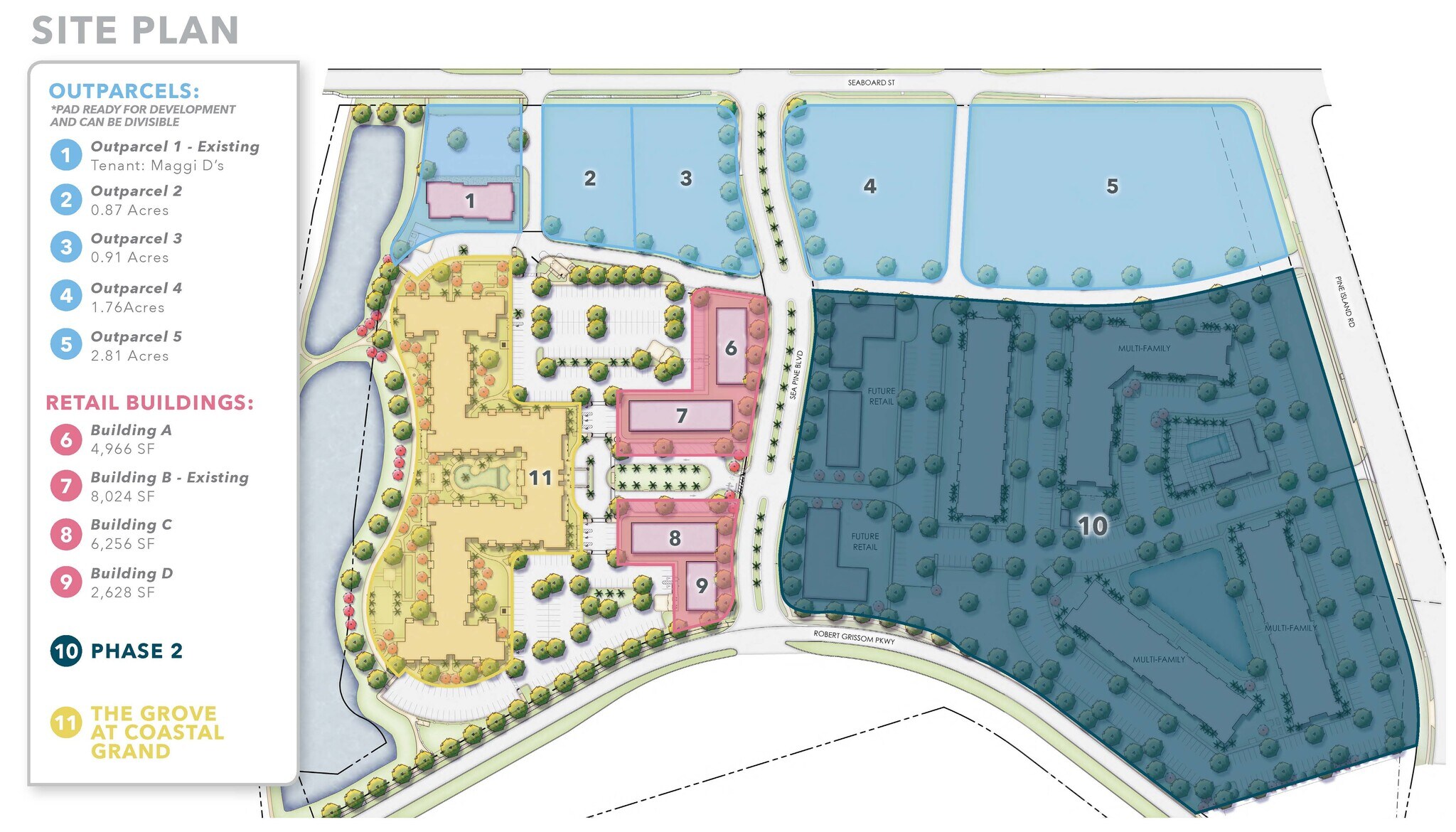
387 Seaboard St
Myrtle Beach, SC 29577
Pine Island Point - Outparcel 3 · Land For Lease


Property Facts
| Total Space Available | 0.91 AC | Property Subtype | Commercial |
| Property Type | Land | Proposed Use | Commercial |
| Total Space Available | 0.91 AC |
| Property Type | Land |
| Property Subtype | Commercial |
| Proposed Use | Commercial |
1 of 4
Videos
Matterport 3D Exterior
Matterport 3D Tour
Photos
Street View
Street
Map
