Log In/Sign Up
Your email has been sent.
Investment Highlights
- LIC Mixed Use Development Site with Approved Plans for Sale
- M1-2/R5B/LIC zoning allows for residential, industrial or commercial uses
- A perfect project for a live-work end user, or any developer looking to capitalize on the LIC development boom
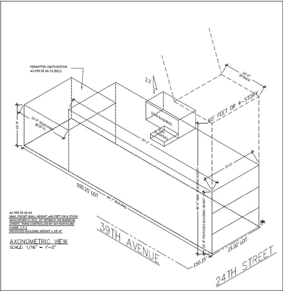
- Proposed 6,900 sqft Three Story Building with 700 sqft Cellar - Opportunity Zone Location
- The subject property is being sold with approved plans in hand, and currently has all electric, gas, water and sewer services connected.
Executive Summary
Kaplon-Belo Real Estate LLC is pleased to present 39-17 24th Street, a prime mixed use redevelopment site located in the Dutch Kills neighborhood of Long Island City. The subject property is being sold with approved plans in hand, and currently has all electric, gas, water and sewer services connected. The M1-2/R5B/LIC zoning allows for residential, industrial or commercial uses. A perfect project for a live-work end user, or any developer looking to capitalize on the LIC development boom. For additional information, please contact Kaplon-Belo.
Property Facts
Utilities
- Heating - Gas
Walk Score®
Walker's Paradise (96)
Transit Score®
Rider's Paradise (100)
Bike Score®
Very Bikeable (87)
Property Taxes
| Parcel Number | 00395-0015 | Improvements Assessment | $202,680 |
| Land Assessment | $67,500 | Total Assessment | $270,180 |
Property Taxes
Parcel Number
00395-0015
Land Assessment
$67,500
Improvements Assessment
$202,680
Total Assessment
$270,180
1 of 8
Videos
Matterport 3D Exterior
Matterport 3D Tour
Photos
Street View
Street
Map
Presented by
39-17 24th St
Already a member? Log In
Hmm, there seems to have been an error sending your message. Please try again.
Thanks! Your message was sent.
Your message has been sent!
Activate your LoopNet account now to track properties, get real-time alerts, save time on future inquiries, and more.




