Your email has been sent.
3925 56th Ave SE 3,996 - 8,710 SF of Industrial Space Available in Calgary, AB T2C 2E4


Highlights
- Excellent access to Deerfoot, Glenmore & Barlow Trails
- Ample on-site parking with rear double-row car park
Features
All Available Spaces(2)
Display Rental Rate as
- Space
- Size
- Term
- Rental Rate
- Space Use
- Build-Out
- Available
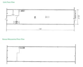
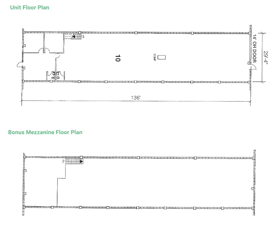
Positioned in Calgary’s thriving southeast industrial corridor, 3925 56 Avenue SE, Bay 10 offers a highly functional and well-located industrial bay ideal for a range of light industrial users. This ±3,996 SF unit features a clean and modern office build-out at the front, including an open reception area, two private offices, and a washroom, creating a professional environment for administrative operations. The warehouse component spans approximately ±3,347 SF and boasts bright interiors with white concrete block demising walls, 20-foot clear ceiling height, and a drive-in loading door for efficient logistics. A bonus ±649 SF mezzanine adds valuable storage or workspace flexibility. The site is equipped with 200 amps of power (to be verified), supporting a variety of operational needs.
- Includes 649 SF of dedicated office space
- Reception Area
- Washroom
- 1 Drive Bay
- Easily accessible
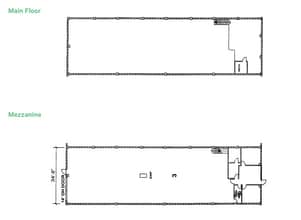
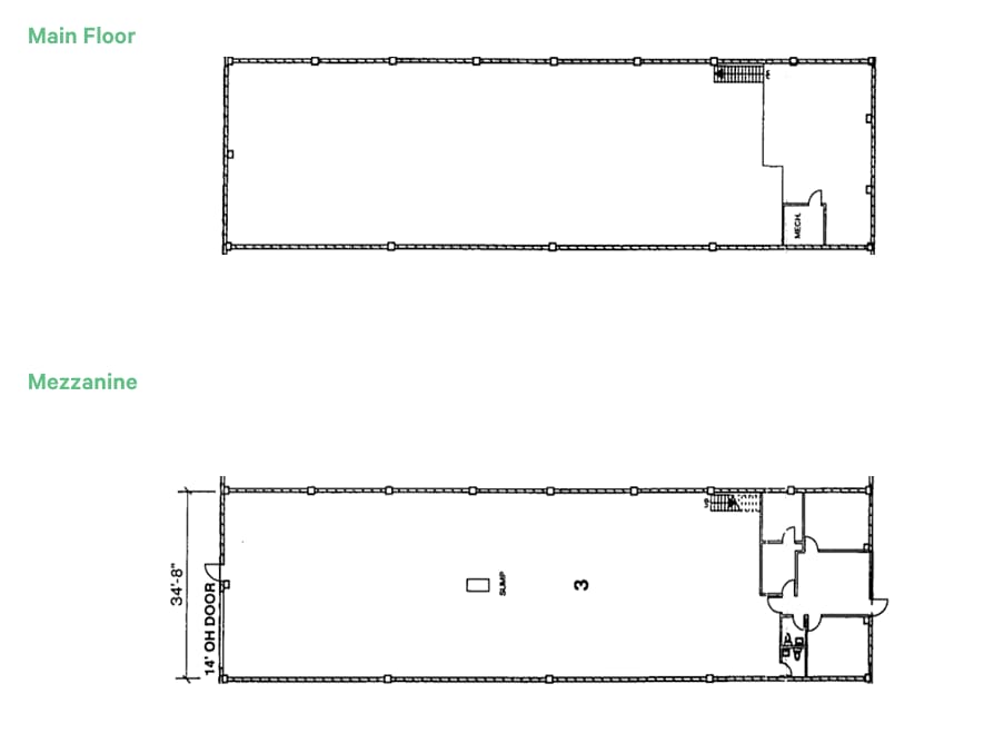
Industrial bay equipped with 200 Amps of power. Office buildout includes reception, two private offices, and an employee breakout room. Bonus ±600 SF mezzanine. Sump in warehouse. Ample parking with additional carpark behind the unit. Connectivity to Southeast arterial routes, including Deerfoot Trail, 52nd Street and Glenmore Trail.
- Includes 600 SF of dedicated office space
- 1 Drive Bay
| Space | Size | Term | Rental Rate | Space Use | Build-Out | Available |
| 1st Floor - Bay 10 | 3,996 SF | Negotiable | Upon Request Upon Request Upon Request Upon Request | Industrial | Full Build-Out | 60 Days |
| 1st Floor - Bay 3 | 4,714 SF | Negotiable | Upon Request Upon Request Upon Request Upon Request | Industrial | Full Build-Out | Now |
1st Floor - Bay 10
| Size |
| 3,996 SF |
| Term |
| Negotiable |
| Rental Rate |
| Upon Request Upon Request Upon Request Upon Request |
| Space Use |
| Industrial |
| Build-Out |
| Full Build-Out |
| Available |
| 60 Days |
1st Floor - Bay 3
| Size |
| 4,714 SF |
| Term |
| Negotiable |
| Rental Rate |
| Upon Request Upon Request Upon Request Upon Request |
| Space Use |
| Industrial |
| Build-Out |
| Full Build-Out |
| Available |
| Now |
1st Floor - Bay 10
| Size | 3,996 SF |
| Term | Negotiable |
| Rental Rate | Upon Request |
| Space Use | Industrial |
| Build-Out | Full Build-Out |
| Available | 60 Days |
Positioned in Calgary’s thriving southeast industrial corridor, 3925 56 Avenue SE, Bay 10 offers a highly functional and well-located industrial bay ideal for a range of light industrial users. This ±3,996 SF unit features a clean and modern office build-out at the front, including an open reception area, two private offices, and a washroom, creating a professional environment for administrative operations. The warehouse component spans approximately ±3,347 SF and boasts bright interiors with white concrete block demising walls, 20-foot clear ceiling height, and a drive-in loading door for efficient logistics. A bonus ±649 SF mezzanine adds valuable storage or workspace flexibility. The site is equipped with 200 amps of power (to be verified), supporting a variety of operational needs.
- Includes 649 SF of dedicated office space
- 1 Drive Bay
- Reception Area
- Easily accessible
- Washroom
1st Floor - Bay 3
| Size | 4,714 SF |
| Term | Negotiable |
| Rental Rate | Upon Request |
| Space Use | Industrial |
| Build-Out | Full Build-Out |
| Available | Now |
Industrial bay equipped with 200 Amps of power. Office buildout includes reception, two private offices, and an employee breakout room. Bonus ±600 SF mezzanine. Sump in warehouse. Ample parking with additional carpark behind the unit. Connectivity to Southeast arterial routes, including Deerfoot Trail, 52nd Street and Glenmore Trail.
- Includes 600 SF of dedicated office space
- 1 Drive Bay
Property Overview
Strategically located near major arterial routes such as Deerfoot Trail, Glenmore Trail, 52nd Street SE, and Barlow Trail SE, the property ensures seamless connectivity across Calgary and beyond. Ample on-site parking, including a double-row car park at the rear, enhances convenience for staff and visitors.
Service Facility Facts
Select Tenants
- Floor
- Tenant Name
- Industry
- 1st
- ASAP Concrete Cutting & Coring
- Construction
- 1st
- Calgary Aluminum Custom Fabrication Ltd.
- Manufacturing
- 1st
- Dependable Maintenance Ltd
- Construction
- 1st
- Icon Agency
- Retailer
- 1st
- McIntyre Crane & Rigging Ltd
- Construction
- 1st
- Newage Insulation
- -
Presented by
3925 56th Ave SE
Hmm, there seems to have been an error sending your message. Please try again.
Thanks! Your message was sent.





