Log In/Sign Up
Your email has been sent.
3990 Sam Wilson Road 3990 Sam Wilson Rd 23,153 SF Industrial Building Charlotte, NC 28214 $6,500,000 ($280.74/SF)



Investment Highlights
- 10 Parking Spaces
- Entire building is heated and cooled
- Excellent access to I-85 and I-485
Executive Summary
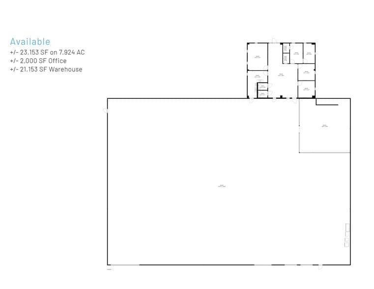
+/- 23,153 SF on 7.924 AC Available for Sale
+/- 2,000 SF Office
+/- 21,153 SF Warehouse
An excellent opportunity to purchase or lease an industrial building situated on +/- 7.94 AC. The property features four private offices, a breakroom, a conference room, an open bullpen, and warehouse space. Located along the proposed LYNX Silver Line and just steps from the future Sam Wilson station, this site offers unique amenities and a prime location. It’s conveniently positioned only 1.3 miles from I-485, 2.3 miles from I-85, and 3 miles from Charlotte Douglas International Airport, making it a highly accessible acquisition opportunity along Wilkinson Blvd.
Sale Price $6,500,000
Lease Rate $20/SF NNN fees at $1.17/SF
+/- 2,000 SF Office
+/- 21,153 SF Warehouse
An excellent opportunity to purchase or lease an industrial building situated on +/- 7.94 AC. The property features four private offices, a breakroom, a conference room, an open bullpen, and warehouse space. Located along the proposed LYNX Silver Line and just steps from the future Sam Wilson station, this site offers unique amenities and a prime location. It’s conveniently positioned only 1.3 miles from I-485, 2.3 miles from I-85, and 3 miles from Charlotte Douglas International Airport, making it a highly accessible acquisition opportunity along Wilkinson Blvd.
Sale Price $6,500,000
Lease Rate $20/SF NNN fees at $1.17/SF
Property Facts
| Price | $6,500,000 | No. Stories | 1 |
| Price Per SF | $280.74 | Year Built | 1989 |
| Sale Type | Investment or Owner User | Tenancy | Single |
| Property Type | Industrial | Parking Ratio | 0.73/1,000 SF |
| Property Subtype | Warehouse | Clear Ceiling Height | 17’9” |
| Building Class | B | No. Dock-High Doors/Loading | 2 |
| Lot Size | 7.92 AC | No. Drive In / Grade-Level Doors | 2 |
| Rentable Building Area | 23,153 SF | ||
| Zoning | I-1 CD - I-1 Industrial CD | ||
| Price | $6,500,000 |
| Price Per SF | $280.74 |
| Sale Type | Investment or Owner User |
| Property Type | Industrial |
| Property Subtype | Warehouse |
| Building Class | B |
| Lot Size | 7.92 AC |
| Rentable Building Area | 23,153 SF |
| No. Stories | 1 |
| Year Built | 1989 |
| Tenancy | Single |
| Parking Ratio | 0.73/1,000 SF |
| Clear Ceiling Height | 17’9” |
| No. Dock-High Doors/Loading | 2 |
| No. Drive In / Grade-Level Doors | 2 |
| Zoning | I-1 CD - I-1 Industrial CD |
Amenities
- Air Conditioning
Space Availability
- Space
- Size
- Space Use
- Condition
- Available
+/- 23,153 SF on 7.924 AC Available for Sale +/- 2,000 SF Office +/- 21,153 SF Warehouse
| Space | Size | Space Use | Condition | Available |
| 1st Floor | 21,153 SF | Industrial | - | Now |
1st Floor
| Size |
| 21,153 SF |
| Space Use |
| Industrial |
| Condition |
| - |
| Available |
| Now |
1 of 1
Videos
Matterport 3D Exterior
Matterport 3D Tour
Photos
Street View
Street
Map
1st Floor
| Size | 21,153 SF |
| Space Use | Industrial |
| Condition | - |
| Available | Now |
+/- 23,153 SF on 7.924 AC Available for Sale +/- 2,000 SF Office +/- 21,153 SF Warehouse
1 1
Property Taxes
| Parcel Number | 113-046-08 | Improvements Assessment | $1,138,300 |
| Land Assessment | $1,697,500 | Total Assessment | $2,835,800 |
Property Taxes
Parcel Number
113-046-08
Land Assessment
$1,697,500
Improvements Assessment
$1,138,300
Total Assessment
$2,835,800
1 of 23
Videos
Matterport 3D Exterior
Matterport 3D Tour
Photos
Street View
Street
Map
1 of 1
Presented by
3990 Sam Wilson Road | 3990 Sam Wilson Rd
Already a member? Log In
Hmm, there seems to have been an error sending your message. Please try again.
Thanks! Your message was sent.
Your message has been sent!
Activate your LoopNet account now to track properties, get real-time alerts, save time on future inquiries, and more.


