Enter your email to login or create a free account
This feature is unavailable at the moment.
We apologize, but the feature you are trying to access is currently unavailable. We are aware of this issue and our team is working hard to resolve the matter.
Please check back in a few minutes. We apologize for the inconvenience.
- LoopNet Team
4-6 South Para
Bawtry DN10 6JH
Saddlers House · Property For Lease

Highlights
- Excellent location
- Well presented
- £425 per month
- £495 per month
- Wifi available
- Beautiful market town
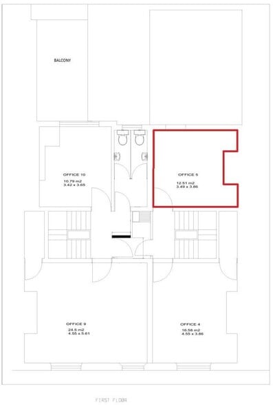
- Office 5 - 12.51 m2 (135 ft2) approx.
- Office 8 - 18.45 m2 (199 ft2) approx.
- Rent includes utilities
- Limited parking available*
Property Overview
A variety of office suites available within this attractive Grade II listed building, located in the affluent market town of Bawtry. The offices are very well presented and subject to the availability in the schedule below. There are shared kitchen and WC facilities on the ground and first floor, and rent includes utilities and limited parking on site, street and public parking available nearby. The property is in a good location in the popular and highly sought after location in Bawtry. The property is situated on the A638 which links Doncaster and Bawtry to the A1 (m) at the Blyth roundabout.
- Courtyard
- Energy Performance Rating - D
- Storage Space
Property Facts
Attachments
| Marketing Brochure/Flyer |
Links
Listing ID: 34773416
Date on Market: 2/10/2025
Last Updated:
Address: 4-6 South Para, Bawtry DN10 6JH
The Office Property at 4-6 South Para, Bawtry, DN10 6JH is no longer being advertised on LoopNet.com. Contact the broker for information on availability.
OFFICE PROPERTIES IN NEARBY NEIGHBORHOODS
- Bassetlaw Commercial Real Estate Properties
- Bircotes Commercial Real Estate Properties
- Sutton cum Lound Commercial Real Estate Properties
- Clarborough Commercial Real Estate Properties
- Misterton Nottinghamshire Commercial Real Estate Properties
- Lound Nottinghamshire Commercial Real Estate Properties
- Blyth Nottinghamshire Commercial Real Estate Properties
- Tickhill Commercial Real Estate Properties
NEARBY LISTINGS
- Panattoni 770, Doncaster
- Lincoln Green Way, Doncaster
- Scrooby Road, Doncaster
- Station Rd, Bawtry
- Station Rd, Doncaster
- Bawtry Rd, Doncaster
- First Ave, Doncaster
- Plumtree Rd, Doncaster
- Bawtry Rd, Tickhill
- First Av, Doncaster
- Back End Lane, Doncaster
- A1a-A1b Snape Ln, Doncaster
- Spital Road, Worksop
- Panattoni 770, Doncaster
- Springs Rd, Doncaster
