Log In/Sign Up
Your email has been sent.
INVESTMENT HIGHLIGHTS
- Property features 200 amp/240 volt, 3 phase, 3 wire with three drive-in doors.
- Loading docks possible.
EXECUTIVE SUMMARY
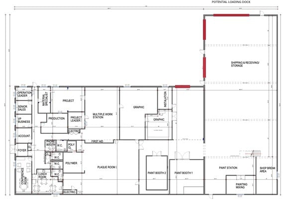
15,000 SF flex property available for sale and lease. Property includes 3,500 SF of office space, renovated in 2022.
TAXES & OPERATING EXPENSES (ACTUAL - 2025) Click Here to Access |
ANNUAL | ANNUAL PER SF |
|---|---|---|
| Taxes |
-
|
-
|
| Operating Expenses |
-
|
-
|
| Total Expenses |
$99,999
|
$9.99
|
TAXES & OPERATING EXPENSES (ACTUAL - 2025) Click Here to Access
| Taxes | |
|---|---|
| Annual | - |
| Annual Per SF | - |
| Operating Expenses | |
|---|---|
| Annual | - |
| Annual Per SF | - |
| Total Expenses | |
|---|---|
| Annual | $99,999 |
| Annual Per SF | $9.99 |
PROPERTY FACTS
| Price | $2,500,000 | Rentable Building Area | 15,000 SF |
| Price Per SF | $166.67 | No. Stories | 1 |
| Sale Type | Owner User | Year Built | 1900 |
| Property Type | Industrial | Tenancy | Single |
| Property Subtype | Warehouse | Parking Ratio | 2.67/1,000 SF |
| Building Class | C | No. Drive In / Grade-Level Doors | 3 |
| Lot Size | 1.37 AC | ||
| Zoning | I - Industrial | ||
| Price | $2,500,000 |
| Price Per SF | $166.67 |
| Sale Type | Owner User |
| Property Type | Industrial |
| Property Subtype | Warehouse |
| Building Class | C |
| Lot Size | 1.37 AC |
| Rentable Building Area | 15,000 SF |
| No. Stories | 1 |
| Year Built | 1900 |
| Tenancy | Single |
| Parking Ratio | 2.67/1,000 SF |
| No. Drive In / Grade-Level Doors | 3 |
| Zoning | I - Industrial |
AMENITIES
- Air Conditioning
UTILITIES
- Lighting
- Gas
- Water
- Sewer
- Heating
SPACE AVAILABILITY
- SPACE
- SIZE
- SPACE USE
- CONDITION
- AVAILABLE
All utilities, extensive power and compressed lines throughout.
| Space | Size | Space Use | Condition | Available |
| 1st Floor | 15,000 SF | Flex | Full Build-Out | 30 Days |
1st Floor
| Size |
| 15,000 SF |
| Space Use |
| Flex |
| Condition |
| Full Build-Out |
| Available |
| 30 Days |
1 of 1
VIDEOS
MATTERPORT 3D EXTERIOR
MATTERPORT 3D TOUR
PHOTOS
STREET VIEW
STREET
MAP
1st Floor
| Size | 15,000 SF |
| Space Use | Flex |
| Condition | Full Build-Out |
| Available | 30 Days |
All utilities, extensive power and compressed lines throughout.
PROPERTY TAXES
| Parcel Number | MEDW-000033-000000-000008 | Improvements Assessment | $861,300 |
| Land Assessment | $334,800 | Total Assessment | $1,196,100 |
PROPERTY TAXES
Parcel Number
MEDW-000033-000000-000008
Land Assessment
$334,800
Improvements Assessment
$861,300
Total Assessment
$1,196,100
1 of 8
VIDEOS
MATTERPORT 3D EXTERIOR
MATTERPORT 3D TOUR
PHOTOS
STREET VIEW
STREET
MAP
Presented by
4 Industrial Park Rd
Already a member? Log In
Hmm, there seems to have been an error sending your message. Please try again.
Thanks! Your message was sent.






