Log In/Sign Up
Your email has been sent.
4 Trowbridge Dr 7.35 Acres of Commercial Land Offered at $475,000 in Bethel, CT 06801



Investment Highlights
- 7.35 acres.
Executive Summary
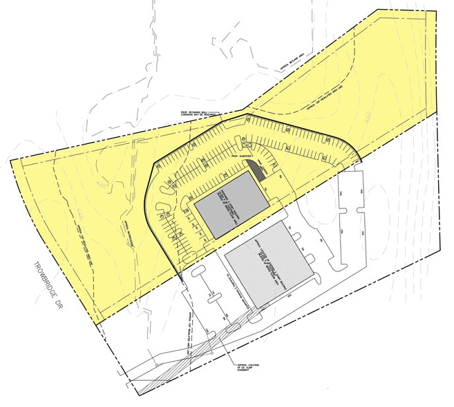
7.35 acres with feasibility study for two-story 30,600 sq. ft. building with +/- 153-car parking. Site ideal for
warehouse, assembly, manufacturing, lab, or office.
warehouse, assembly, manufacturing, lab, or office.
Property Facts
| Price | $475,000 | Property Subtype | Commercial |
| Sale Type | Investment | Proposed Use | |
| No. Lots | 1 | Total Lot Size | 7.35 AC |
| Property Type | Land | ||
| Zoning | IP - Industrial | ||
| Price | $475,000 |
| Sale Type | Investment |
| No. Lots | 1 |
| Property Type | Land |
| Property Subtype | Commercial |
| Proposed Use | |
| Total Lot Size | 7.35 AC |
| Zoning | IP - Industrial |
1 Lot Available
Lot 4
| Price | $475,000 | Lot Size | 7.35 AC |
| Price Per AC | $64,625.85 |
| Price | $475,000 |
| Price Per AC | $64,625.85 |
| Lot Size | 7.35 AC |
7.35 acres with feasibility study for two-story 30,600 sq. ft. building with +/- 153-car parking. Site ideal for warehouse, assembly, manufacturing, lab, or office.
1 1
Somewhat walkable
20/100
Exceptionally drivable
90/100
Limited public transit
20/100
Somewhat bikeable
30/100
1 of 4
Videos
Matterport 3D Exterior
Matterport 3D Tour
Photos
Street View
Street
Map
1 of 1
Presented by
4 Trowbridge Dr
Already a member? Log In
Hmm, there seems to have been an error sending your message. Please try again.
Thanks! Your message was sent.
