Your email has been sent.
Highlights
- Walkable access to a wide variety of nearby restaurants and daily-needs retail, creating steady activity throughout the area
- Direct access to extensive walking and biking trail networks connecting to parks, St. Mary’s, and Mayo Clinic
- Tennis club and public park located directly across the street, enhancing neighborhood appeal for employees and visitors
- Located within a high-traffic corridor offering exceptional visibility for office or retail users
- Positioned just 10 blocks from Mayo Clinic and 6 blocks from St. Mary’s Hospital, ideal for medical-adjacent businesses
All Available Spaces(2)
Display Rental Rate as
- Space
- Size
- Term
- Rental Rate
- Space Use
- Build-Out
- Available
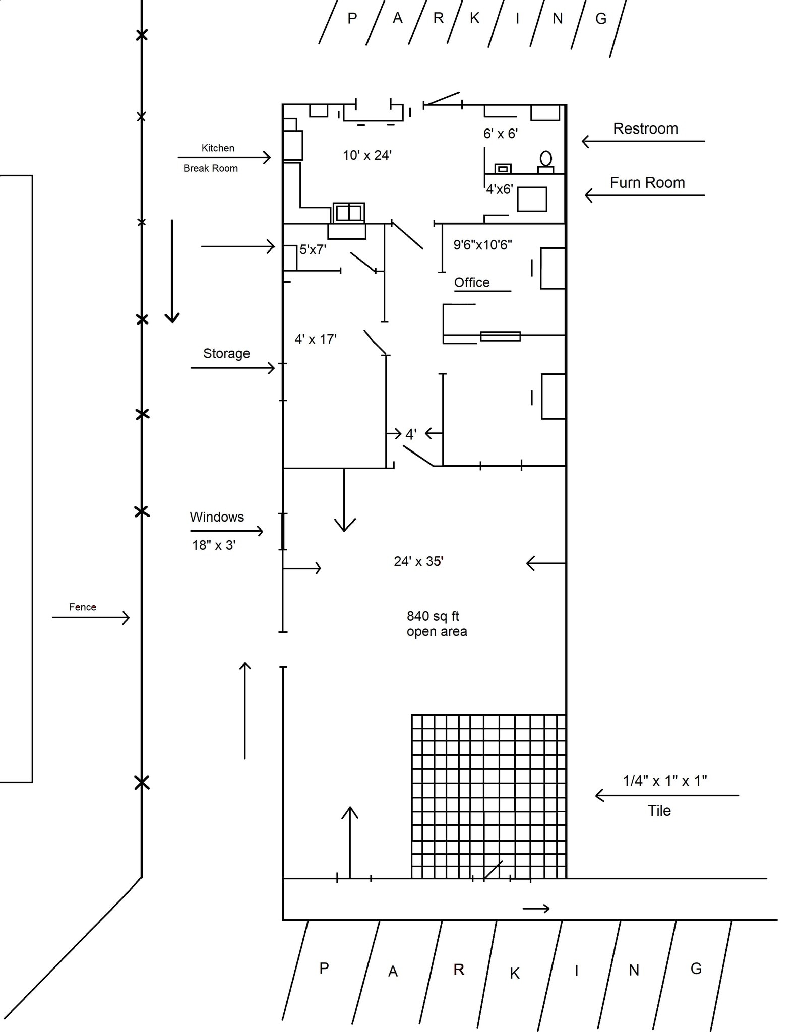
This space has 1/2 the space as open, the other 1/2 has 2 offices, a storage area that could be used as either another office or conference room along with a locked storage area, bathroom and a kitchen/breakroom. All on the first floor and ready to be used.
- Listed rate may not include certain utilities, building services and property expenses
- Mostly Open Floor Plan Layout
- 2 Private Offices
- Private Restrooms
- Emergency Lighting
- Open-Plan
- open first floor space
- Functional layouts
- Partially Built-Out as Standard Retail Space
- Fits 4 - 13 People
- Central Air Conditioning
- Drop Ceilings
- After Hours HVAC Available
- Smoke Detector
- Ample parking space
This is a first floor mostly open office/retail space. It is all open at the front with 4 individual offices, private bathrooms, large storage area and break room. Property has off street parking to go along with the parking lot. Security camera's on outside parking lot with bright lighting at night. Located near several restaurants and amenities.
- Listed rate may not include certain utilities, building services and property expenses
- Fits 1 - 25 People
- Central Air and Heating
- Natural Light
- Emergency Lighting
- Ample parking space
- Convenient access to surrounding amenities
- Mostly Open Floor Plan Layout
- 4 Private Offices
- Private Restrooms
- After Hours HVAC Available
- Open-Plan
- Functional layouts
| Space | Size | Term | Rental Rate | Space Use | Build-Out | Available |
| 1st Floor, Ste 101 | 1,600 SF | 1-5 Years | $27.00 /SF/YR $2.25 /SF/MO $43,200 /YR $3,600 /MO | Office/Retail | Partial Build-Out | Now |
| 1st Floor, Ste 102 | 2,575 SF | 1-5 Years | $27.00 /SF/YR $2.25 /SF/MO $69,525 /YR $5,794 /MO | Office | - | Now |
1st Floor, Ste 101
| Size |
| 1,600 SF |
| Term |
| 1-5 Years |
| Rental Rate |
| $27.00 /SF/YR $2.25 /SF/MO $43,200 /YR $3,600 /MO |
| Space Use |
| Office/Retail |
| Build-Out |
| Partial Build-Out |
| Available |
| Now |
1st Floor, Ste 102
| Size |
| 2,575 SF |
| Term |
| 1-5 Years |
| Rental Rate |
| $27.00 /SF/YR $2.25 /SF/MO $69,525 /YR $5,794 /MO |
| Space Use |
| Office |
| Build-Out |
| - |
| Available |
| Now |
1st Floor, Ste 101
| Size | 1,600 SF |
| Term | 1-5 Years |
| Rental Rate | $27.00 /SF/YR |
| Space Use | Office/Retail |
| Build-Out | Partial Build-Out |
| Available | Now |
This space has 1/2 the space as open, the other 1/2 has 2 offices, a storage area that could be used as either another office or conference room along with a locked storage area, bathroom and a kitchen/breakroom. All on the first floor and ready to be used.
- Listed rate may not include certain utilities, building services and property expenses
- Partially Built-Out as Standard Retail Space
- Mostly Open Floor Plan Layout
- Fits 4 - 13 People
- 2 Private Offices
- Central Air Conditioning
- Private Restrooms
- Drop Ceilings
- Emergency Lighting
- After Hours HVAC Available
- Open-Plan
- Smoke Detector
- open first floor space
- Ample parking space
- Functional layouts
1st Floor, Ste 102
| Size | 2,575 SF |
| Term | 1-5 Years |
| Rental Rate | $27.00 /SF/YR |
| Space Use | Office |
| Build-Out | - |
| Available | Now |
This is a first floor mostly open office/retail space. It is all open at the front with 4 individual offices, private bathrooms, large storage area and break room. Property has off street parking to go along with the parking lot. Security camera's on outside parking lot with bright lighting at night. Located near several restaurants and amenities.
- Listed rate may not include certain utilities, building services and property expenses
- Mostly Open Floor Plan Layout
- Fits 1 - 25 People
- 4 Private Offices
- Central Air and Heating
- Private Restrooms
- Natural Light
- After Hours HVAC Available
- Emergency Lighting
- Open-Plan
- Ample parking space
- Functional layouts
- Convenient access to surrounding amenities
Property Overview
This property is located near several motels, a shopping center, grocery store and several eating establishments. It is within walking distance to St. Mary's and connects to bike/walking path. A nice park is right across the street and located next to Cascade Creek. There is front door and off street parking. Located by Olive Garden and MinnWest bank on the corner of 16th Avenue and 4th Street NW Rochester Minnesota
- Bus Line
- Signage
- Central Heating
- Recessed Lighting
- Monument Signage
- Air Conditioning
Property Facts
Presented by
Prow Plaza | 401 16th Ave NW
Hmm, there seems to have been an error sending your message. Please try again.
Thanks! Your message was sent.






