Your email has been sent.
Kwik Klean Kar Wash 401 Peyton Pl 0.69 Acres of Commercial Land for Lease in White Bluff, TN 37187



Highlights
- 10000 Traffic Count
- Flex space
- Big Box stores opening up within a half mi
LOT Available
Display Rental Rate as
| Rental Rate |
|
Lot Size | 0.69 AC |
| Lease Term | Negotiable |
| Rental Rate | |
| Lease Term | Negotiable |
| Lot Size | 0.69 AC |
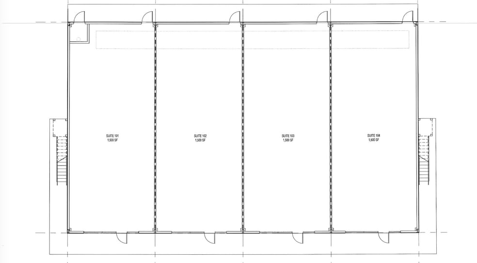
5 Bay Car wash sitting on approx 3/4 acre with 140ft road frontage on Hwy 70. Looking to build a 6,000 sq ft flex space facility divided into 4 - 1500sq ft spaces with perhaps 12 ft overhead door for warehouse type or standard entrance for retail with branded overhang signage. Build to suit or land lease with or without current building. Looking to Demo carwash in first quarter 2026 with new construction.
Property Overview
Location & Market Overview: Strategic access: The property sits on U.S. Route 70, the main east–west arterial through White Bluff, linking directly to the greater Nashville metro area to the east and the county seat of Dickson to the west. Growth trajectory: White Bluff continues to grow — community population has ramped up, household incomes remain competitive, and the town retains tight-knit small-town character while drawing interest from commuters and investors alike. Ideal balance of rural lifestyle & city proximity: Residents enjoy a slower pace, small-town living, yet are just a short ~30-minute drive from the amenities and workforce of Nashville. Because of this dynamic, properties on Hwy 70 in White Bluff attract attention from business owners looking for a “best-of-both-worlds” location — local demand plus regional spillover. For pricing, zoning verification, traffic counts, or development consultation, please inquire directly. Prime opportunity for a business owner, investor, or developer seeking a high-visibility commercial footprint on one of Middle Tennessee’s most traveled east-west corridors.
Property Facts
| Total Space Available | 0.69 AC | Property Subtype | Commercial |
| Property Type | Land | Proposed Use | Mixed Use |
| Total Space Available | 0.69 AC |
| Property Type | Land |
| Property Subtype | Commercial |
| Proposed Use | Mixed Use |
Presented by
Kwik Klean Kar Wash
Kwik Klean Kar Wash | 401 Peyton Pl
Hmm, there seems to have been an error sending your message. Please try again.
Thanks! Your message was sent.
