Your email has been sent.
Highlights
- Café / Deli, Coffee Bar
- Huddle Room, Conference Room, Outside Seating, Vending Machines
- On - site Leasing, Maintenance & Management
- Loading Docks
All Available Spaces(20)
Display Rental Rate as
- Space
- Size
- Term
- Rental Rate
- Space Use
- Condition
- Available
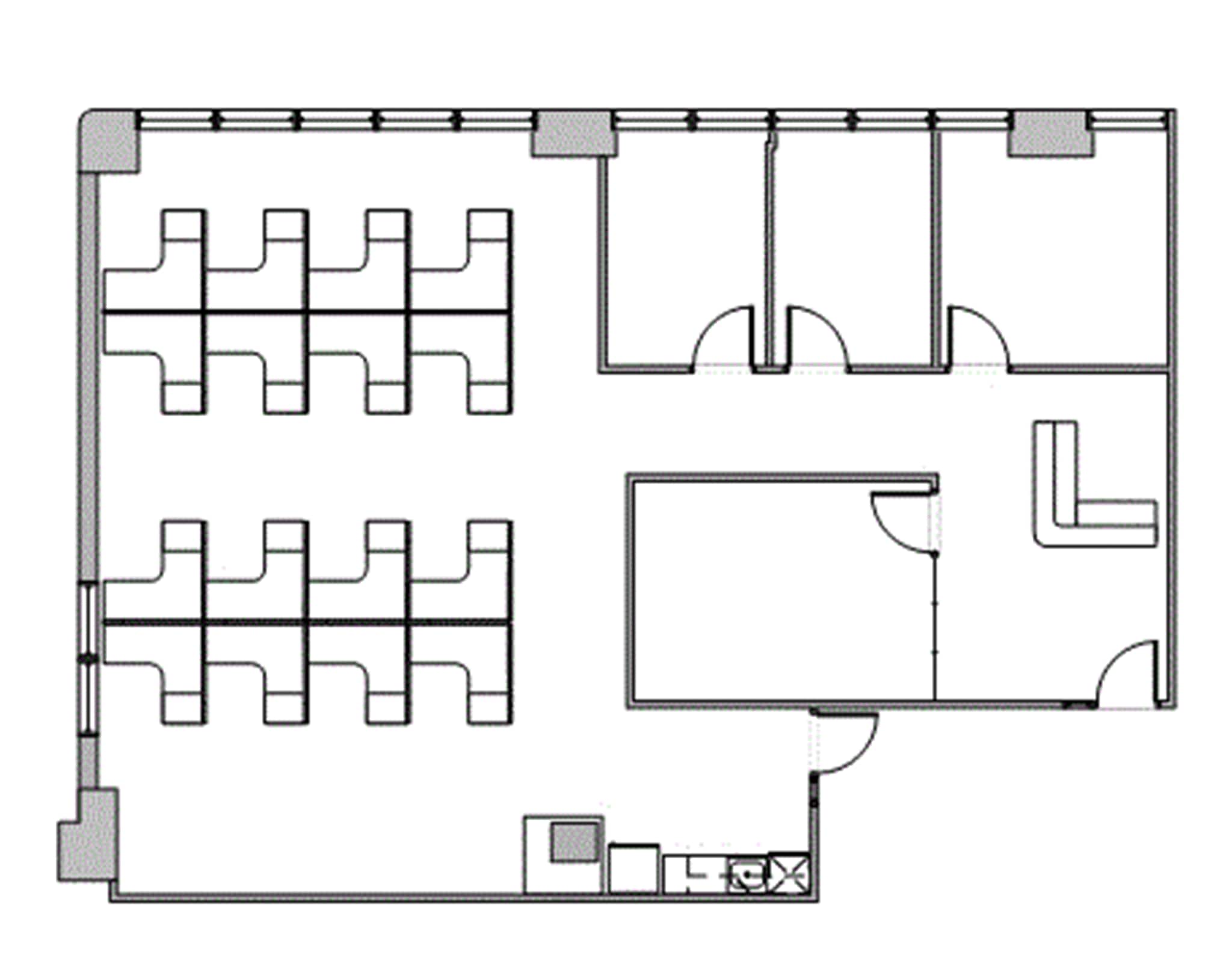
Corner Location with 8 Window Offices, 1 internal office, Sink area and a private restroom.
- Listed lease rate plus proportional share of electrical cost
- Open Floor Plan Layout
- 9 Private Offices
- Partially Built-Out as Standard Office
- Fits 9 - 28 People
Corner Location with 10 Window Offices, 1 Storage Room, 1 Bullpen and Kitchen Area With Sink.
- Listed lease rate plus proportional share of electrical cost
- Mostly Open Floor Plan Layout
- 10 Private Offices
- Partially Built-Out as Standard Office
- Fits 9 - 26 People
Reception Area, 3 Window Offices, 1 Interior Office, 1 Conference Room, Kitchen, Sink, 1 Closets
- Listed lease rate plus proportional share of electrical cost
- Fits 8 - 10 People
Reception/Open Area, 2 Window Offices
- Listed lease rate plus proportional share of electrical cost
- Fits 2 - 6 People
Reception Area, 2 Window Offices, Open Area, 1 Closets, Corner Location
- Listed lease rate plus proportional share of electrical cost
- Fits 3 - 9 People
Reception Area, 1 Window Office, 1 Bullpen, Kitchen, Break Area, Sink, File Or Storage Area, 2 Closets, 1 Entrance
- Listed lease rate plus proportional share of electrical cost
- Mostly Open Floor Plan Layout
- 1 Private Office
- Partially Built-Out as Standard Office
- Fits 4 - 13 People
- Space is in Excellent Condition
2 Window Offices, 2 Interior Offices, 1 Conference Room, Kitchen, Sink, Corner Location
- Listed lease rate plus proportional share of electrical cost
- Fits 6 - 19 People
Reception Area with plank flooring & Glass Entry Door, 4 Window Offices, or 3 Window Offices and 1 Conference Room, 1 Entrance
- Listed lease rate plus proportional share of electrical cost
- Fits 4 - 11 People
Reception Area, 4 Window Offices, 1 Interior Office, 1 Conference Room, 1 Bullpen, Open Area, Kitchen, Sink, Corner Location, 1 Entrance
- Listed lease rate plus proportional share of electrical cost
- Mostly Open Floor Plan Layout
- 5 Private Offices
- Partially Built-Out as Standard Office
- Fits 6 - 18 People
- 1 Conference Room
Reception Area, 3 Window Offices, Kitchen, Break Area, Sink, 1 conference Room, 1 Entrance
- Listed lease rate plus proportional share of electrical cost
- Mostly Open Floor Plan Layout
- 2 Private Offices
- Partially Built-Out as Standard Office
- Fits 3 - 10 People
Glass herculite entry door with marble tile Reception Area, 2 Window Offices, 1 glass entry Conference Room, Kitchen with Sink and Dishwasher, Break Area
- Listed lease rate plus proportional share of electrical cost
- Mostly Open Floor Plan Layout
- 2 Private Offices
- Partially Built-Out as Standard Office
- Fits 4 - 12 People
Reception Area, 5 Window Offices, Break Area, Sink, 1 Closets
- Listed lease rate plus proportional share of electrical cost
- Mostly Open Floor Plan Layout
- 5 Private Offices
- Partially Built-Out as Standard Office
- Fits 6 - 18 People
Reception Area with hardwood floors, 6 Window Offices (2 with wood floors), 1 Interior Office, 1 Conference Room, Kitchen, Sink
- Listed lease rate plus proportional share of electrical cost
- Mostly Open Floor Plan Layout
- 7 Private Offices
- Partially Built-Out as Standard Office
- Fits 7 - 21 People
- 1 Conference Room
Reception Area, 2 Window Offices, 1 Interior Office, 1 Bullpen, Open Area, Kitchen, Break Area, Sink
- Listed lease rate plus proportional share of electrical cost
- Mostly Open Floor Plan Layout
- 3 Private Offices
- Partially Built-Out as Standard Office
- Fits 6 - 17 People
Reception area, 2 Interior Offices, 1 Open Area, Corner office
- Listed lease rate plus proportional share of electrical cost
- Mostly Open Floor Plan Layout
- 3 Private Offices
- Partially Built-Out as Standard Office
- Fits 4 - 12 People
Reception Area, 3 Window Offices, 1 Interior Office, 1 Bullpen, 2 Entrances
- Listed lease rate plus proportional share of electrical cost
- Fits 6 - 18 People
Reception Area, 14 Window Offices, 1 Interior Office, 1 Bullpen, Kitchen, Sink, 2 Closets, Corner Location
- Listed lease rate plus proportional share of electrical cost
- Fits 29 - 93 People
Reception, glassed huddle room, 2 window offices, bullpen
- Listed lease rate plus proportional share of electrical cost
- Fits 3 - 9 People
Reception, glassed huddle room, 5 window offices, storage room, open space
- Listed lease rate plus proportional share of electrical cost
- Fits 5 - 14 People
Reception Area, 2 Window Offices, 1 Entrance
- Listed lease rate plus proportional share of electrical cost
- Fits 3 - 6 People
| Space | Size | Term | Rental Rate | Space Use | Condition | Available |
| 1st Floor, Ste 1020 | 3,452 SF | Negotiable | $19.00 /SF/YR $1.58 /SF/MO $65,588 /YR $5,466 /MO | Office | Partial Build-Out | Now |
| 1st Floor, Ste 1080 | 3,231 SF | Negotiable | $19.00 /SF/YR $1.58 /SF/MO $61,389 /YR $5,116 /MO | Office | Partial Build-Out | Now |
| 2nd Floor, Ste 200 | 1,010 SF | Negotiable | $19.00 /SF/YR $1.58 /SF/MO $19,190 /YR $1,599 /MO | Office | - | Now |
| 2nd Floor, Ste 205 | 686 SF | Negotiable | $19.00 /SF/YR $1.58 /SF/MO $13,034 /YR $1,086 /MO | Office | - | Now |
| 3rd Floor, Ste 305 | 1,051 SF | Negotiable | $19.00 /SF/YR $1.58 /SF/MO $19,969 /YR $1,664 /MO | Office | - | Now |
| 3rd Floor, Ste 308 | 1,591 SF | Negotiable | $19.00 /SF/YR $1.58 /SF/MO $30,229 /YR $2,519 /MO | Office | Partial Build-Out | Now |
| 3rd Floor, Ste 318 | 2,297 SF | Negotiable | $19.00 /SF/YR $1.58 /SF/MO $43,643 /YR $3,637 /MO | Office | - | Now |
| 3rd Floor, Ste 320 | 1,322 SF | Negotiable | $19.00 /SF/YR $1.58 /SF/MO $25,118 /YR $2,093 /MO | Office | - | Now |
| 3rd Floor, Ste 325 | 2,213 SF | Negotiable | $19.00 /SF/YR $1.58 /SF/MO $42,047 /YR $3,504 /MO | Office | Partial Build-Out | Now |
| 4th Floor, Ste 410 | 1,175 SF | Negotiable | $19.00 /SF/YR $1.58 /SF/MO $22,325 /YR $1,860 /MO | Office | Partial Build-Out | Now |
| 4th Floor, Ste 460 | 1,485 SF | Negotiable | $19.00 /SF/YR $1.58 /SF/MO $28,215 /YR $2,351 /MO | Office | Partial Build-Out | Now |
| 5th Floor, Ste 511 | 2,193 SF | Negotiable | $19.00 /SF/YR $1.58 /SF/MO $41,667 /YR $3,472 /MO | Office | Partial Build-Out | Now |
| 5th Floor, Ste 512 | 2,618 SF | Negotiable | $19.00 /SF/YR $1.58 /SF/MO $49,742 /YR $4,145 /MO | Office | Partial Build-Out | Now |
| 5th Floor, Ste 522 | 2,071 SF | Negotiable | $19.00 /SF/YR $1.58 /SF/MO $39,349 /YR $3,279 /MO | Office | Partial Build-Out | Now |
| 7th Floor, Ste 730 | 1,445 SF | Negotiable | $19.00 /SF/YR $1.58 /SF/MO $27,455 /YR $2,288 /MO | Office | Partial Build-Out | Now |
| 7th Floor, Ste 770 | 2,208 SF | Negotiable | $19.00 /SF/YR $1.58 /SF/MO $41,952 /YR $3,496 /MO | Office | - | Now |
| 8th Floor, Ste 840 | 11,539 SF | Negotiable | $19.00 /SF/YR $1.58 /SF/MO $219,241 /YR $18,270 /MO | Office | - | March 01, 2026 |
| 9th Floor, Ste 904 | 1,102 SF | Negotiable | $19.00 /SF/YR $1.58 /SF/MO $20,938 /YR $1,745 /MO | Office | - | Now |
| 9th Floor, Ste 905 | 1,701 SF | Negotiable | $19.00 /SF/YR $1.58 /SF/MO $32,319 /YR $2,693 /MO | Office | - | Now |
| 9th Floor, Ste 920 | 666 SF | Negotiable | $19.00 /SF/YR $1.58 /SF/MO $12,654 /YR $1,055 /MO | Office | - | Now |
1st Floor, Ste 1020
| Size |
| 3,452 SF |
| Term |
| Negotiable |
| Rental Rate |
| $19.00 /SF/YR $1.58 /SF/MO $65,588 /YR $5,466 /MO |
| Space Use |
| Office |
| Condition |
| Partial Build-Out |
| Available |
| Now |
1st Floor, Ste 1080
| Size |
| 3,231 SF |
| Term |
| Negotiable |
| Rental Rate |
| $19.00 /SF/YR $1.58 /SF/MO $61,389 /YR $5,116 /MO |
| Space Use |
| Office |
| Condition |
| Partial Build-Out |
| Available |
| Now |
2nd Floor, Ste 200
| Size |
| 1,010 SF |
| Term |
| Negotiable |
| Rental Rate |
| $19.00 /SF/YR $1.58 /SF/MO $19,190 /YR $1,599 /MO |
| Space Use |
| Office |
| Condition |
| - |
| Available |
| Now |
2nd Floor, Ste 205
| Size |
| 686 SF |
| Term |
| Negotiable |
| Rental Rate |
| $19.00 /SF/YR $1.58 /SF/MO $13,034 /YR $1,086 /MO |
| Space Use |
| Office |
| Condition |
| - |
| Available |
| Now |
3rd Floor, Ste 305
| Size |
| 1,051 SF |
| Term |
| Negotiable |
| Rental Rate |
| $19.00 /SF/YR $1.58 /SF/MO $19,969 /YR $1,664 /MO |
| Space Use |
| Office |
| Condition |
| - |
| Available |
| Now |
3rd Floor, Ste 308
| Size |
| 1,591 SF |
| Term |
| Negotiable |
| Rental Rate |
| $19.00 /SF/YR $1.58 /SF/MO $30,229 /YR $2,519 /MO |
| Space Use |
| Office |
| Condition |
| Partial Build-Out |
| Available |
| Now |
3rd Floor, Ste 318
| Size |
| 2,297 SF |
| Term |
| Negotiable |
| Rental Rate |
| $19.00 /SF/YR $1.58 /SF/MO $43,643 /YR $3,637 /MO |
| Space Use |
| Office |
| Condition |
| - |
| Available |
| Now |
3rd Floor, Ste 320
| Size |
| 1,322 SF |
| Term |
| Negotiable |
| Rental Rate |
| $19.00 /SF/YR $1.58 /SF/MO $25,118 /YR $2,093 /MO |
| Space Use |
| Office |
| Condition |
| - |
| Available |
| Now |
3rd Floor, Ste 325
| Size |
| 2,213 SF |
| Term |
| Negotiable |
| Rental Rate |
| $19.00 /SF/YR $1.58 /SF/MO $42,047 /YR $3,504 /MO |
| Space Use |
| Office |
| Condition |
| Partial Build-Out |
| Available |
| Now |
4th Floor, Ste 410
| Size |
| 1,175 SF |
| Term |
| Negotiable |
| Rental Rate |
| $19.00 /SF/YR $1.58 /SF/MO $22,325 /YR $1,860 /MO |
| Space Use |
| Office |
| Condition |
| Partial Build-Out |
| Available |
| Now |
4th Floor, Ste 460
| Size |
| 1,485 SF |
| Term |
| Negotiable |
| Rental Rate |
| $19.00 /SF/YR $1.58 /SF/MO $28,215 /YR $2,351 /MO |
| Space Use |
| Office |
| Condition |
| Partial Build-Out |
| Available |
| Now |
5th Floor, Ste 511
| Size |
| 2,193 SF |
| Term |
| Negotiable |
| Rental Rate |
| $19.00 /SF/YR $1.58 /SF/MO $41,667 /YR $3,472 /MO |
| Space Use |
| Office |
| Condition |
| Partial Build-Out |
| Available |
| Now |
5th Floor, Ste 512
| Size |
| 2,618 SF |
| Term |
| Negotiable |
| Rental Rate |
| $19.00 /SF/YR $1.58 /SF/MO $49,742 /YR $4,145 /MO |
| Space Use |
| Office |
| Condition |
| Partial Build-Out |
| Available |
| Now |
5th Floor, Ste 522
| Size |
| 2,071 SF |
| Term |
| Negotiable |
| Rental Rate |
| $19.00 /SF/YR $1.58 /SF/MO $39,349 /YR $3,279 /MO |
| Space Use |
| Office |
| Condition |
| Partial Build-Out |
| Available |
| Now |
7th Floor, Ste 730
| Size |
| 1,445 SF |
| Term |
| Negotiable |
| Rental Rate |
| $19.00 /SF/YR $1.58 /SF/MO $27,455 /YR $2,288 /MO |
| Space Use |
| Office |
| Condition |
| Partial Build-Out |
| Available |
| Now |
7th Floor, Ste 770
| Size |
| 2,208 SF |
| Term |
| Negotiable |
| Rental Rate |
| $19.00 /SF/YR $1.58 /SF/MO $41,952 /YR $3,496 /MO |
| Space Use |
| Office |
| Condition |
| - |
| Available |
| Now |
8th Floor, Ste 840
| Size |
| 11,539 SF |
| Term |
| Negotiable |
| Rental Rate |
| $19.00 /SF/YR $1.58 /SF/MO $219,241 /YR $18,270 /MO |
| Space Use |
| Office |
| Condition |
| - |
| Available |
| March 01, 2026 |
9th Floor, Ste 904
| Size |
| 1,102 SF |
| Term |
| Negotiable |
| Rental Rate |
| $19.00 /SF/YR $1.58 /SF/MO $20,938 /YR $1,745 /MO |
| Space Use |
| Office |
| Condition |
| - |
| Available |
| Now |
9th Floor, Ste 905
| Size |
| 1,701 SF |
| Term |
| Negotiable |
| Rental Rate |
| $19.00 /SF/YR $1.58 /SF/MO $32,319 /YR $2,693 /MO |
| Space Use |
| Office |
| Condition |
| - |
| Available |
| Now |
9th Floor, Ste 920
| Size |
| 666 SF |
| Term |
| Negotiable |
| Rental Rate |
| $19.00 /SF/YR $1.58 /SF/MO $12,654 /YR $1,055 /MO |
| Space Use |
| Office |
| Condition |
| - |
| Available |
| Now |
1st Floor, Ste 1020
| Size | 3,452 SF |
| Term | Negotiable |
| Rental Rate | $19.00 /SF/YR |
| Space Use | Office |
| Condition | Partial Build-Out |
| Available | Now |
Corner Location with 8 Window Offices, 1 internal office, Sink area and a private restroom.
- Listed lease rate plus proportional share of electrical cost
- Partially Built-Out as Standard Office
- Open Floor Plan Layout
- Fits 9 - 28 People
- 9 Private Offices
1st Floor, Ste 1080
| Size | 3,231 SF |
| Term | Negotiable |
| Rental Rate | $19.00 /SF/YR |
| Space Use | Office |
| Condition | Partial Build-Out |
| Available | Now |
Corner Location with 10 Window Offices, 1 Storage Room, 1 Bullpen and Kitchen Area With Sink.
- Listed lease rate plus proportional share of electrical cost
- Partially Built-Out as Standard Office
- Mostly Open Floor Plan Layout
- Fits 9 - 26 People
- 10 Private Offices
2nd Floor, Ste 200
| Size | 1,010 SF |
| Term | Negotiable |
| Rental Rate | $19.00 /SF/YR |
| Space Use | Office |
| Condition | - |
| Available | Now |
Reception Area, 3 Window Offices, 1 Interior Office, 1 Conference Room, Kitchen, Sink, 1 Closets
- Listed lease rate plus proportional share of electrical cost
- Fits 8 - 10 People
2nd Floor, Ste 205
| Size | 686 SF |
| Term | Negotiable |
| Rental Rate | $19.00 /SF/YR |
| Space Use | Office |
| Condition | - |
| Available | Now |
Reception/Open Area, 2 Window Offices
- Listed lease rate plus proportional share of electrical cost
- Fits 2 - 6 People
3rd Floor, Ste 305
| Size | 1,051 SF |
| Term | Negotiable |
| Rental Rate | $19.00 /SF/YR |
| Space Use | Office |
| Condition | - |
| Available | Now |
Reception Area, 2 Window Offices, Open Area, 1 Closets, Corner Location
- Listed lease rate plus proportional share of electrical cost
- Fits 3 - 9 People
3rd Floor, Ste 308
| Size | 1,591 SF |
| Term | Negotiable |
| Rental Rate | $19.00 /SF/YR |
| Space Use | Office |
| Condition | Partial Build-Out |
| Available | Now |
Reception Area, 1 Window Office, 1 Bullpen, Kitchen, Break Area, Sink, File Or Storage Area, 2 Closets, 1 Entrance
- Listed lease rate plus proportional share of electrical cost
- Partially Built-Out as Standard Office
- Mostly Open Floor Plan Layout
- Fits 4 - 13 People
- 1 Private Office
- Space is in Excellent Condition
3rd Floor, Ste 318
| Size | 2,297 SF |
| Term | Negotiable |
| Rental Rate | $19.00 /SF/YR |
| Space Use | Office |
| Condition | - |
| Available | Now |
2 Window Offices, 2 Interior Offices, 1 Conference Room, Kitchen, Sink, Corner Location
- Listed lease rate plus proportional share of electrical cost
- Fits 6 - 19 People
3rd Floor, Ste 320
| Size | 1,322 SF |
| Term | Negotiable |
| Rental Rate | $19.00 /SF/YR |
| Space Use | Office |
| Condition | - |
| Available | Now |
Reception Area with plank flooring & Glass Entry Door, 4 Window Offices, or 3 Window Offices and 1 Conference Room, 1 Entrance
- Listed lease rate plus proportional share of electrical cost
- Fits 4 - 11 People
3rd Floor, Ste 325
| Size | 2,213 SF |
| Term | Negotiable |
| Rental Rate | $19.00 /SF/YR |
| Space Use | Office |
| Condition | Partial Build-Out |
| Available | Now |
Reception Area, 4 Window Offices, 1 Interior Office, 1 Conference Room, 1 Bullpen, Open Area, Kitchen, Sink, Corner Location, 1 Entrance
- Listed lease rate plus proportional share of electrical cost
- Partially Built-Out as Standard Office
- Mostly Open Floor Plan Layout
- Fits 6 - 18 People
- 5 Private Offices
- 1 Conference Room
4th Floor, Ste 410
| Size | 1,175 SF |
| Term | Negotiable |
| Rental Rate | $19.00 /SF/YR |
| Space Use | Office |
| Condition | Partial Build-Out |
| Available | Now |
Reception Area, 3 Window Offices, Kitchen, Break Area, Sink, 1 conference Room, 1 Entrance
- Listed lease rate plus proportional share of electrical cost
- Partially Built-Out as Standard Office
- Mostly Open Floor Plan Layout
- Fits 3 - 10 People
- 2 Private Offices
4th Floor, Ste 460
| Size | 1,485 SF |
| Term | Negotiable |
| Rental Rate | $19.00 /SF/YR |
| Space Use | Office |
| Condition | Partial Build-Out |
| Available | Now |
Glass herculite entry door with marble tile Reception Area, 2 Window Offices, 1 glass entry Conference Room, Kitchen with Sink and Dishwasher, Break Area
- Listed lease rate plus proportional share of electrical cost
- Partially Built-Out as Standard Office
- Mostly Open Floor Plan Layout
- Fits 4 - 12 People
- 2 Private Offices
5th Floor, Ste 511
| Size | 2,193 SF |
| Term | Negotiable |
| Rental Rate | $19.00 /SF/YR |
| Space Use | Office |
| Condition | Partial Build-Out |
| Available | Now |
Reception Area, 5 Window Offices, Break Area, Sink, 1 Closets
- Listed lease rate plus proportional share of electrical cost
- Partially Built-Out as Standard Office
- Mostly Open Floor Plan Layout
- Fits 6 - 18 People
- 5 Private Offices
5th Floor, Ste 512
| Size | 2,618 SF |
| Term | Negotiable |
| Rental Rate | $19.00 /SF/YR |
| Space Use | Office |
| Condition | Partial Build-Out |
| Available | Now |
Reception Area with hardwood floors, 6 Window Offices (2 with wood floors), 1 Interior Office, 1 Conference Room, Kitchen, Sink
- Listed lease rate plus proportional share of electrical cost
- Partially Built-Out as Standard Office
- Mostly Open Floor Plan Layout
- Fits 7 - 21 People
- 7 Private Offices
- 1 Conference Room
5th Floor, Ste 522
| Size | 2,071 SF |
| Term | Negotiable |
| Rental Rate | $19.00 /SF/YR |
| Space Use | Office |
| Condition | Partial Build-Out |
| Available | Now |
Reception Area, 2 Window Offices, 1 Interior Office, 1 Bullpen, Open Area, Kitchen, Break Area, Sink
- Listed lease rate plus proportional share of electrical cost
- Partially Built-Out as Standard Office
- Mostly Open Floor Plan Layout
- Fits 6 - 17 People
- 3 Private Offices
7th Floor, Ste 730
| Size | 1,445 SF |
| Term | Negotiable |
| Rental Rate | $19.00 /SF/YR |
| Space Use | Office |
| Condition | Partial Build-Out |
| Available | Now |
Reception area, 2 Interior Offices, 1 Open Area, Corner office
- Listed lease rate plus proportional share of electrical cost
- Partially Built-Out as Standard Office
- Mostly Open Floor Plan Layout
- Fits 4 - 12 People
- 3 Private Offices
7th Floor, Ste 770
| Size | 2,208 SF |
| Term | Negotiable |
| Rental Rate | $19.00 /SF/YR |
| Space Use | Office |
| Condition | - |
| Available | Now |
Reception Area, 3 Window Offices, 1 Interior Office, 1 Bullpen, 2 Entrances
- Listed lease rate plus proportional share of electrical cost
- Fits 6 - 18 People
8th Floor, Ste 840
| Size | 11,539 SF |
| Term | Negotiable |
| Rental Rate | $19.00 /SF/YR |
| Space Use | Office |
| Condition | - |
| Available | March 01, 2026 |
Reception Area, 14 Window Offices, 1 Interior Office, 1 Bullpen, Kitchen, Sink, 2 Closets, Corner Location
- Listed lease rate plus proportional share of electrical cost
- Fits 29 - 93 People
9th Floor, Ste 904
| Size | 1,102 SF |
| Term | Negotiable |
| Rental Rate | $19.00 /SF/YR |
| Space Use | Office |
| Condition | - |
| Available | Now |
Reception, glassed huddle room, 2 window offices, bullpen
- Listed lease rate plus proportional share of electrical cost
- Fits 3 - 9 People
9th Floor, Ste 905
| Size | 1,701 SF |
| Term | Negotiable |
| Rental Rate | $19.00 /SF/YR |
| Space Use | Office |
| Condition | - |
| Available | Now |
Reception, glassed huddle room, 5 window offices, storage room, open space
- Listed lease rate plus proportional share of electrical cost
- Fits 5 - 14 People
9th Floor, Ste 920
| Size | 666 SF |
| Term | Negotiable |
| Rental Rate | $19.00 /SF/YR |
| Space Use | Office |
| Condition | - |
| Available | Now |
Reception Area, 2 Window Offices, 1 Entrance
- Listed lease rate plus proportional share of electrical cost
- Fits 3 - 6 People
Property Overview
4100 Spring Valley Road, located in Farmers Branch, has 10 floors with a total of 153,387 square feet of office space for rent. This building, surrounded by greenery, features a recently upgraded lobby and boasts a Class A atmosphere. You’ll find ample surface parking plus covered parking. Elevator service, and conference facilities provide additional convenience. Across the street sits a bus stop, while just three miles away you’ll find the Addison Airport. Restaurants within walking distance of the offices include Fuzzy’s Tacos, Schlotzsky’s, Golden Egg Roll, and McDonald’s. Drive a couple of blocks north to Belt Line for Addison’s Restaurant Row, featuring an array of dining options including Fogo de Chão, Texas de Brazil, Macaroni Grill, Olive Garden, Genghis Grill, On the Border, and many, many more.
- 24 Hour Access
- Controlled Access
- Conferencing Facility
- Property Manager on Site
- Air Conditioning
Property Facts
Contact the Leasing Agent
4100 Spring Valley Rd











































