Log In/Sign Up
Your email has been sent.
4110 Haltom Rd 4,224 SF Vacant Retail Building Haltom City, TX 76117 $599,900 ($142.02/SF)



INVESTMENT HIGHLIGHTS
- Lots of room and potential! Scalable leasing options-occupancy the full area or lease a portion at an accessible rate.
- Located Close to so many heavy traffic roads.
- Layout designed to support strong tenant success while reducing vacancy!
EXECUTIVE SUMMARY
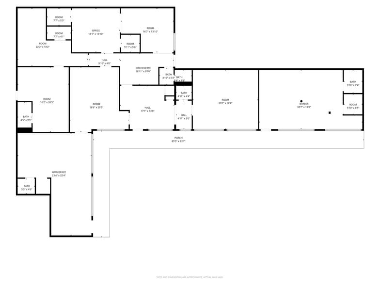
Prime retail flex opportunity in the heart of Haltom City! This versatile ~4,224 SF building sits on a ~0.45 acre lot with 12 parking spaces and highly flexible C-3 Commercial zoning, allowing 50+ permitted uses. Built in 1960, the property is ideally sized for a single-tenant user or can be divided for multiple occupants. Its location offers outstanding accessibility just minutes from NE Loop 820, US-377 (Denton Hwy), and TX-183 (Belknap St), providing excellent visibility and exposure to high traffic counts (NE Loop 820 ~120,000 VPD per TxDOT). The surrounding trade area is thriving, with a population of ~45,700 and a median age of 35, offering a strong customer base. Nearby anchors include Walmart Supercenter, numerous restaurants, the new Haltom City Hall, and a major retail development with an H Mart-anchored shopping center only 2 miles away, adding significant retail gravity to the area. With its central location, ample parking, and zoning flexibility, this property is a strong candidate for retail, showroom, medical, office flex, or service uses. Key advantages include quick highway access, a wide permitted-use list, and growing demand from both residential and commercial developments in the area. Don’t miss this opportunity to secure a visible, flexible property positioned for growth in a dynamic market. Schedule a showing today!
All information contained herein is deemed reliable but not guaranteed. Buyer and Buyer’s Agent are responsible for verifying all information including but not limited to square footage, lot size, zoning, permitted uses, taxes, schools, and any other details of importance to the Buyer. Listing Broker and Seller makes no warranties or representations as to the accuracy of the information provided.
All information contained herein is deemed reliable but not guaranteed. Buyer and Buyer’s Agent are responsible for verifying all information including but not limited to square footage, lot size, zoning, permitted uses, taxes, schools, and any other details of importance to the Buyer. Listing Broker and Seller makes no warranties or representations as to the accuracy of the information provided.
PROPERTY FACTS
Sale Type
Investment or Owner User
Sale Condition
High Vacancy Property
Property Type
Retail
Property Subtype
Building Size
4,224 SF
Building Class
C
Year Built
1960
Price
$599,900
Price Per SF
$142.02
Percent Leased
Vacant
Tenancy
Multiple
Building Height
1 Story
Building FAR
0.22
Lot Size
0.45 AC
Zoning
C-3 Commercial - C-3 commercial
Automotive, Beauty/Barber, Building Services, Food Service, Medical, Office, Office/Warehouse, Restaurant, Retail, Schools and more.
Parking
12 Spaces (2.84 Spaces per 1,000 SF Leased)
AMENITIES
- Air Conditioning
MAJOR TENANTS
- TENANT
- INDUSTRY
- SF OCCUPIED
- RENT/SF
- LEASE END
- Reyes Beauty Salon
- Services
- -
- -
- -
| TENANT | INDUSTRY | SF OCCUPIED | RENT/SF | LEASE END | ||
| Reyes Beauty Salon | Services | - | - | - |
SPACE AVAILABILITY
- SPACE
- SIZE
- SPACE USE
- POSITION
- AVAILABLE
- B
- 1,000 SF
- Office
- -
- Now
- C
- 2,424 SF
- Office
- -
- Now
- D
- 500 SF
- Office
- -
- Now
| Space | Size | Space Use | Position | Available |
| B | 1,000 SF | Office | - | Now |
| C | 2,424 SF | Office | - | Now |
| D | 500 SF | Office | - | Now |
B
| Size |
| 1,000 SF |
| Space Use |
| Office |
| Position |
| - |
| Available |
| Now |
C
| Size |
| 2,424 SF |
| Space Use |
| Office |
| Position |
| - |
| Available |
| Now |
D
| Size |
| 500 SF |
| Space Use |
| Office |
| Position |
| - |
| Available |
| Now |
PROPERTY TAXES
| Parcel Number | 00340812 | Improvements Assessment | $333,074 |
| Land Assessment | $58,926 | Total Assessment | $392,000 |
PROPERTY TAXES
Parcel Number
00340812
Land Assessment
$58,926
Improvements Assessment
$333,074
Total Assessment
$392,000
1 of 21
VIDEOS
MATTERPORT 3D EXTERIOR
MATTERPORT 3D TOUR
PHOTOS
STREET VIEW
STREET
MAP
Presented by
4110 Haltom Rd
Already a member? Log In
Hmm, there seems to have been an error sending your message. Please try again.
Thanks! Your message was sent.
