Your email has been sent.
PARK HIGHLIGHTS
- Located at E. McDowell Rd & N. Greenfield Rd.
- Office and Industrial Suites Available for Lease.
- Situated within one mile of Loop 202.
- Directly West of Falcon Field Airport.
- Property Exteriors Remodeled 2023.
PARK FACTS
| Total Space Available | 26,811 SF | Park Type | Office Park |
| Total Space Available | 26,811 SF |
| Park Type | Office Park |
Display Rental Rate as
- SPACE
- SIZE
- TERM
- RENTAL RATE
- SPACE USE
- CONDITION
- AVAILABLE
1-Month Free Per Year of the Lease! Lease Rate Includes the base year operating expenses and janitorial, does not include electricity. Reception, 5 Offices, 1 Conference Room, Bull Pen, Break Room. Lockbox is on janitorial closet door.
- Listed rate may not include certain utilities, building services and property expenses
- 5 Private Offices
- Reception Area
- Open Floor Plan Layout
- 1 Conference Room
| Space | Size | Term | Rental Rate | Space Use | Condition | Available |
| 1st Floor, Ste 115 | 2,896 SF | Negotiable | $24.48 /SF/YR $2.04 /SF/MO $70,894 /YR $5,908 /MO | Office | Partial Build-Out | Now |
4215 E McDowell Rd - 1st Floor - Ste 115
- SPACE
- SIZE
- TERM
- RENTAL RATE
- SPACE USE
- CONDITION
- AVAILABLE
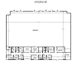
Reception, 11 Offices, 2 Conference Rooms, Bullpen, 2 Break Rooms, 4 Restrooms, 5 Grade Level Garage Doors, 2 Truck Wells
- Lease rate does not include utilities, property expenses or building services
- 2 Loading Docks
- 5 Drive Ins
- Reception Area
| Space | Size | Term | Rental Rate | Space Use | Condition | Available |
| 1st Floor - 101,103 | 15,816 SF | Negotiable | Upon Request Upon Request Upon Request Upon Request | Industrial | Partial Build-Out | Now |
2618 N Ogden Rd - 1st Floor - 101,103
- SPACE
- SIZE
- TERM
- RENTAL RATE
- SPACE USE
- CONDITION
- AVAILABLE
Available 3/1/26 Reception, 5 Offices, 3 Restrooms, Conference Room, Break Room, Warehouse, 3-Grade Level Doors
- Lease rate does not include utilities, property expenses or building services
- 3 Drive Ins
- Includes 2,336 SF of dedicated office space
- Reception Area
| Space | Size | Term | Rental Rate | Space Use | Condition | Available |
| 1st Floor - 103-105 | 8,099 SF | Negotiable | $16.80 /SF/YR $1.40 /SF/MO $136,063 /YR $11,339 /MO | Industrial | Partial Build-Out | March 01, 2026 |
2630 N Ogden Rd - 1st Floor - 103-105
- SPACE
- SIZE
- TERM
- RENTAL RATE
- SPACE USE
- CONDITION
- AVAILABLE
1-Month Free Per Year of the Lease! Lease Rate Includes the base year operating expenses and janitorial, does not include electricity. Reception, 5 Offices, 1 Conference Room, Bull Pen, Break Room. Lockbox is on janitorial closet door.
- Listed rate may not include certain utilities, building services and property expenses
- 5 Private Offices
- Reception Area
- Open Floor Plan Layout
- 1 Conference Room
| Space | Size | Term | Rental Rate | Space Use | Condition | Available |
| 1st Floor, Ste 115 | 2,896 SF | Negotiable | $24.48 /SF/YR $2.04 /SF/MO $70,894 /YR $5,908 /MO | Office | Partial Build-Out | Now |
4215 E McDowell Rd - 1st Floor - Ste 115
2618 N Ogden Rd - 1st Floor - 101,103
| Size | 15,816 SF |
| Term | Negotiable |
| Rental Rate | Upon Request |
| Space Use | Industrial |
| Condition | Partial Build-Out |
| Available | Now |
Reception, 11 Offices, 2 Conference Rooms, Bullpen, 2 Break Rooms, 4 Restrooms, 5 Grade Level Garage Doors, 2 Truck Wells
- Lease rate does not include utilities, property expenses or building services
- 5 Drive Ins
- 2 Loading Docks
- Reception Area
2630 N Ogden Rd - 1st Floor - 103-105
| Size | 8,099 SF |
| Term | Negotiable |
| Rental Rate | $16.80 /SF/YR |
| Space Use | Industrial |
| Condition | Partial Build-Out |
| Available | March 01, 2026 |
Available 3/1/26 Reception, 5 Offices, 3 Restrooms, Conference Room, Break Room, Warehouse, 3-Grade Level Doors
- Lease rate does not include utilities, property expenses or building services
- Includes 2,336 SF of dedicated office space
- 3 Drive Ins
- Reception Area
4215 E McDowell Rd - 1st Floor - Ste 115
| Size | 2,896 SF |
| Term | Negotiable |
| Rental Rate | $24.48 /SF/YR |
| Space Use | Office |
| Condition | Partial Build-Out |
| Available | Now |
1-Month Free Per Year of the Lease! Lease Rate Includes the base year operating expenses and janitorial, does not include electricity. Reception, 5 Offices, 1 Conference Room, Bull Pen, Break Room. Lockbox is on janitorial closet door.
- Listed rate may not include certain utilities, building services and property expenses
- Open Floor Plan Layout
- 5 Private Offices
- 1 Conference Room
- Reception Area
PARK OVERVIEW
Falcon Field/Apache Junction Ind
Presented by
Mesa Ridge Business Park | Mesa, AZ 85215
Hmm, there seems to have been an error sending your message. Please try again.
Thanks! Your message was sent.











