Your email has been sent.
Park Highlights
- Located in the heart of UTC.
- Wi-Fi powered open air workspace.
- Ready Office
- Part of the 555,000 square foot La Jolla Square campus.
- Walking distance to the UTC Mall.
Park Facts
All Available Spaces(15)
Display Rental Rate as
- Space
- Size
- Term
- Rental Rate
- Space Use
- Build-Out
- Available
- Rate includes utilities, building services and property expenses
- Mostly Open Floor Plan Layout
- 3 Private Offices
- Natural Light
- Fully Built-Out as Standard Office
- Fits 5 - 15 People
- Space is in Excellent Condition
- Rate includes utilities, building services and property expenses
- Mostly Open Floor Plan Layout
- 3 Private Offices
- Natural Light
- Fully Built-Out as Standard Office
- Fits 3 - 8 People
- Space is in Excellent Condition
Furnished
- Rate includes utilities, building services and property expenses
- Mostly Open Floor Plan Layout
- 9 Private Offices
- Space is in Excellent Condition
- Fully Built-Out as Standard Office
- Fits 13 - 40 People
- 1 Conference Room
- Natural Light
- Rate includes utilities, building services and property expenses
- Mostly Open Floor Plan Layout
- Space is in Excellent Condition
- Fully Built-Out as Standard Office
- Fits 34 - 109 People
| Space | Size | Term | Rental Rate | Space Use | Build-Out | Available |
| 1st Floor, Ste 100 | 1,782 SF | Negotiable | $44.40 /SF/YR $3.70 /SF/MO $79,121 /YR $6,593 /MO | Office | Full Build-Out | Now |
| 3rd Floor, Ste 355 | 971 SF | Negotiable | $44.40 /SF/YR $3.70 /SF/MO $43,112 /YR $3,593 /MO | Office | Full Build-Out | Now |
| 3rd Floor, Ste 370 | 4,934 SF | Negotiable | $45.60 /SF/YR $3.80 /SF/MO $224,990 /YR $18,749 /MO | Office | Full Build-Out | September 01, 2026 |
| 5th Floor, Ste 500 | 13,548 SF | Negotiable | $46.80 /SF/YR $3.90 /SF/MO $634,046 /YR $52,837 /MO | Office | Full Build-Out | Now |
4225 Executive Sq - 1st Floor - Ste 100
4225 Executive Sq - 3rd Floor - Ste 355
4225 Executive Sq - 3rd Floor - Ste 370
4225 Executive Sq - 5th Floor - Ste 500
- Space
- Size
- Term
- Rental Rate
- Space Use
- Build-Out
- Available
Call to Show. 08-01-2026
- Rate includes utilities, building services and property expenses
- Mostly Open Floor Plan Layout
- 14 Private Offices
- Space is in Excellent Condition
- Fully Built-Out as Standard Office
- Fits 46 - 146 People
- 3 Conference Rooms
Call to Show.
- Rate includes utilities, building services and property expenses
- Mostly Open Floor Plan Layout
- 10 Private Offices
- Space is in Excellent Condition
- Fully Built-Out as Standard Office
- Fits 8 - 26 People
- 1 Conference Room
Call to show.
- Rate includes utilities, building services and property expenses
- Mostly Open Floor Plan Layout
- 5 Private Offices
- Fully Built-Out as Standard Office
- Fits 7 - 20 People
- Space is in Excellent Condition
| Space | Size | Term | Rental Rate | Space Use | Build-Out | Available |
| 2nd Floor, Ste 200 | 18,167 SF | Negotiable | $44.40 /SF/YR $3.70 /SF/MO $806,615 /YR $67,218 /MO | Office | Full Build-Out | August 01, 2026 |
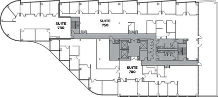
| 7th Floor, Ste 780 | 3,167 SF | Negotiable | $46.20 /SF/YR $3.85 /SF/MO $146,315 /YR $12,193 /MO | Office | Full Build-Out | August 01, 2026 |
| 8th Floor, Ste 850 | 2,406 SF | Negotiable | $48.60 /SF/YR $4.05 /SF/MO $116,932 /YR $9,744 /MO | Office | Full Build-Out | August 01, 2026 |
4250 Executive Sq - 2nd Floor - Ste 200
4250 Executive Sq - 7th Floor - Ste 780
4250 Executive Sq - 8th Floor - Ste 850
- Space
- Size
- Term
- Rental Rate
- Space Use
- Build-Out
- Available
Flex+®, Call to Show/Under Construction
- Rate includes utilities, building services and property expenses
- Mostly Open Floor Plan Layout
- 3 Private Offices
- Fully Built-Out as Standard Office
- Fits 6 - 19 People
- Space is in Excellent Condition
- Rate includes utilities, building services and property expenses
- Fits 4 - 11 People
- Space is in Excellent Condition
- Fully Built-Out as Standard Office
- 4 Private Offices
Flex+®, Call to Show/Under Construction
- Rate includes utilities, building services and property expenses
- Fits 6 - 20 People
- Space is in Excellent Condition
- Fully Built-Out as Standard Office
- 4 Private Offices
- Rate includes utilities, building services and property expenses
- Mostly Open Floor Plan Layout
- 4 Private Offices
- Space is in Excellent Condition
- Fully Built-Out as Standard Office
- Fits 7 - 20 People
- 1 Conference Room
- Can be combined with additional space(s) for up to 4,441 SF of adjacent space
Call to show.
- Rate includes utilities, building services and property expenses
- Mostly Open Floor Plan Layout
- 4 Private Offices
- Space is in Excellent Condition
- Fully Built-Out as Standard Office
- Fits 5 - 16 People
- 1 Conference Room
- Can be combined with additional space(s) for up to 4,441 SF of adjacent space
Flex+®, Call to Show, Under Construction
- Rate includes utilities, building services and property expenses
- Mostly Open Floor Plan Layout
- 4 Private Offices
- Fully Built-Out as Standard Office
- Fits 6 - 19 People
- Space is in Excellent Condition
- Rate includes utilities, building services and property expenses
- Open Floor Plan Layout
- 14 Private Offices
- Space is in Excellent Condition
- Fully Built-Out as Standard Office
- Fits 27 - 84 People
- 2 Conference Rooms
Flex+® Call to Show/Under Construction
- Rate includes utilities, building services and property expenses
- Open Floor Plan Layout
- 3 Private Offices
- Space is in Excellent Condition
- Fully Built-Out as Standard Office
- Fits 11 - 33 People
- 1 Conference Room
| Space | Size | Term | Rental Rate | Space Use | Build-Out | Available |
| 2nd Floor, Ste 240 | 2,352 SF | Negotiable | $45.00 /SF/YR $3.75 /SF/MO $105,840 /YR $8,820 /MO | Office | Full Build-Out | August 01, 2026 |
| 3rd Floor, Ste 325 | 1,344 SF | Negotiable | $44.40 /SF/YR $3.70 /SF/MO $59,674 /YR $4,973 /MO | Office | Full Build-Out | Now |
| 3rd Floor, Ste 380 | 2,391 SF | Negotiable | $44.40 /SF/YR $3.70 /SF/MO $106,160 /YR $8,847 /MO | Office | Full Build-Out | Now |
| 4th Floor, Ste 410 | 2,449 SF | Negotiable | $45.00 /SF/YR $3.75 /SF/MO $110,205 /YR $9,184 /MO | Office | Full Build-Out | Now |
| 4th Floor, Ste 420 | 1,992 SF | Negotiable | $53.40 /SF/YR $4.45 /SF/MO $106,373 /YR $8,864 /MO | Office | Full Build-Out | January 01, 2027 |
| 7th Floor, Ste 730 | 2,292 SF | Negotiable | $47.40 /SF/YR $3.95 /SF/MO $108,641 /YR $9,053 /MO | Office | Full Build-Out | August 01, 2026 |
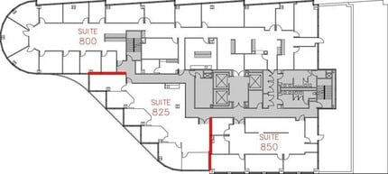
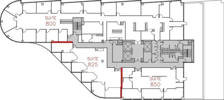
| 8th Floor, Ste 800 | 10,425 SF | Negotiable | $45.60 /SF/YR $3.80 /SF/MO $475,380 /YR $39,615 /MO | Office | Full Build-Out | Now |
| 8th Floor, Ste 825 | 4,063 SF | Negotiable | $48.60 /SF/YR $4.05 /SF/MO $197,462 /YR $16,455 /MO | Office | Full Build-Out | August 01, 2026 |
4275 Executive Sq - 2nd Floor - Ste 240
4275 Executive Sq - 3rd Floor - Ste 325
4275 Executive Sq - 3rd Floor - Ste 380
4275 Executive Sq - 4th Floor - Ste 410
4275 Executive Sq - 4th Floor - Ste 420
4275 Executive Sq - 7th Floor - Ste 730
4275 Executive Sq - 8th Floor - Ste 800
4275 Executive Sq - 8th Floor - Ste 825
4225 Executive Sq - 1st Floor - Ste 100
| Size | 1,782 SF |
| Term | Negotiable |
| Rental Rate | $44.40 /SF/YR |
| Space Use | Office |
| Build-Out | Full Build-Out |
| Available | Now |
- Rate includes utilities, building services and property expenses
- Fully Built-Out as Standard Office
- Mostly Open Floor Plan Layout
- Fits 5 - 15 People
- 3 Private Offices
- Space is in Excellent Condition
- Natural Light
4225 Executive Sq - 3rd Floor - Ste 355
| Size | 971 SF |
| Term | Negotiable |
| Rental Rate | $44.40 /SF/YR |
| Space Use | Office |
| Build-Out | Full Build-Out |
| Available | Now |
- Rate includes utilities, building services and property expenses
- Fully Built-Out as Standard Office
- Mostly Open Floor Plan Layout
- Fits 3 - 8 People
- 3 Private Offices
- Space is in Excellent Condition
- Natural Light
4225 Executive Sq - 3rd Floor - Ste 370
| Size | 4,934 SF |
| Term | Negotiable |
| Rental Rate | $45.60 /SF/YR |
| Space Use | Office |
| Build-Out | Full Build-Out |
| Available | September 01, 2026 |
Furnished
- Rate includes utilities, building services and property expenses
- Fully Built-Out as Standard Office
- Mostly Open Floor Plan Layout
- Fits 13 - 40 People
- 9 Private Offices
- 1 Conference Room
- Space is in Excellent Condition
- Natural Light
4225 Executive Sq - 5th Floor - Ste 500
| Size | 13,548 SF |
| Term | Negotiable |
| Rental Rate | $46.80 /SF/YR |
| Space Use | Office |
| Build-Out | Full Build-Out |
| Available | Now |
- Rate includes utilities, building services and property expenses
- Fully Built-Out as Standard Office
- Mostly Open Floor Plan Layout
- Fits 34 - 109 People
- Space is in Excellent Condition
4250 Executive Sq - 2nd Floor - Ste 200
| Size | 18,167 SF |
| Term | Negotiable |
| Rental Rate | $44.40 /SF/YR |
| Space Use | Office |
| Build-Out | Full Build-Out |
| Available | August 01, 2026 |
Call to Show. 08-01-2026
- Rate includes utilities, building services and property expenses
- Fully Built-Out as Standard Office
- Mostly Open Floor Plan Layout
- Fits 46 - 146 People
- 14 Private Offices
- 3 Conference Rooms
- Space is in Excellent Condition
4250 Executive Sq - 7th Floor - Ste 780
| Size | 3,167 SF |
| Term | Negotiable |
| Rental Rate | $46.20 /SF/YR |
| Space Use | Office |
| Build-Out | Full Build-Out |
| Available | August 01, 2026 |
Call to Show.
- Rate includes utilities, building services and property expenses
- Fully Built-Out as Standard Office
- Mostly Open Floor Plan Layout
- Fits 8 - 26 People
- 10 Private Offices
- 1 Conference Room
- Space is in Excellent Condition
4250 Executive Sq - 8th Floor - Ste 850
| Size | 2,406 SF |
| Term | Negotiable |
| Rental Rate | $48.60 /SF/YR |
| Space Use | Office |
| Build-Out | Full Build-Out |
| Available | August 01, 2026 |
Call to show.
- Rate includes utilities, building services and property expenses
- Fully Built-Out as Standard Office
- Mostly Open Floor Plan Layout
- Fits 7 - 20 People
- 5 Private Offices
- Space is in Excellent Condition
4275 Executive Sq - 2nd Floor - Ste 240
| Size | 2,352 SF |
| Term | Negotiable |
| Rental Rate | $45.00 /SF/YR |
| Space Use | Office |
| Build-Out | Full Build-Out |
| Available | August 01, 2026 |
Flex+®, Call to Show/Under Construction
- Rate includes utilities, building services and property expenses
- Fully Built-Out as Standard Office
- Mostly Open Floor Plan Layout
- Fits 6 - 19 People
- 3 Private Offices
- Space is in Excellent Condition
4275 Executive Sq - 3rd Floor - Ste 325
| Size | 1,344 SF |
| Term | Negotiable |
| Rental Rate | $44.40 /SF/YR |
| Space Use | Office |
| Build-Out | Full Build-Out |
| Available | Now |
- Rate includes utilities, building services and property expenses
- Fully Built-Out as Standard Office
- Fits 4 - 11 People
- 4 Private Offices
- Space is in Excellent Condition
4275 Executive Sq - 3rd Floor - Ste 380
| Size | 2,391 SF |
| Term | Negotiable |
| Rental Rate | $44.40 /SF/YR |
| Space Use | Office |
| Build-Out | Full Build-Out |
| Available | Now |
Flex+®, Call to Show/Under Construction
- Rate includes utilities, building services and property expenses
- Fully Built-Out as Standard Office
- Fits 6 - 20 People
- 4 Private Offices
- Space is in Excellent Condition
4275 Executive Sq - 4th Floor - Ste 410
| Size | 2,449 SF |
| Term | Negotiable |
| Rental Rate | $45.00 /SF/YR |
| Space Use | Office |
| Build-Out | Full Build-Out |
| Available | Now |
- Rate includes utilities, building services and property expenses
- Fully Built-Out as Standard Office
- Mostly Open Floor Plan Layout
- Fits 7 - 20 People
- 4 Private Offices
- 1 Conference Room
- Space is in Excellent Condition
- Can be combined with additional space(s) for up to 4,441 SF of adjacent space
4275 Executive Sq - 4th Floor - Ste 420
| Size | 1,992 SF |
| Term | Negotiable |
| Rental Rate | $53.40 /SF/YR |
| Space Use | Office |
| Build-Out | Full Build-Out |
| Available | January 01, 2027 |
Call to show.
- Rate includes utilities, building services and property expenses
- Fully Built-Out as Standard Office
- Mostly Open Floor Plan Layout
- Fits 5 - 16 People
- 4 Private Offices
- 1 Conference Room
- Space is in Excellent Condition
- Can be combined with additional space(s) for up to 4,441 SF of adjacent space
4275 Executive Sq - 7th Floor - Ste 730
| Size | 2,292 SF |
| Term | Negotiable |
| Rental Rate | $47.40 /SF/YR |
| Space Use | Office |
| Build-Out | Full Build-Out |
| Available | August 01, 2026 |
Flex+®, Call to Show, Under Construction
- Rate includes utilities, building services and property expenses
- Fully Built-Out as Standard Office
- Mostly Open Floor Plan Layout
- Fits 6 - 19 People
- 4 Private Offices
- Space is in Excellent Condition
4275 Executive Sq - 8th Floor - Ste 800
| Size | 10,425 SF |
| Term | Negotiable |
| Rental Rate | $45.60 /SF/YR |
| Space Use | Office |
| Build-Out | Full Build-Out |
| Available | Now |
- Rate includes utilities, building services and property expenses
- Fully Built-Out as Standard Office
- Open Floor Plan Layout
- Fits 27 - 84 People
- 14 Private Offices
- 2 Conference Rooms
- Space is in Excellent Condition
4275 Executive Sq - 8th Floor - Ste 825
| Size | 4,063 SF |
| Term | Negotiable |
| Rental Rate | $48.60 /SF/YR |
| Space Use | Office |
| Build-Out | Full Build-Out |
| Available | August 01, 2026 |
Flex+® Call to Show/Under Construction
- Rate includes utilities, building services and property expenses
- Fully Built-Out as Standard Office
- Open Floor Plan Layout
- Fits 11 - 33 People
- 3 Private Offices
- 1 Conference Room
- Space is in Excellent Condition
Park Overview
Elevate your business at the award-winning La Jolla Square, a distinctive workplace community in the heart of La Jolla UTC,San Diego’s most prestigious business district. Dramatic granite entrances and exclusive amenities designed for today’s dynamic workforce help your business recruit and retain top talent.
- Freeway Visibility
- Accent Lighting
- Air Conditioning
Presented by
La Jolla Square | La Jolla, CA 92037
Hmm, there seems to have been an error sending your message. Please try again.
Thanks! Your message was sent.








































