Log In/Sign Up
Your email has been sent.
4286-4292 Hamrick Rd
Central Point, OR 97502
Hamrick Corners · Land For Sale
·
1.93 AC


EXECUTIVE SUMMARY
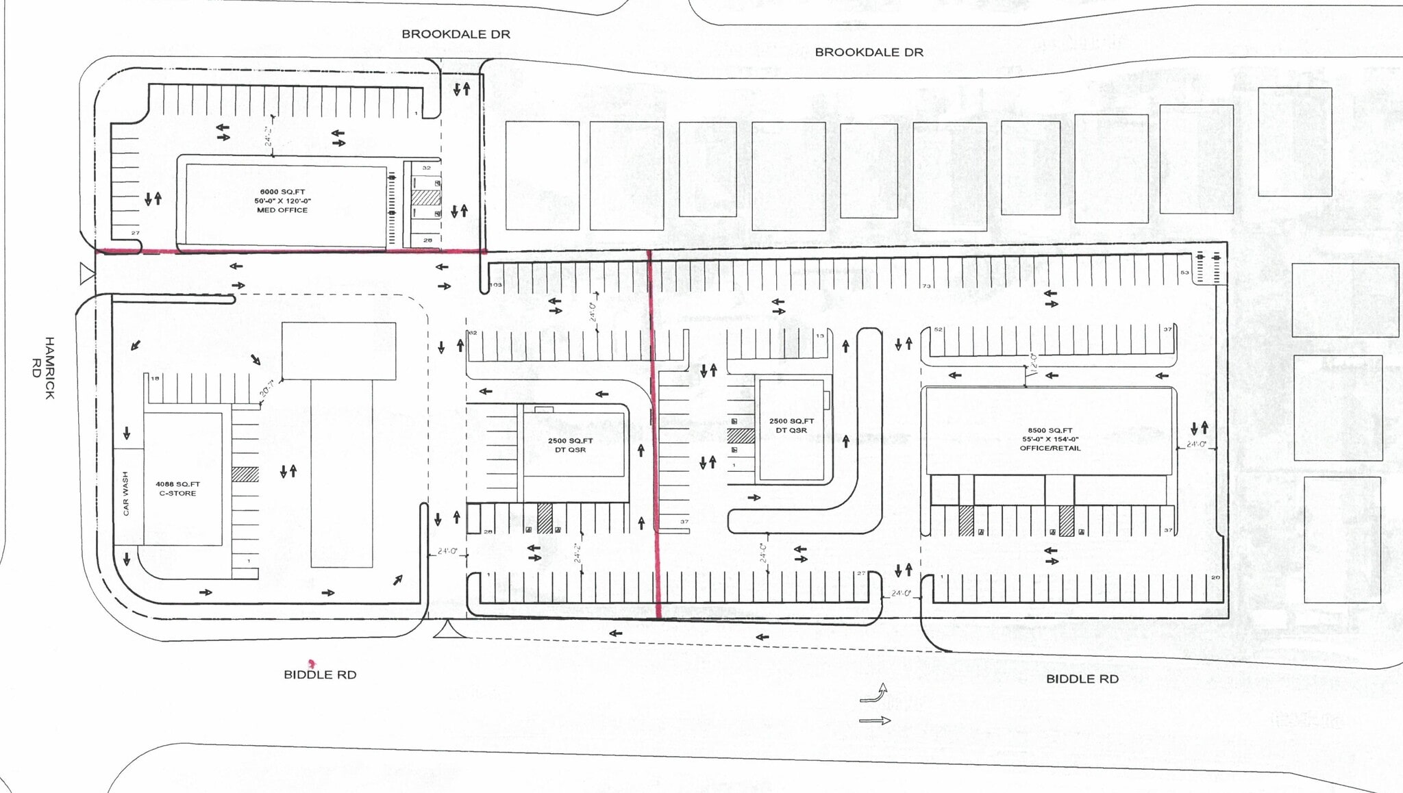
Owners have conducted a TIA to justify a left in off Biddle and a full movement at Brookdale off Hamrick. TL 800 needs to be annexed. Partial sale would require a lot line adjustment.
Property is 1st tax lot off the NE corner of Biddle/Pine & Hamrick - to the North.
Property is 1st tax lot off the NE corner of Biddle/Pine & Hamrick - to the North.
PROPERTY FACTS
| Sale Type | Investment or Owner User | Property Subtype | Commercial |
| No. Lots | 1 | Total Lot Size | 1.93 AC |
| Property Type | Land | ||
| Zoning | C-4 | ||
| Sale Type | Investment or Owner User |
| No. Lots | 1 |
| Property Type | Land |
| Property Subtype | Commercial |
| Total Lot Size | 1.93 AC |
| Zoning | C-4 |
1 LOT AVAILABLE
Lot 500-800
| Price | $1,010,000 | Lot Size | 1.93 AC |
| Price Per AC | $523,316.06 |
| Price | $1,010,000 |
| Price Per AC | $523,316.06 |
| Lot Size | 1.93 AC |
PROPERTY TAXES
| Parcel Numbers | Improvements Assessment | $108,240 | |
| Land Assessment | $161,840 | Total Assessment | $187,410 |
PROPERTY TAXES
Parcel Numbers
Land Assessment
$161,840
Improvements Assessment
$108,240
Total Assessment
$187,410
1 of 3
VIDEOS
MATTERPORT 3D EXTERIOR
MATTERPORT 3D TOUR
PHOTOS
STREET VIEW
STREET
MAP
