Your email has been sent.
Highlights
- Adjacent to 10,000 SF Maydan Market, home to Michelin-starred restaurant Maydan, Compass Rose and several smaller format operators
- Existing Type 47 CUB (2am daily) in place
- Plenty of street parking during the day and valet service in the evening
- Directly across from neighborhood favorite Highly Likely Cafe
- Grease trap, HVAC, ventiliation shaft cutout, ample power in place
Space Availability (1)
Display Rental Rate as
- Space
- Size
- Ceiling
- Term
- Rental Rate
- Rent Type
| Space | Size | Ceiling | Term | Rental Rate | Rent Type | |
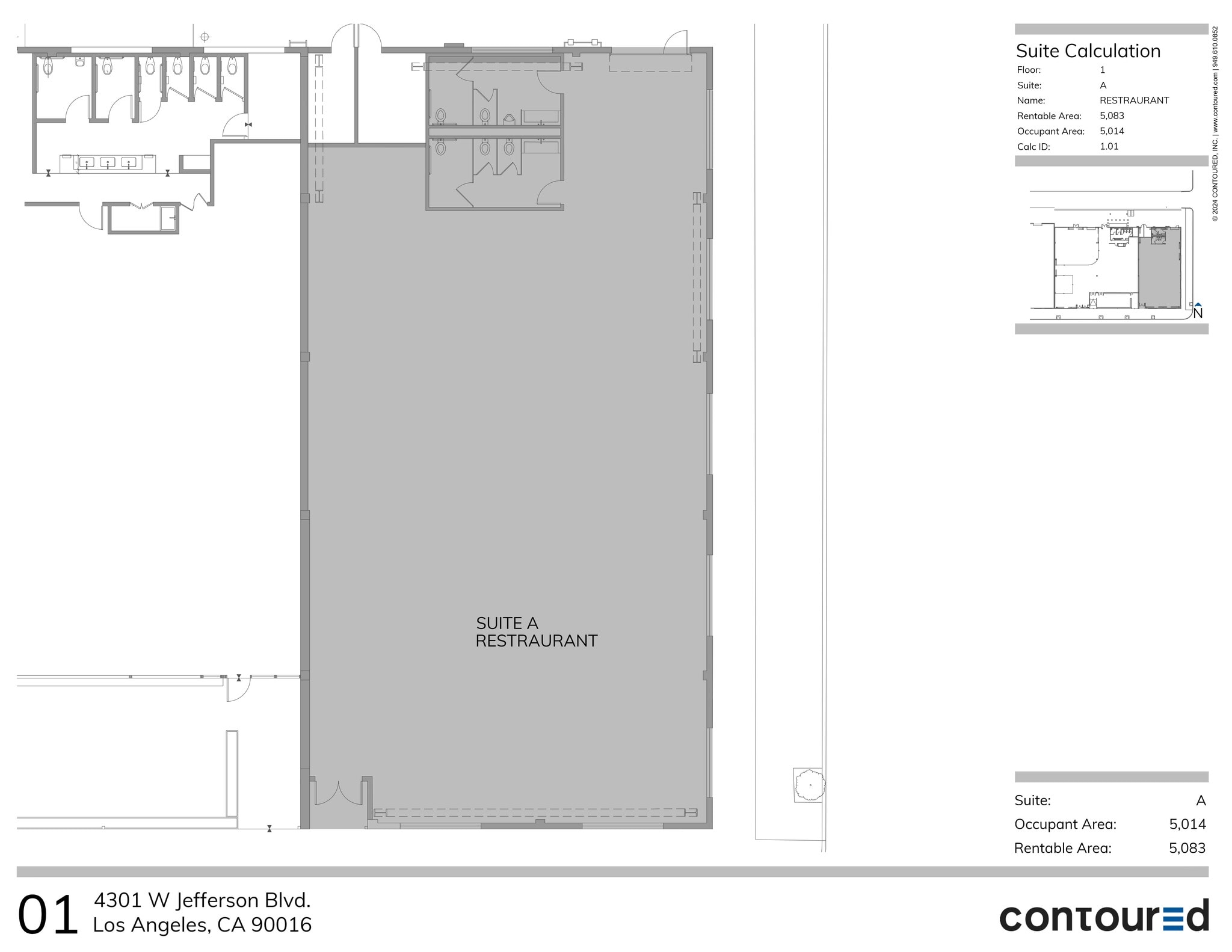
| 1st Floor | 5,083 SF | 15’ - 18’ | Negotiable | Upon Request Upon Request Upon Request Upon Request | TBD |
1st Floor
Email / call broker for economics.
- Central Air and Heating
- Private Restrooms
- Exposed Ceiling
- Finished Ceilings: 15’ - 18’
- Adjacent to a 10,000 SF Maydan Market
- Type 47 CUB (2am daily)
- Grease trap, HVAC, and vent cut-out installed
- Street parking + valet service
- Short drive to Culver City, DTLA, and K-town
- Directly across from Highly Likely Cafe
Rent Types
The rent amount and type that the tenant (lessee) will be responsible to pay to the landlord (lessor) throughout the lease term is negotiated prior to both parties signing a lease agreement. The rent type will vary depending upon the services provided. For example, triple net rents are typically lower than full service rents due to additional expenses the tenant is required to pay in addition to the base rent. Contact the listing broker for a full understanding of any associated costs or additional expenses for each rent type.
1. Full Service: A rental rate that includes normal building standard services as provided by the landlord within a base year rental.
2. Double Net (NN): Tenant pays for only two of the building expenses; the landlord and tenant determine the specific expenses prior to signing the lease agreement.
3. Triple Net (NNN): A lease in which the tenant is responsible for all expenses associated with their proportional share of occupancy of the building.
4. Modified Gross: Modified Gross is a general type of lease rate where typically the tenant will be responsible for their proportional share of one or more of the expenses. The landlord will pay the remaining expenses. See the below list of common Modified Gross rental rate structures: 4. Plus All Utilities: A type of Modified Gross Lease where the tenant is responsible for their proportional share of utilities in addition to the rent. 4. Plus Cleaning: A type of Modified Gross Lease where the tenant is responsible for their proportional share of cleaning in addition to the rent. 4. Plus Electric: A type of Modified Gross Lease where the tenant is responsible for their proportional share of the electrical cost in addition to the rent. 4. Plus Electric & Cleaning: A type of Modified Gross Lease where the tenant is responsible for their proportional share of the electrical and cleaning cost in addition to the rent. 4. Plus Utilities and Char: A type of Modified Gross Lease where the tenant is responsible for their proportional share of the utilities and cleaning cost in addition to the rent. 4. Industrial Gross: A type of Modified Gross lease where the tenant pays one or more of the expenses in addition to the rent. The landlord and tenant determine these prior to signing the lease agreement.
5. Tenant Electric: The landlord pays for all services and the tenant is responsible for their usage of lights and electrical outlets in the space they occupy.
6. Negotiable or Upon Request: Used when the leasing contact does not provide the rent or service type.
7. TBD: To be determined; used for buildings for which no rent or service type is known, commonly utilized when the buildings are not yet built.
Site Plan
Select Tenants at 4301 W Jefferson Blvd, Los Angeles, CA 90016
- Tenant
- Description
- US Locations
- Reach
- Maydan Market
- Accommodation and Food Services
- -
- -
| Tenant | Description | US Locations | Reach |
| Maydan Market | Accommodation and Food Services | - | - |
Property Facts
| Total Space Available | 5,083 SF | Gross Leasable Area | 15,500 SF |
| Property Type | Retail | Year Built | 2024 |
| Total Space Available | 5,083 SF |
| Property Type | Retail |
| Gross Leasable Area | 15,500 SF |
| Year Built | 2024 |
About the Property
In the past 5 years, West Jefferson Blvd has seen an influx of creative companies such as Mother, Somesuch, Stink Films, and many more. Michelin-starred Maydan restaurant from Washington DC is open within the 10,000 SF Maydan Market adjacent to the subject space. This is an amazing opportunity for a restaurant operator to open shop in an underserved community while also being within a short drive from dense urban neighborhoods such as Culver City , DTLA, and Koreatown. Property has significant improvements in place and a ZA approving for restaurant with a full line of alcohol sales. Grease trap, sprinklers, HVAC are in place. https://www.maydanmarket.com/
Nearby Major Retailers
Presented by
4301 W Jefferson Blvd
Hmm, there seems to have been an error sending your message. Please try again.
Thanks! Your message was sent.







