Log In/Sign Up
Your email has been sent.
Investment Highlights
- Adjacent To Coastal Carolina Orthodontics.
- Approximately 15,600 Vehicles Per Day.
- Swinson Park Carteret Health Care (Hospital) Is Approximately 1 Mile away.
Executive Summary
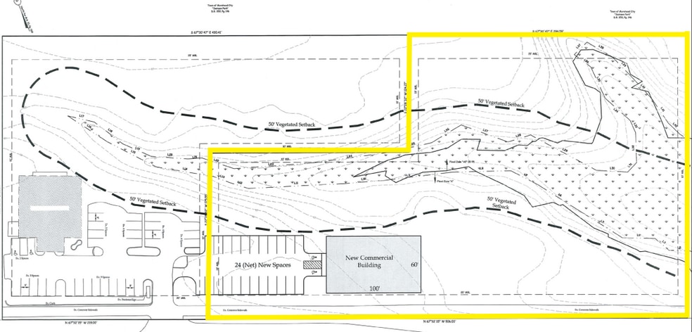
Located at 4324 Bridges Street in Morehead City, NC, this ±2.88-acre Highway Commercial site offers ±0.77 buildable acres with utilities available and excellent visibility along a corridor with approximately 15,600 vehicles per day. Zoned HC and confirmed by NCDEQ for on-site stream features, the property is adjacent to Coastal Carolina Orthodontics and Swinson Park, and just one mile from Carteret Health Care Hospital. With strong 2025 demographic projections—including a 3-mile population of over 14,000 and average household incomes exceeding $100,000—this site is ideal for commercial development. Offered at $400,000.
Property Facts
| Price | $400,000 | Property Subtype | Commercial |
| Sale Type | Investment | Proposed Use | |
| No. Lots | 1 | Total Lot Size | 2.87 AC |
| Property Type | Land | Opportunity Zone |
Yes
|
| Zoning | HC - Highway Commercial | ||
| Price | $400,000 |
| Sale Type | Investment |
| No. Lots | 1 |
| Property Type | Land |
| Property Subtype | Commercial |
| Proposed Use | |
| Total Lot Size | 2.87 AC |
| Opportunity Zone |
Yes |
| Zoning | HC - Highway Commercial |
1 Lot Available
Lot
| Price | $400,000 | Lot Size | 2.87 AC |
| Price Per AC | $139,268.20 |
| Price | $400,000 |
| Price Per AC | $139,268.20 |
| Lot Size | 2.87 AC |
Approximately 2.88 acres, there are some wetlands on the Property, which were confirmed by NCDEQ in 2023. The result is approximately .77 acres of buildable land.
1 1
Fairly walkable
40/100
Exceptionally drivable
100/100
Fairly bikeable
40/100
Property Taxes
| Parcel Number | 6366.16.84.6448000 | Improvements Assessment | $0 |
| Land Assessment | $419,378 | Total Assessment | $419,378 |
Property Taxes
Parcel Number
6366.16.84.6448000
Land Assessment
$419,378
Improvements Assessment
$0
Total Assessment
$419,378
1 of 3
Videos
Matterport 3D Exterior
Matterport 3D Tour
Photos
Street View
Street
Map
1 of 1
Presented by
4324 Bridges St
Already a member? Log In
Hmm, there seems to have been an error sending your message. Please try again.
Thanks! Your message was sent.


