Log In/Sign Up
Your email has been sent.
Highlights
- Ample parking
- .29 Ac of parking lot
- Freezer throughout
Features
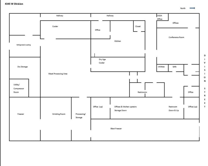
Clear Height
11’6”
Drive In Bays
1
All Available Space(1)
Display Rental Rate as
- Space
- Size
- Term
- Rental Rate
- Space Use
- Build-Out
- Available
Available for sale and lease
- 1 Drive Bay
- Ceiling Height 10'-12'
- Freezer/Cooler throughout
- Freezer Space
- USDA buildout
- Ample parking
| Space | Size | Term | Rental Rate | Space Use | Build-Out | Available |
| 1st Floor | 12,500 SF | Negotiable | Upon Request Upon Request Upon Request Upon Request | Industrial | Full Build-Out | Now |
1st Floor
| Size |
| 12,500 SF |
| Term |
| Negotiable |
| Rental Rate |
| Upon Request Upon Request Upon Request Upon Request |
| Space Use |
| Industrial |
| Build-Out |
| Full Build-Out |
| Available |
| Now |
1 of 1
Videos
Matterport 3D Exterior
Matterport 3D Tour
Photos
Street View
Street
Map
1st Floor
| Size | 12,500 SF |
| Term | Negotiable |
| Rental Rate | Upon Request |
| Space Use | Industrial |
| Build-Out | Full Build-Out |
| Available | Now |
Available for sale and lease
- 1 Drive Bay
- Freezer Space
- Ceiling Height 10'-12'
- USDA buildout
- Freezer/Cooler throughout
- Ample parking
Refrigeration/Cold Storage Facility Facts
Building Size
12,500 SF
Lot Size
0.63 AC
Year Built
1940
Heating
Gas
Power Supply
Amps: 400-800 Phase: 3
Zoning
C1-1
Select Tenants
- Floor
- Tenant Name
- Industry
- 1st
- Standard Provision Co
- Retailer
1 1
Very walkable
80/100
Fairly drivable
50/100
Good public transit
60/100
Moderately bikeable
60/100
1 of 9
Videos
Matterport 3D Exterior
Matterport 3D Tour
Photos
Street View
Street
Map
1 of 1





