Your email has been sent.
Highlights
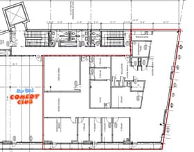
- 2nd floor can be leased out in full or option to subdivide, see space notes for additional divisibility details.
- Join a community of creative office and retail end users from content publishers to delicious F&B
- Commercial fronting on 12th Street Plaza, creating additional in-door/out-door offerings for employees
- Floor to ceiling windows flood the space with natural light and private outdoor terraces for 2nd floor tenants
- Centrally located in LIC- 10 minute walk (or less) to Court Square, Queens Plaza and Hunters Point
- Blocks away from Court Square subway station
Space Availability (2)
Display Rental Rate as
- Space
- Size
- Term
- Rental Rate
- Rent Type
| Space | Size | Term | Rental Rate | Rent Type | ||
| 1st Floor | 1,275 SF | Negotiable | Upon Request Upon Request Upon Request Upon Request | TBD | ||
| 2nd Floor | 200-5,500 SF | Negotiable | Upon Request Upon Request Upon Request Upon Request | TBD |
1st Floor
Vanilla box retail space fronting on 12th Street public plaza. Adjacent to a mix of retailers including Focal Point Brewery, Movers Bodega, Sombremesa, Artstrong, Sit Still, Rang, Otis and Finn, Ninth Street Espresso, etc. Space is currently utilized as a beautiful art gallery with a private restroom, loading dock access and new HVAC. Please inquire for additional information.
- Fully Built-Out as Standard Retail Space
- Located in-line with other retail
- Central Air Conditioning
- Private Restrooms
- High Ceilings
- Wheelchair Accessible
2nd Floor
Fully built office space with flexible subdivisions. Floor to ceiling windows with views of the 59th Street Bridge and Downtown Court Square. Multiple private outdoor balconies. Freight/passenger elevator access. Loading and unloading access. Kitchenette and bathrooms. Butt-glazed wall partitions at offices and conference rooms. Brand new HVAC system. Additional subdivided option of: 2,000 SF of private 1-20 person office/retail suites available, divisible to 200 SF. Fully finished with ability to include furniture. Please inquire for additional information
- Fully Built-Out as Standard Retail Space
- Located in-line with other retail
- Central Air Conditioning
- Security System
- High Ceilings
- Exposed Ceiling
- Wheelchair Accessible
Rent Types
The rent amount and type that the tenant (lessee) will be responsible to pay to the landlord (lessor) throughout the lease term is negotiated prior to both parties signing a lease agreement. The rent type will vary depending upon the services provided. For example, triple net rents are typically lower than full service rents due to additional expenses the tenant is required to pay in addition to the base rent. Contact the listing broker for a full understanding of any associated costs or additional expenses for each rent type.
1. Full Service: A rental rate that includes normal building standard services as provided by the landlord within a base year rental.
2. Double Net (NN): Tenant pays for only two of the building expenses; the landlord and tenant determine the specific expenses prior to signing the lease agreement.
3. Triple Net (NNN): A lease in which the tenant is responsible for all expenses associated with their proportional share of occupancy of the building.
4. Modified Gross: Modified Gross is a general type of lease rate where typically the tenant will be responsible for their proportional share of one or more of the expenses. The landlord will pay the remaining expenses. See the below list of common Modified Gross rental rate structures: 4. Plus All Utilities: A type of Modified Gross Lease where the tenant is responsible for their proportional share of utilities in addition to the rent. 4. Plus Cleaning: A type of Modified Gross Lease where the tenant is responsible for their proportional share of cleaning in addition to the rent. 4. Plus Electric: A type of Modified Gross Lease where the tenant is responsible for their proportional share of the electrical cost in addition to the rent. 4. Plus Electric & Cleaning: A type of Modified Gross Lease where the tenant is responsible for their proportional share of the electrical and cleaning cost in addition to the rent. 4. Plus Utilities and Char: A type of Modified Gross Lease where the tenant is responsible for their proportional share of the utilities and cleaning cost in addition to the rent. 4. Industrial Gross: A type of Modified Gross lease where the tenant pays one or more of the expenses in addition to the rent. The landlord and tenant determine these prior to signing the lease agreement.
5. Tenant Electric: The landlord pays for all services and the tenant is responsible for their usage of lights and electrical outlets in the space they occupy.
6. Negotiable or Upon Request: Used when the leasing contact does not provide the rent or service type.
7. TBD: To be determined; used for buildings for which no rent or service type is known, commonly utilized when the buildings are not yet built.
Property Facts
| Total Space Available | 6,775 SF | Property Subtype | Storefront Retail/Office |
| Min. Divisible | 200 SF | Gross Leasable Area | 30,000 SF |
| Property Type | Retail | Year Built | 2022 |
| Total Space Available | 6,775 SF |
| Min. Divisible | 200 SF |
| Property Type | Retail |
| Property Subtype | Storefront Retail/Office |
| Gross Leasable Area | 30,000 SF |
| Year Built | 2022 |
About the Property
Existing 2-story industrial building with gut-renovation to retail and office space recently completed. Oversized elevator. 14'+ ceilings at ground floor, 12'+ ceilings at 2nd floor. Ability to combine two (2) spaces into one (1) space. Please inquire for additional details.
Nearby Major Retailers
Presented by
4346 12th St
Hmm, there seems to have been an error sending your message. Please try again.
Thanks! Your message was sent.









