Your email has been sent.
NSA East Bank 4400 Dauphine St 32,006 SF of Retail Space Available in New Orleans, LA 70146

Highlights
- Large Grocery/ Retail Opporunity Part of a Mixed Use Building Project
- Approximately 32,000 square feet of ground-floor retail space available, with flexible configurations possible.
- Close proximity to the French Quarter, Downtown New Orleans, and major regional transportation routes.
- Located within Phase I of New Orleans’ NSA Bywater redevelopment, blending residential and neighborhood retail.
- Designed to accommodate a grocery anchor alongside additional retail tenants for enhanced consumer draw.
All Available Space(1)
Display Rental Rate as
- Space
- Size
- Term
- Rental Rate
- Space Use
- Build-Out
- Available
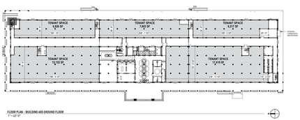
NSA Bywater Project – Phase I Phase I of the NSA Bywater Project is a large-scale mixed-use redevelopment located in the Bywater, anchored by affordable housing, ground-floor retail, and structured parking. The project is part of the broader redevelopment of the former Naval Support Activity site and represents a significant public-private investment in the neighborhood. Project Overview – Phase I Residential: 294 units of high-quality affordable housing Retail: Up to approximately 32,000 square feet of ground-floor retail space Parking: Over 900 total parking spaces planned across the project Configuration: Mixed-use development designed to support residential, neighborhood-serving retail, and community activity. The ground-floor retail is designed to accommodate a range of neighborhood-serving uses. The project is expected to include a grocery anchor, along with additional retail tenants, to serve both on-site residents and the surrounding Bywater and riverfront communities. Market Significance Phase I is intended to serve as a catalytic development within the larger NSA East Bank redevelopment, establishing momentum for future phases and long-term neighborhood revitalization.
| Space | Size | Term | Rental Rate | Space Use | Build-Out | Available |
| Ground | 32,006 SF | Negotiable | $13.00 /SF/YR $1.08 /SF/MO $416,078 /YR $34,673 /MO | Retail | - | March 01, 2028 |
Ground
| Size |
| 32,006 SF |
| Term |
| Negotiable |
| Rental Rate |
| $13.00 /SF/YR $1.08 /SF/MO $416,078 /YR $34,673 /MO |
| Space Use |
| Retail |
| Build-Out |
| - |
| Available |
| March 01, 2028 |
Ground
| Size | 32,006 SF |
| Term | Negotiable |
| Rental Rate | $13.00 /SF/YR |
| Space Use | Retail |
| Build-Out | - |
| Available | March 01, 2028 |
NSA Bywater Project – Phase I Phase I of the NSA Bywater Project is a large-scale mixed-use redevelopment located in the Bywater, anchored by affordable housing, ground-floor retail, and structured parking. The project is part of the broader redevelopment of the former Naval Support Activity site and represents a significant public-private investment in the neighborhood. Project Overview – Phase I Residential: 294 units of high-quality affordable housing Retail: Up to approximately 32,000 square feet of ground-floor retail space Parking: Over 900 total parking spaces planned across the project Configuration: Mixed-use development designed to support residential, neighborhood-serving retail, and community activity. The ground-floor retail is designed to accommodate a range of neighborhood-serving uses. The project is expected to include a grocery anchor, along with additional retail tenants, to serve both on-site residents and the surrounding Bywater and riverfront communities. Market Significance Phase I is intended to serve as a catalytic development within the larger NSA East Bank redevelopment, establishing momentum for future phases and long-term neighborhood revitalization.
Property Facts
| Total Space Available | 32,006 SF | Apartment Style | Mid-Rise |
| No. Units | 294 | Building Size | 300,000 SF |
| Property Type | Multifamily | Year Built | 2028 |
| Property Subtype | Apartment | Construction Status | Under Construction |
| Total Space Available | 32,006 SF |
| No. Units | 294 |
| Property Type | Multifamily |
| Property Subtype | Apartment |
| Apartment Style | Mid-Rise |
| Building Size | 300,000 SF |
| Year Built | 2028 |
| Construction Status | Under Construction |
About the Property
4400 Dauphine Street is part of a multi-phase redevelopment of the former Naval Support Activity site in the Bywater neighborhood of New Orleans. The project includes substantial residential capacity, structured parking, and ground-floor retail designed for neighborhood-serving uses. The planned configuration integrates living, shopping, and community-focused spaces. The site is situated near Downtown New Orleans and the French Quarter with connectivity to area roadways, public transportation options, and neighborhood amenities.
Presented by
NSA East Bank | 4400 Dauphine St
Hmm, there seems to have been an error sending your message. Please try again.
Thanks! Your message was sent.



