Log In/Sign Up
Enter your email to login or create a free account
This feature is unavailable at the moment.
We apologize, but the feature you are trying to access is currently unavailable. We are aware of this issue and our team is working hard to resolve the matter.
Please check back in a few minutes. We apologize for the inconvenience.
- LoopNet Team
This Land Property is no longer advertised on LoopNet.com.
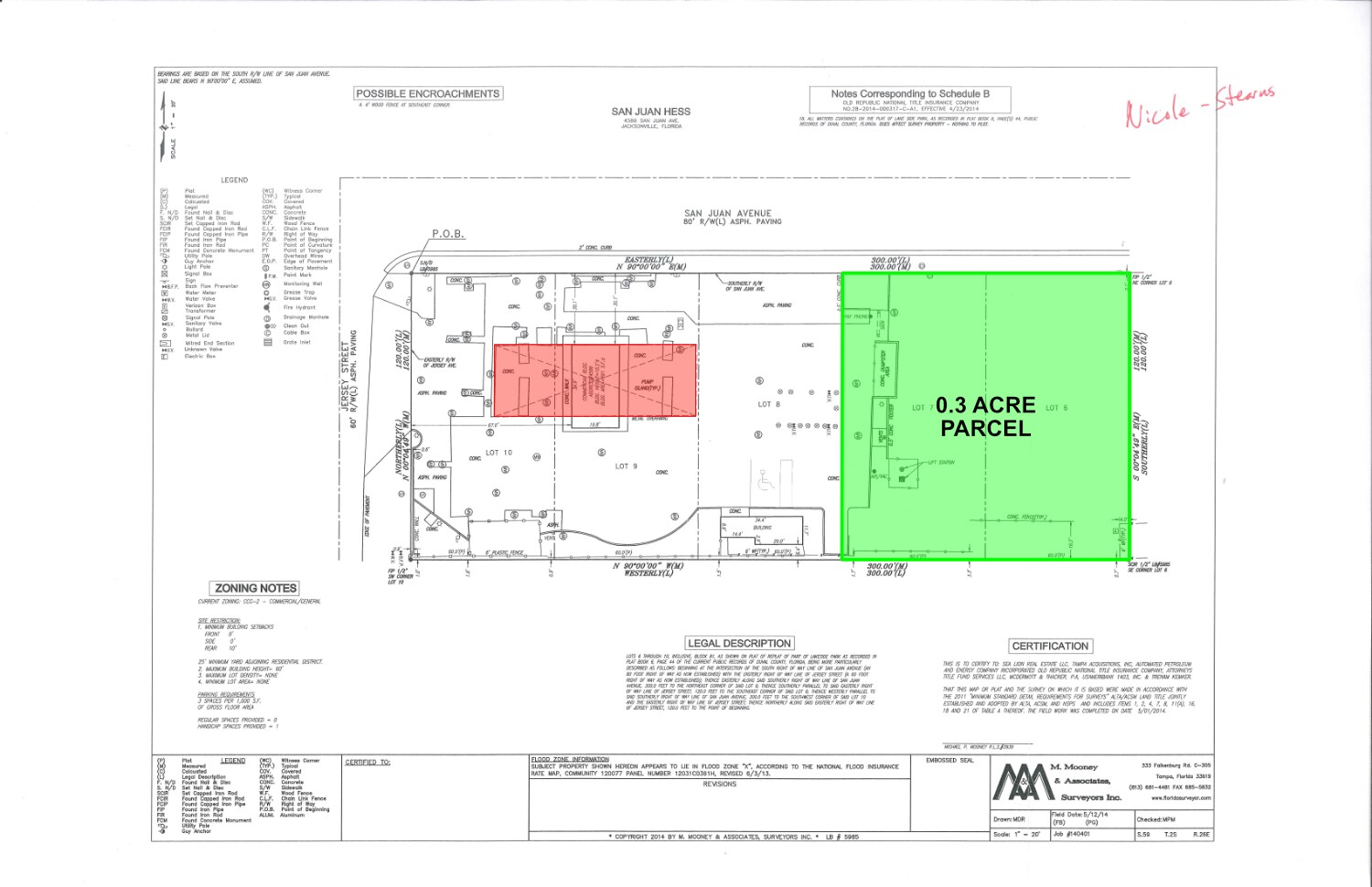
4586 San Juan Ave
Jacksonville, FL 32210
Jacksonville Land · Land For Sale
·
0.30 AC

Investment Highlights
- For Sale: $339,900 or build-to-suit
- Strategic location with strong consumer demand: population of 78,900 live within 3-mile radius of the property.
- High traffic and excellent accessibility: passed by 17,000 daily drivers.
- Ideal for QSR, Coffee, or Quick Lube
- Surrounded by national retailers and thriving businesses.
Property Facts
| Property Type | Land | Total Lot Size | 0.30 AC |
| Property Subtype | Commercial | No. Stories | 1 |
| Proposed Use | Retail | ||
| Zoning | CCG-2 - Commercial community general allows for commercial use including recreational facilities and entertainment venues. | ||
| Property Type | Land |
| Property Subtype | Commercial |
| Proposed Use | Retail |
| Total Lot Size | 0.30 AC |
| No. Stories | 1 |
| Zoning | CCG-2 - Commercial community general allows for commercial use including recreational facilities and entertainment venues. |
Description
0.3-acre commercial pad site positioned next to a new Avis/Budget car rental property (under construction)
Property Taxes
| Parcel Number | 093797-0000 | Improvements Assessment | $109,504 |
| Land Assessment | $474,858 | Total Assessment | $584,362 |
Property Taxes
Parcel Number
093797-0000
Land Assessment
$474,858
Improvements Assessment
$109,504
Total Assessment
$584,362
Listing ID: 35540578
Date on Market: 4/17/2025
Last Updated:
Address: 4586 San Juan Ave, Jacksonville, FL 32210
The Lakeshore Land Property at 4586 San Juan Ave, Jacksonville, FL 32210 is no longer being advertised on LoopNet.com. Contact the broker for information on availability.
LAND PROPERTIES IN NEARBY NEIGHBORHOODS
- West Side Commercial Land Parcels
- Central Jacksonville Commercial Land Parcels
- Downtown Jacksonville Commercial Land Parcels
- Jacksonville Heights West Commercial Land Parcels
- Cisco Gardens Commercial Land Parcels
- Normandy Estates Commercial Land Parcels
- Whitehouse Commercial Land Parcels
- Ortega Hills Commercial Land Parcels
- Jacksonville Farms/Terrace Commercial Land Parcels
- Marietta Commercial Land Parcels
- McGirts Creek Commercial Land Parcels
- Jacksonville Heights Commercial Land Parcels
- Cedar Hills Estates Commercial Land Parcels
- Crystal Springs Commercial Land Parcels
- Commonwealth Commercial Land Parcels
NEARBY LISTINGS
- 622 College St, Jacksonville FL
- 8275 103rd St, Jacksonville FL
- 0 Lenox Ave, Jacksonville FL
- 2735 St Johns Bluff S rd, Jacksonville FL
- 4580 San Juan Avenue Ave, Jacksonville FL
- 0 Commonwealth Ave, Jacksonville FL
- 6491 103rd St, Jacksonville FL
- 4527 Fennell Rd, Jacksonville FL
- 0 Normandy Boulevard, Jacksonville FL
- 7268 Morse Ave, Jacksonville FL
- 8426-8446 Devoe St, Jacksonville FL
- 6336 Park St, Jacksonville FL
- 355 Dennard Ave, Jacksonville FL
- 3800 N Old Middleburg Rd, Jacksonville FL
- 624 Duval, Jacksonville FL
1 of 1
Videos
Matterport 3D Exterior
Matterport 3D Tour
Photos
Street View
Street
Map

Link copied
Your LoopNet account has been created!
Thank you for your feedback.
Please Share Your Feedback
We welcome any feedback on how we can improve LoopNet to better serve your needs.X
{{ getErrorText(feedbackForm.starRating, "rating") }}
255 character limit ({{ remainingChars() }} charactercharacters remainingover)
{{ getErrorText(feedbackForm.msg, "rating") }}
{{ getErrorText(feedbackForm.fname, "first name") }}
{{ getErrorText(feedbackForm.lname, "last name") }}
{{ getErrorText(feedbackForm.phone, "phone number") }}
{{ getErrorText(feedbackForm.phonex, "phone extension") }}
{{ getErrorText(feedbackForm.email, "email address") }}
You can provide feedback any time using the Help button at the top of the page.