Log In/Sign Up
Your email has been sent.
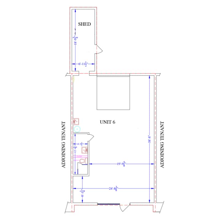
4623 Manilla Rd SE
Calgary, AB T2G 4B7
Industrial Property For Lease
·
1,014 SF

Features
Clear Height
12’
Drive In Bays
6
Standard Parking Spaces
15
Warehouse Facility Facts
Building Size
9,826 SF
Lot Size
0.98 AC
Year Built
1996
Construction
Masonry
Power Supply
Amps: 100
Zoning
I-G - Industrial-General
1 of 2
Videos
Matterport 3D Exterior
Matterport 3D Tour
Photos
Street View
Street
Map
