Your email has been sent.
All Available Spaces(4)
Display Rental Rate as
- Space
- Size
- Term
- Rental Rate
- Space Use
- Condition
- Available
This space has three windowed office, a pantry, a private restroom, two conference room (one with wet bar), reception, and a large windowed work area.
- Listed lease rate plus proportional share of electrical cost
- Mostly Open Floor Plan Layout
- Kitchen
- Partially Built-Out as Standard Office
- 3 Private Offices
- Private Restrooms
Move in ready. Fully built space. Suite is ready to go with five windowed office, conference room, pantry, open work area, storage, and reception.
- Listed lease rate plus proportional share of electrical cost
- Mostly Open Floor Plan Layout
- 1 Conference Room
- Partially Built-Out as Standard Office
- 5 Private Offices
- Reception Area
Fully built space. Move in ready.
- Listed lease rate plus proportional share of electrical cost
- Mostly Open Floor Plan Layout
- 1 Conference Room
- Central Air Conditioning
- Atrium
- Fully Built-Out as Standard Office
- 14 Private Offices
- Space is in Excellent Condition
- Corner Space
- Food Service
Raw Space
- Listed lease rate plus proportional share of electrical cost
- Natural Light
- Mostly Open Floor Plan Layout
| Space | Size | Term | Rental Rate | Space Use | Condition | Available |
| 2nd Floor, Ste 205 | 4,500 SF | 3-10 Years | Upon Request Upon Request Upon Request Upon Request | Office/Medical | Partial Build-Out | Now |
| 2nd Floor, Ste 280 | 2,912 SF | 3-10 Years | Upon Request Upon Request Upon Request Upon Request | Office/Medical | Partial Build-Out | Now |
| 3rd Floor, Ste 340 | 4,993 SF | 3-10 Years | Upon Request Upon Request Upon Request Upon Request | Office/Medical | Full Build-Out | Now |
| 3rd Floor, Ste 390 | 1,996 SF | 3-10 Years | Upon Request Upon Request Upon Request Upon Request | Office | Shell Space | Now |
2nd Floor, Ste 205
| Size |
| 4,500 SF |
| Term |
| 3-10 Years |
| Rental Rate |
| Upon Request Upon Request Upon Request Upon Request |
| Space Use |
| Office/Medical |
| Condition |
| Partial Build-Out |
| Available |
| Now |
2nd Floor, Ste 280
| Size |
| 2,912 SF |
| Term |
| 3-10 Years |
| Rental Rate |
| Upon Request Upon Request Upon Request Upon Request |
| Space Use |
| Office/Medical |
| Condition |
| Partial Build-Out |
| Available |
| Now |
3rd Floor, Ste 340
| Size |
| 4,993 SF |
| Term |
| 3-10 Years |
| Rental Rate |
| Upon Request Upon Request Upon Request Upon Request |
| Space Use |
| Office/Medical |
| Condition |
| Full Build-Out |
| Available |
| Now |
3rd Floor, Ste 390
| Size |
| 1,996 SF |
| Term |
| 3-10 Years |
| Rental Rate |
| Upon Request Upon Request Upon Request Upon Request |
| Space Use |
| Office |
| Condition |
| Shell Space |
| Available |
| Now |
2nd Floor, Ste 205
| Size | 4,500 SF |
| Term | 3-10 Years |
| Rental Rate | Upon Request |
| Space Use | Office/Medical |
| Condition | Partial Build-Out |
| Available | Now |
This space has three windowed office, a pantry, a private restroom, two conference room (one with wet bar), reception, and a large windowed work area.
- Listed lease rate plus proportional share of electrical cost
- Partially Built-Out as Standard Office
- Mostly Open Floor Plan Layout
- 3 Private Offices
- Kitchen
- Private Restrooms
2nd Floor, Ste 280
| Size | 2,912 SF |
| Term | 3-10 Years |
| Rental Rate | Upon Request |
| Space Use | Office/Medical |
| Condition | Partial Build-Out |
| Available | Now |
Move in ready. Fully built space. Suite is ready to go with five windowed office, conference room, pantry, open work area, storage, and reception.
- Listed lease rate plus proportional share of electrical cost
- Partially Built-Out as Standard Office
- Mostly Open Floor Plan Layout
- 5 Private Offices
- 1 Conference Room
- Reception Area
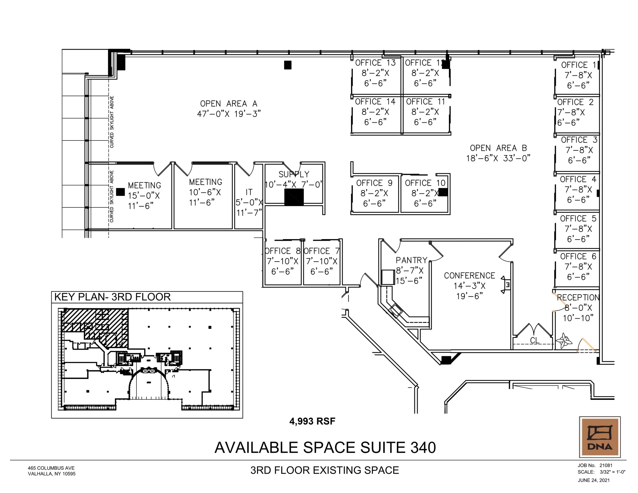
3rd Floor, Ste 340
| Size | 4,993 SF |
| Term | 3-10 Years |
| Rental Rate | Upon Request |
| Space Use | Office/Medical |
| Condition | Full Build-Out |
| Available | Now |
Fully built space. Move in ready.
- Listed lease rate plus proportional share of electrical cost
- Fully Built-Out as Standard Office
- Mostly Open Floor Plan Layout
- 14 Private Offices
- 1 Conference Room
- Space is in Excellent Condition
- Central Air Conditioning
- Corner Space
- Atrium
- Food Service
3rd Floor, Ste 390
| Size | 1,996 SF |
| Term | 3-10 Years |
| Rental Rate | Upon Request |
| Space Use | Office |
| Condition | Shell Space |
| Available | Now |
Raw Space
- Listed lease rate plus proportional share of electrical cost
- Mostly Open Floor Plan Layout
- Natural Light
Features and Amenities
- Atrium
- Conferencing Facility
- Food Service
- Pond
- Property Manager on Site
Property Facts
Select Tenants
- Floor
- Tenant Name
- Industry
- 3rd
- Atmosphere Design Group
- Professional, Scientific, and Technical Services
- Unknown
- Mt Pleasant Medical Group
- Health Care and Social Assistance
- 3rd
- Northwell Health Medicine For Women
- Health Care and Social Assistance
- Multiple
- NYC Department of Environmental Protection
- Public Administration
- 1st
- Proactive Physical Therapy
- Health Care and Social Assistance
- 3rd
- Pure Dermatology & Surgery Pc
- Health Care and Social Assistance
- 3rd
- Signify
- Manufacturing
- 1st
- Westchester Health Associates
- Health Care and Social Assistance
Presented by
465 Columbus Ave
Hmm, there seems to have been an error sending your message. Please try again.
Thanks! Your message was sent.












