Log In/Sign Up
Your email has been sent.
Investment Highlights
- Acreage
- Ample Storage & Space
- Location
Executive Summary
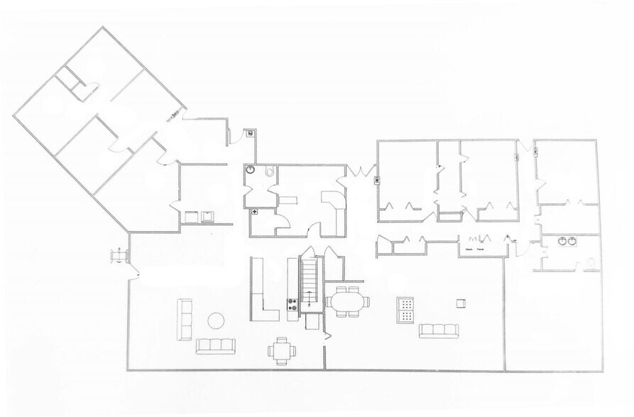
Great opportunity with multiple potential uses. Recently used as a large group home this location can be used as a business or potentially converted back to residential. Situated on 11.58 acres with 3 buildings. Main building with detached garage and also a large pole structure providing plenty of utility and storage. Property is setback from Scottdale Rd providing great privacy. All uses are subject to municipal approval. Call agent today for more information.
Property Facts
| Price | $699,000 | Lot Size | 11.39 AC |
| Price Per SF | $107.84 | Building Size | 6,482 SF |
| Sale Type | Investment or Owner User | No. Stories | 2 |
| Property Type | Specialty | Year Built | 1964 |
| Building Class | C | Parcel Number | 11-17-0018-0008-09-9 |
| Zoning | R1 - LD - Residential | ||
| Price | $699,000 |
| Price Per SF | $107.84 |
| Sale Type | Investment or Owner User |
| Property Type | Specialty |
| Building Class | C |
| Lot Size | 11.39 AC |
| Building Size | 6,482 SF |
| No. Stories | 2 |
| Year Built | 1964 |
| Zoning | R1 - LD - Residential |
| Parcel Number | 11-17-0018-0008-09-9 |
1 1
1 of 12
Videos
Matterport 3D Exterior
Matterport 3D Tour
Photos
Street View
Street
Map
1 of 1
Presented by
4730 Scottdale Rd
Already a member? Log In
Hmm, there seems to have been an error sending your message. Please try again.
Thanks! Your message was sent.
Your message has been sent!
Activate your LoopNet account now to track properties, get real-time alerts, save time on future inquiries, and more.



