Your email has been sent.
4985-4995 W Rochelle Rd - Mustang Crossing 1.08 - 3.12 Acre Commercial Land Lots Offered at $1,250,000 - $3,100,000 Per Lot in Irving, TX 75062



Investment Highlights
- Land Location - 2 minutes from the Airport!
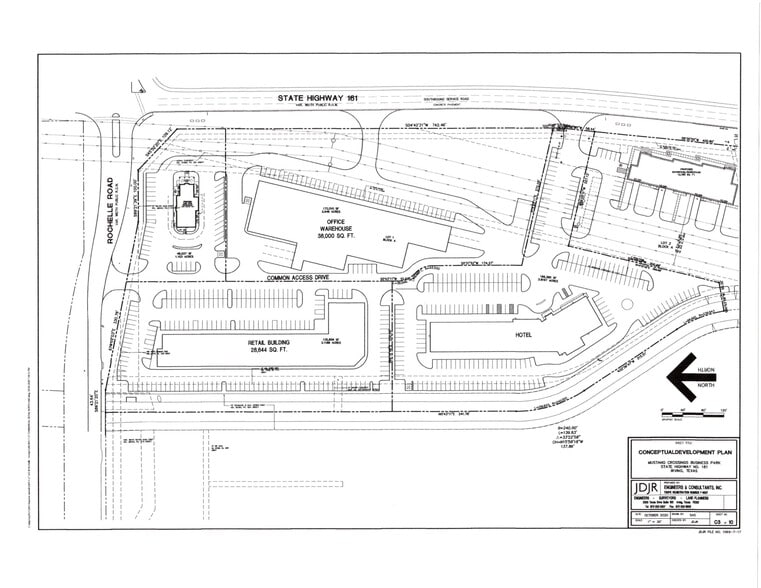
Executive Summary
Property Facts
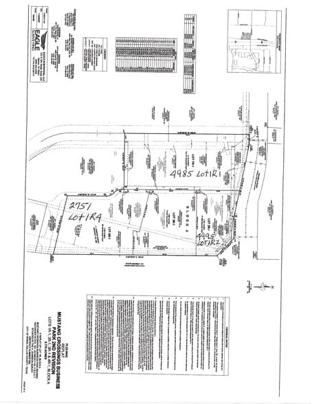
3 Lots Available
Lot 4995
| Price | $1,250,000 | Lot Size | 1.08 AC |
| Price Per AC | $1,157,407.41 |
| Price | $1,250,000 |
| Price Per AC | $1,157,407.41 |
| Lot Size | 1.08 AC |
Lots can be purchased together or separately Lots can be purchased together or separately ZONING - PD - S-P-2 IN THE C - C DISTRICT allows a large variety of buildings such as Gas Station with Mini-Mart, Restaurant, Retail Strip Center, Warehouse.
Lot 4985
| Price | $3,100,000 | Lot Size | 3.12 AC |
| Price Per AC | $993,589.74 |
| Price | $3,100,000 |
| Price Per AC | $993,589.74 |
| Lot Size | 3.12 AC |
Lots can be purchased together or separately Lots can be purchased together or separately ZONING -PD-S-P-2 IN THE C - C DISTRICT allows a large variety of buildings such as Warehouses, Gas Station with Mini-Mart, Hotels with Mod, Retail Strip Center.
Lot 2751
| Price | $1,260,000 | Lot Size | 2.26 AC |
| Price Per AC | $557,522.12 |
| Price | $1,260,000 |
| Price Per AC | $557,522.12 |
| Lot Size | 2.26 AC |
Lots can be purchased together or separately Lots can be purchased together or separately ZONING-PD-S-P-2 IN THE C - C DISTRICT allows a large variety of buildings such as Warehouses, Gas Station with Mini-Mart, Hotels with Mod, Retail Strip Center.
Property Taxes
| Parcel Numbers | Improvements Assessment | $0 | |
| Land Assessment | $1,828,210 | Total Assessment | $1,828,210 |
Property Taxes
Presented by
4985-4995 W Rochelle Rd - Mustang Crossing
Hmm, there seems to have been an error sending your message. Please try again.
Thanks! Your message was sent.
