Your email has been sent.
4998 Carolina Forest Proposed Strip Center 4998 Carolina Forest Blvd 1,980 - 7,561 SF of 4-Star Retail Space Available in Myrtle Beach, SC 29579



Space Availability (3)
Display Rental Rate as
- Space
- Size
- Term
- Rental Rate
- Rent Type
| Space | Size | Term | Rental Rate | Rent Type | ||
| 1st Floor, Ste 2 | 2,432 SF | 5-10 Years | $34.00 /SF/YR $2.83 /SF/MO $82,688 /YR $6,891 /MO | Triple Net (NNN) | ||
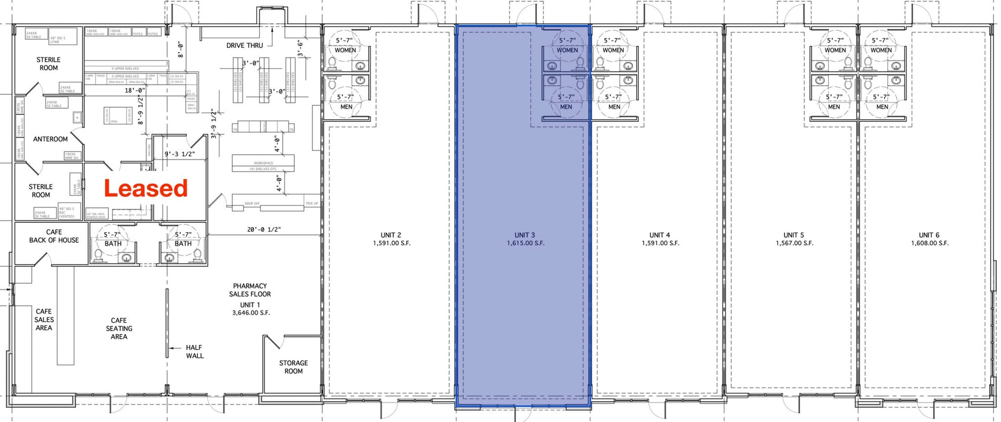
| 1st Floor, Ste 3 | 1,980 SF | 5-10 Years | $34.00 /SF/YR $2.83 /SF/MO $67,320 /YR $5,610 /MO | Triple Net (NNN) | ||
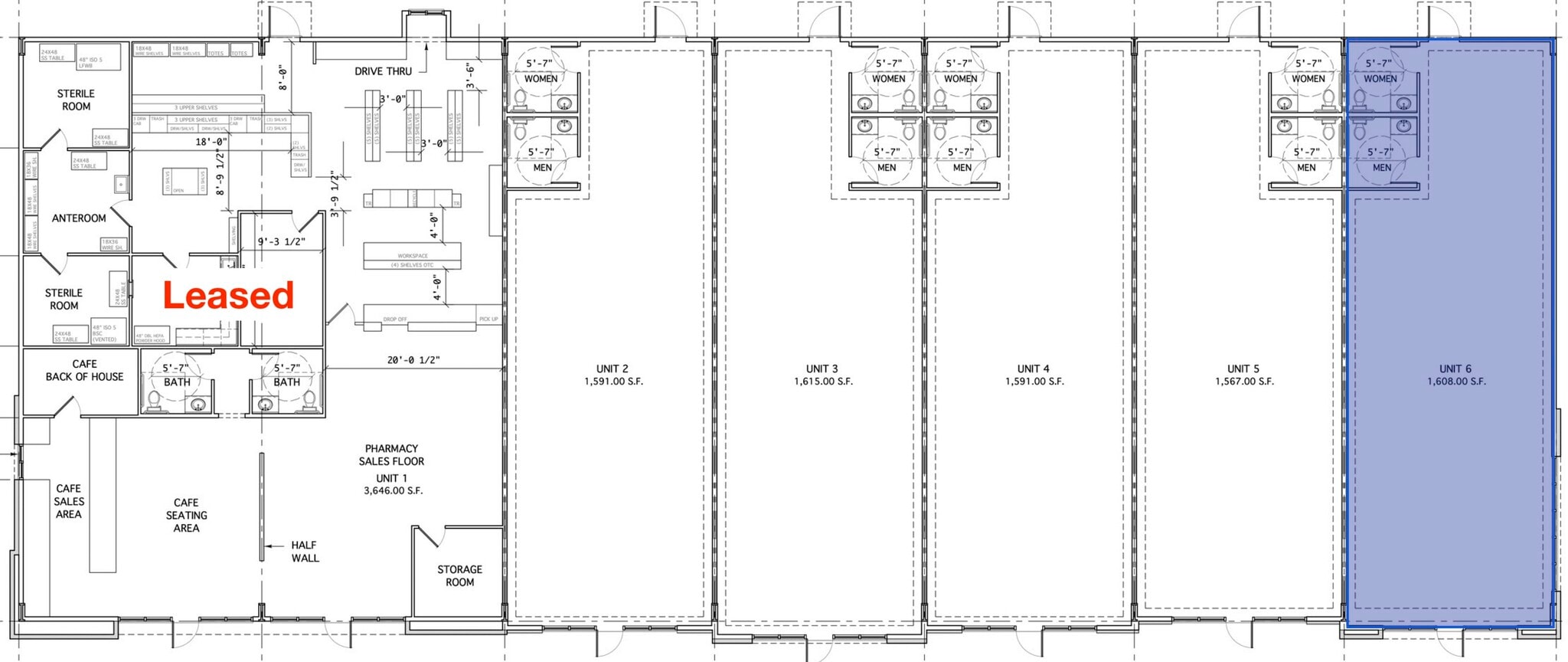
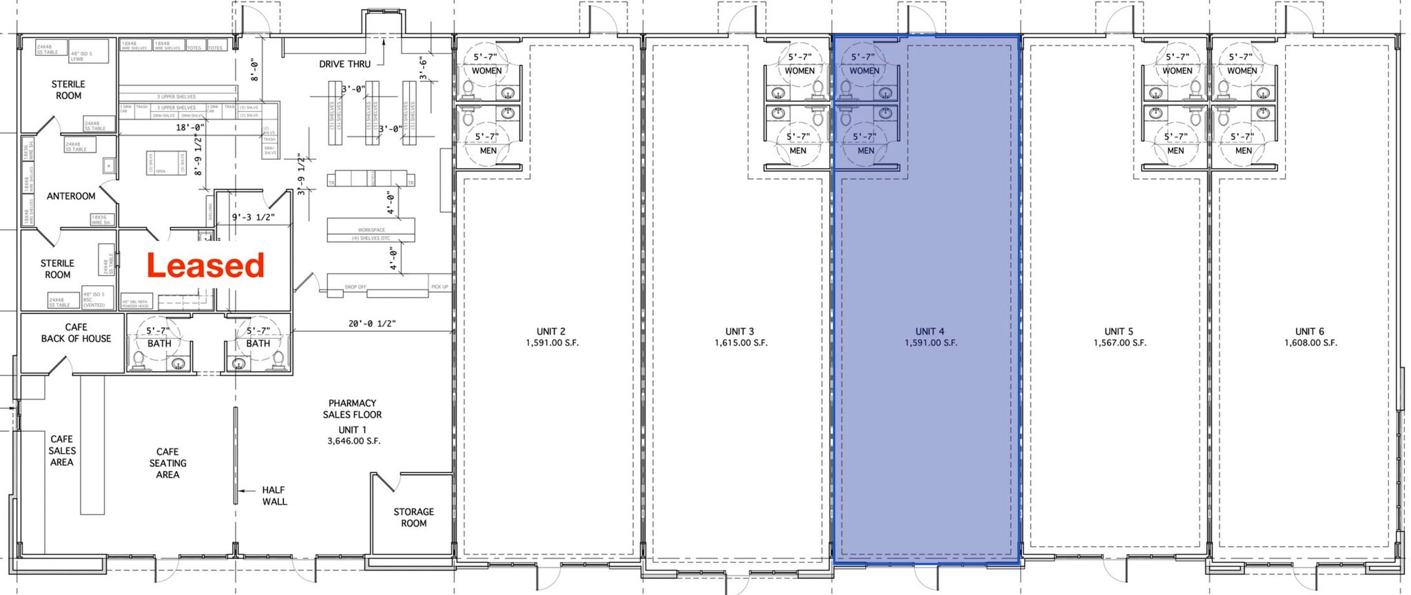
| 1st Floor, Ste 4 | 3,149 SF | 5-10 Years | $36.00 /SF/YR $3.00 /SF/MO $113,364 /YR $9,447 /MO | Triple Net (NNN) |
1st Floor, Ste 2
Now Pre-leasing: 11,600 SF retail strip center in the Carolina Forest submarket. Suite 2 is approximately 2,432 SF. Property is conveniently positioned near the signalized intersection of Carolina Forest Blvd and River Oaks Dr, adjacent to major retailers including Publix, Food Lion, Chase Bank, South Atlantic Bank, etc. Excellent visibility and access within a dense residential and retail corridor.
- Lease rate does not include utilities, property expenses or building services
- Located in-line with other retail
1st Floor, Ste 3
Now Pre-leasing: 11,600 SF retail strip center in the Carolina Forest submarket. Suite 3 is approximately 1,980 SF. Property is conveniently positioned near the signalized intersection of Carolina Forest Blvd and River Oaks Dr, adjacent to major retailers including Publix, Food Lion, Chase Bank, South Atlantic Bank, etc. Excellent visibility and access within a dense residential and retail corridor.
- Lease rate does not include utilities, property expenses or building services
- Located in-line with other retail
1st Floor, Ste 4
Now Pre-leasing: 11,600 SF retail strip center in the Carolina Forest submarket. Suite 4 is approximately 3,149 SF. Property is conveniently positioned near the signalized intersection of Carolina Forest Blvd and River Oaks Dr, adjacent to major retailers including Publix, Food Lion, Chase Bank, South Atlantic Bank, etc. Excellent visibility and access within a dense residential and retail corridor.
- Lease rate does not include utilities, property expenses or building services
- Located in-line with other retail
Rent Types
The rent amount and type that the tenant (lessee) will be responsible to pay to the landlord (lessor) throughout the lease term is negotiated prior to both parties signing a lease agreement. The rent type will vary depending upon the services provided. For example, triple net rents are typically lower than full service rents due to additional expenses the tenant is required to pay in addition to the base rent. Contact the listing broker for a full understanding of any associated costs or additional expenses for each rent type.
1. Full Service: A rental rate that includes normal building standard services as provided by the landlord within a base year rental.
2. Double Net (NN): Tenant pays for only two of the building expenses; the landlord and tenant determine the specific expenses prior to signing the lease agreement.
3. Triple Net (NNN): A lease in which the tenant is responsible for all expenses associated with their proportional share of occupancy of the building.
4. Modified Gross: Modified Gross is a general type of lease rate where typically the tenant will be responsible for their proportional share of one or more of the expenses. The landlord will pay the remaining expenses. See the below list of common Modified Gross rental rate structures: 4. Plus All Utilities: A type of Modified Gross Lease where the tenant is responsible for their proportional share of utilities in addition to the rent. 4. Plus Cleaning: A type of Modified Gross Lease where the tenant is responsible for their proportional share of cleaning in addition to the rent. 4. Plus Electric: A type of Modified Gross Lease where the tenant is responsible for their proportional share of the electrical cost in addition to the rent. 4. Plus Electric & Cleaning: A type of Modified Gross Lease where the tenant is responsible for their proportional share of the electrical and cleaning cost in addition to the rent. 4. Plus Utilities and Char: A type of Modified Gross Lease where the tenant is responsible for their proportional share of the utilities and cleaning cost in addition to the rent. 4. Industrial Gross: A type of Modified Gross lease where the tenant pays one or more of the expenses in addition to the rent. The landlord and tenant determine these prior to signing the lease agreement.
5. Tenant Electric: The landlord pays for all services and the tenant is responsible for their usage of lights and electrical outlets in the space they occupy.
6. Negotiable or Upon Request: Used when the leasing contact does not provide the rent or service type.
7. TBD: To be determined; used for buildings for which no rent or service type is known, commonly utilized when the buildings are not yet built.
Property Facts
| Total Space Available | 7,561 SF | Year Built | 2027 |
| Property Type | Retail | Parking Ratio | 5.09/1,000 SF |
| Gross Leasable Area | 11,600 SF | Construction Status | Under Construction |
| Total Space Available | 7,561 SF |
| Property Type | Retail |
| Gross Leasable Area | 11,600 SF |
| Year Built | 2027 |
| Parking Ratio | 5.09/1,000 SF |
| Construction Status | Under Construction |
About the Property
Now Pre-leasing: 11,600 SF retail strip center in the Carolina Forest submarket. Suites available from 1,980 SF to 7,561 SF. Property is conveniently positioned near the signalized intersection of Carolina Forest Blvd and River Oaks Dr, adjacent to major retailers including Publix, Food Lion, Chase Bank, South Atlantic Bank, etc. Excellent visibility and access within a dense residential and retail corridor. Projected completion/delivery is Q4 2026. No tobacco/vape. Located within the Carolina Forest submarket near the intersection of River Oaks Drive and Carolina Forest Boulevard, this property offers excellent visibility and accessibility. Carolina Forest is a 9,000+ acre master-planned community in central Horry County with a permanent 5-mile population of over 80,000 residents. ADT is 28,900 vehicles per day (2022). The site is easily accessible from International Drive and Carolina Bays Parkway (SC-31). Surrounded by dense residential neighborhoods and continued growth, with 800+ proposed new homes.
Nearby Major Retailers
Presented by
4998 Carolina Forest Proposed Strip Center | 4998 Carolina Forest Blvd
Hmm, there seems to have been an error sending your message. Please try again.
Thanks! Your message was sent.






