Log In/Sign Up
Enter your email to login or create a free account
This feature is unavailable at the moment.
We apologize, but the feature you are trying to access is currently unavailable. We are aware of this issue and our team is working hard to resolve the matter.
Please check back in a few minutes. We apologize for the inconvenience.
- LoopNet Team
This Property is no longer advertised on LoopNet.com.
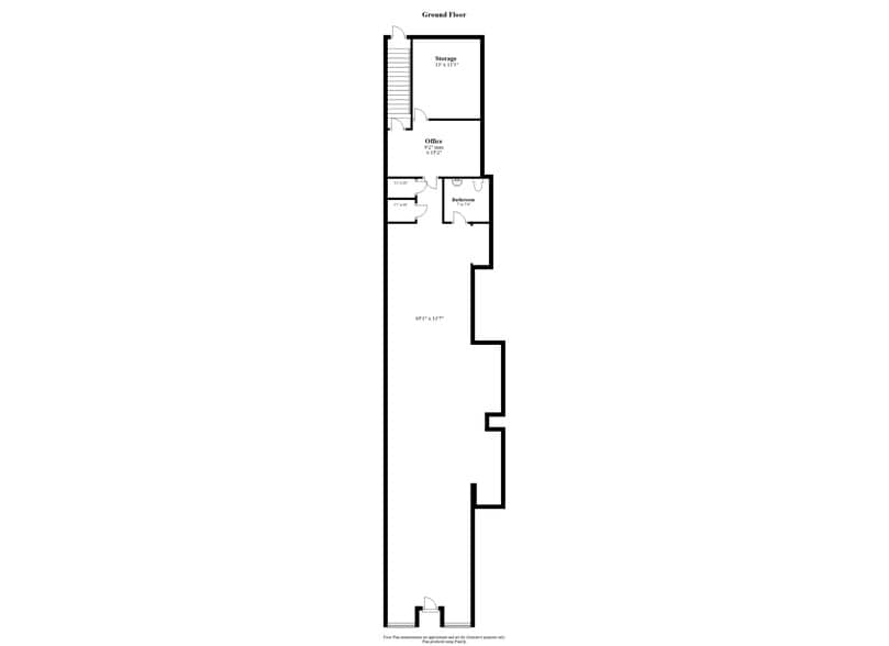
50 Greenwich Ave
Greenwich, CT 06830
Property For Lease

Highlights
- Prime location on Greenwich Avenye
- Enviable Visibility
Property Facts
| Property Type | Retail | Year Built | 1868 |
| Gross Leasable Area | 7,653 SF |
| Property Type | Retail |
| Gross Leasable Area | 7,653 SF |
| Year Built | 1868 |
About the Property
50 Greenwich Avenue is an alluring property boasting a prime location on the renowned Greenwich Avenue, offering enviable visibility and foot traffic.
- Tenant Controlled HVAC
- Accent Lighting
- Air Conditioning
Listing ID: 38081052
Date on Market: 10/15/2025
Last Updated:
Address: 50 Greenwich Ave, Greenwich, CT 06830
The Downtown Greenwich Retail Property at 50 Greenwich Ave, Greenwich, CT 06830 is no longer being advertised on LoopNet.com. Contact the broker for information on availability.
RETAIL PROPERTIES IN NEARBY NEIGHBORHOODS
- Westchester County South Commercial Real Estate Properties
- Downtown Stamford Commercial Real Estate Properties
- Harbor Point Commercial Real Estate Properties
- Downtown White Plains Commercial Real Estate Properties
- Downtown Greenwich Commercial Real Estate Properties
- Rye Brook/Port Chester Commercial Real Estate Properties
- Larchmont/Mamaroneck Commercial Real Estate Properties
- Hartsdale/Greenburgh Commercial Real Estate Properties
- Newfield-Westover-Turn of River Commercial Real Estate Properties
- Springdale Commercial Real Estate Properties
- Glenbrook Commercial Real Estate Properties
- North White Plains Commercial Real Estate Properties
- Downtown Stamford Historic District Commercial Real Estate Properties
- West Side-Waterside-South End Commercial Real Estate Properties
- Quaker Ridge Commercial Real Estate Properties
NEARBY LISTINGS
- 400 Atlantic St, Stamford CT
- 1 Landmark Sq, Stamford CT
- 208 Harbor Dr, Stamford CT
- 29 Bank St, Stamford CT
- 100 Greyrock Pl, Stamford CT
- 60 Long Ridge Rd, Stamford CT
- 225 Atlantic St, Stamford CT
- 12 King St, Port Chester NY
- 38-40 Greenwich Ave, Greenwich CT
- 415-417 Greenwich Ave, Greenwich CT
- 210-212 Sound Beach Ave, Old Greenwich, Ct, Old Greenwich CT
- 28 N Main St, Port Chester NY
- 112 Mason St, Greenwich CT
- 383 Greenwich Ave, Greenwich CT
- 248 Greenwich Ave, Greenwich CT
1 of 1
Videos
Matterport 3D Exterior
Matterport 3D Tour
Photos
Street View
Street
Map

Link copied
Your LoopNet account has been created!
Thank you for your feedback.
Please Share Your Feedback
We welcome any feedback on how we can improve LoopNet to better serve your needs.X
{{ getErrorText(feedbackForm.starRating, "rating") }}
255 character limit ({{ remainingChars() }} charactercharacters remainingover)
{{ getErrorText(feedbackForm.msg, "rating") }}
{{ getErrorText(feedbackForm.fname, "first name") }}
{{ getErrorText(feedbackForm.lname, "last name") }}
{{ getErrorText(feedbackForm.phone, "phone number") }}
{{ getErrorText(feedbackForm.phonex, "phone extension") }}
{{ getErrorText(feedbackForm.email, "email address") }}
You can provide feedback any time using the Help button at the top of the page.