Enter your email to login or create a free account
This feature is unavailable at the moment.
We apologize, but the feature you are trying to access is currently unavailable. We are aware of this issue and our team is working hard to resolve the matter.
Please check back in a few minutes. We apologize for the inconvenience.
- LoopNet Team
5005 W Washington Blvd
Los Angeles, CA 90016
Property For Lease

Highlights
- Rare Freestanding Live/Work Space
- Luxury Residential Features Upstairs
- Expansive Open First Floor
- Central Location
Property Facts
| Property Type | Retail | Gross Leasable Area | 2,656 SF |
| Property Subtype | Storefront Retail/Residential | Year Built | 1924 |
| Property Type | Retail |
| Property Subtype | Storefront Retail/Residential |
| Gross Leasable Area | 2,656 SF |
| Year Built | 1924 |
About the Property
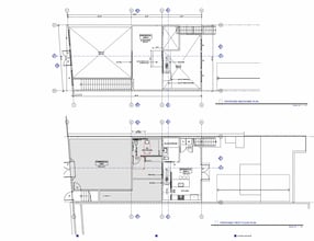
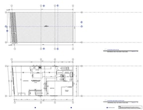
Now available for lease, this rare freestanding, modern two-story live/work space offers a unique blend of residential comfort and commercial functionality. Located steps from Jurassic Magic, and just blocks from some of West Adams’ top restaurants and bars—Mizlala, Cento Pasta Bar, Tartine, and Alta—this property is ideal for creatives, entrepreneurs, and professionals seeking a versatile mixed-use environment. Step through double iron doors into a dramatic first level with 15-foot ceilings, gallery walls, exposed rafters, and expansive south-facing windows with new motorized Hunter Douglas shades. The open-plan space is currently configured as a commercial art studio/gallery but can be easily adapted to suit a variety of uses. At the rear of the first level, you’ll find a full kitchen, bathroom, and laundry area with soaring 12-foot ceilings. Sliding doors open to a tranquil outdoor oasis featuring a koi pond, fruit trees, and a private Zen-inspired garden—perfect for entertaining or quiet reflection. Outdoor amenities include a built-in stainless steel Delta Heat grill, wood-fired pizza oven, low-voltage landscape lighting, and a smart-controlled drip irrigation system. The second floor features a luxurious primary suite with a California Closets walk-in, private bath with Carrara marble double vanity, soaking tub, and Restoration Hardware fixtures, plus views of the Hollywood Hills. A spacious great room with hardwood floors and fireplace includes a full guest bath and connects to a chef’s kitchen outfitted with Sub-Zero and Wolf appliances, marble countertops, and abundant storage. Additional features include soaring ceilings, oversized windows, dimmable LED lighting, Nest-controlled HVAC, ADT security, gated parking for two cars with a Tesla EV charger, HotSprings spa, and a Reolink DVR security system with Ring doorbell. With LAC2 zoning, this one-of-a-kind property is perfectly suited for live/work or mixed-use tenants looking for a highly walkable, vibrant location.
Listing ID: 36981627
Date on Market: 7/29/2025
Last Updated:
Address: 5005 W Washington Blvd, Los Angeles, CA 90016
The Mid-City Retail Property at 5005 W Washington Blvd, Los Angeles, CA 90016 is no longer being advertised on LoopNet.com. Contact the broker for information on availability.
RETAIL PROPERTIES IN NEARBY NEIGHBORHOODS
- Downtown Los Angeles Commercial Real Estate Properties
- Mid-Wilshire Commercial Real Estate Properties
- Greater Culver City Commercial Real Estate Properties
- Koreatown Commercial Real Estate Properties
- Venice Beach Commercial Real Estate Properties
- Northeast Los Angeles Commercial Real Estate Properties
- East Hollywood Commercial Real Estate Properties
- Westlake Commercial Real Estate Properties
- Downtown Santa Monica Commercial Real Estate Properties
- Financial District Commercial Real Estate Properties
- Westwood Commercial Real Estate Properties
- Mid-City Santa Monica Commercial Real Estate Properties
- Fashion District Commercial Real Estate Properties
- South Park Commercial Real Estate Properties
- Hancock Park Commercial Real Estate Properties
NEARBY LISTINGS
- 6565 W Sunset Blvd, Hollywood CA
- 400 Corporate Pointe, Culver City CA
- 3250 Wilshire Blvd, Los Angeles CA
- 1880 Century Park E, Los Angeles CA
- 6100 Wilshire Blvd, Los Angeles CA
- 5285 W Washington Blvd, Los Angeles CA
- 640 S San Vicente Blvd, Los Angeles CA
- 6525 W Sunset Blvd, Los Angeles CA
- 9465 Wilshire Blvd, Beverly Hills CA
- 6059 Bristol Pky, Culver City CA
- 1731 W Martin Luther King Jr Blvd, Los Angeles CA
- 6922 Hollywood Blvd, Los Angeles CA
- 5872 Smiley Dr, Culver City CA
- 3550 Hayden Ave, Culver City CA
- 6200 Wilshire Blvd, Los Angeles CA
