Your email has been sent.
Residences at The Little Nell 501 E Dean St 653 - 4,108 SF of 4-Star Retail Space Available in Aspen, CO 81611



Highlights
- Positioned steps from the Silver Queen Gondola in Aspen’s luxury retail core.
- Four available suites ranging from ±653 SF to ±1,812 SF for flexible retail concepts.
- Multiple levels and potential outdoor patio areas for creative design options.
- Surrounded by world-class brands including Gucci, Prada, Dior, and Loro Piana.
- Prominent street frontage with continuous exposure to high-end shoppers and visitors.
- Located among Aspen’s premier dining, shopping, and hospitality destinations.
All Available Spaces(4)
Display Rental Rate as
- Space
- Size
- Term
- Rental Rate
- Space Use
- Build-Out
- Available
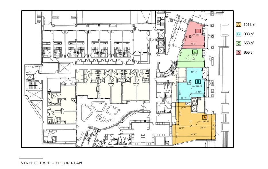
This expansive suite offers the largest footprint within The Little Nell, ideal for flagship retail concepts seeking maximum visibility. Positioned along a prominent frontage, Space A benefits from continuous exposure to Aspen’s luxury shoppers and visitors. The generous layout accommodates multiple design possibilities, including experiential retail and curated brand environments.
- Fully Built-Out as Standard Retail Space
- Space is in Excellent Condition
Space B provides a well-balanced layout for luxury retailers looking to establish a strong presence in Aspen’s premier retail corridor. With excellent street visibility and steady foot traffic, this suite is perfectly suited for boutique concepts or specialty brands. Flexible design options allow for creative merchandising and customer engagement.
- Fully Built-Out as Standard Retail Space
- Space is in Excellent Condition
- Located in-line with other retail
This intimate suite is an excellent choice for high-end retailers seeking a curated, exclusive environment. Despite its smaller size, Space C offers strong frontage and access to Aspen’s vibrant pedestrian flow. Ideal for jewelers, accessories, or specialty goods, the space supports a refined and personalized shopping experience.
- Fully Built-Out as Standard Retail Space
- Space is in Excellent Condition
- Located in-line with other retail
Space D combines efficient square footage with exceptional exposure, making it a prime option for luxury brands aiming to capture Aspen’s discerning clientele. Its layout supports innovative store concepts and can be enhanced with creative design elements to deliver a memorable retail experience.
- Fully Built-Out as Standard Retail Space
- Space is in Excellent Condition
| Space | Size | Term | Rental Rate | Space Use | Build-Out | Available |
| 1st Floor, Ste A | 1,812 SF | Negotiable | Upon Request Upon Request Upon Request Upon Request | Retail | Full Build-Out | Now |
| 1st Floor, Ste B | 988 SF | Negotiable | Upon Request Upon Request Upon Request Upon Request | Retail | Full Build-Out | Now |
| 1st Floor, Ste C | 653 SF | Negotiable | Upon Request Upon Request Upon Request Upon Request | Retail | Full Build-Out | Now |
| 1st Floor, Ste D | 655 SF | Negotiable | Upon Request Upon Request Upon Request Upon Request | Retail | Full Build-Out | Now |
1st Floor, Ste A
| Size |
| 1,812 SF |
| Term |
| Negotiable |
| Rental Rate |
| Upon Request Upon Request Upon Request Upon Request |
| Space Use |
| Retail |
| Build-Out |
| Full Build-Out |
| Available |
| Now |
1st Floor, Ste B
| Size |
| 988 SF |
| Term |
| Negotiable |
| Rental Rate |
| Upon Request Upon Request Upon Request Upon Request |
| Space Use |
| Retail |
| Build-Out |
| Full Build-Out |
| Available |
| Now |
1st Floor, Ste C
| Size |
| 653 SF |
| Term |
| Negotiable |
| Rental Rate |
| Upon Request Upon Request Upon Request Upon Request |
| Space Use |
| Retail |
| Build-Out |
| Full Build-Out |
| Available |
| Now |
1st Floor, Ste D
| Size |
| 655 SF |
| Term |
| Negotiable |
| Rental Rate |
| Upon Request Upon Request Upon Request Upon Request |
| Space Use |
| Retail |
| Build-Out |
| Full Build-Out |
| Available |
| Now |
1st Floor, Ste A
| Size | 1,812 SF |
| Term | Negotiable |
| Rental Rate | Upon Request |
| Space Use | Retail |
| Build-Out | Full Build-Out |
| Available | Now |
This expansive suite offers the largest footprint within The Little Nell, ideal for flagship retail concepts seeking maximum visibility. Positioned along a prominent frontage, Space A benefits from continuous exposure to Aspen’s luxury shoppers and visitors. The generous layout accommodates multiple design possibilities, including experiential retail and curated brand environments.
- Fully Built-Out as Standard Retail Space
- Space is in Excellent Condition
1st Floor, Ste B
| Size | 988 SF |
| Term | Negotiable |
| Rental Rate | Upon Request |
| Space Use | Retail |
| Build-Out | Full Build-Out |
| Available | Now |
Space B provides a well-balanced layout for luxury retailers looking to establish a strong presence in Aspen’s premier retail corridor. With excellent street visibility and steady foot traffic, this suite is perfectly suited for boutique concepts or specialty brands. Flexible design options allow for creative merchandising and customer engagement.
- Fully Built-Out as Standard Retail Space
- Located in-line with other retail
- Space is in Excellent Condition
1st Floor, Ste C
| Size | 653 SF |
| Term | Negotiable |
| Rental Rate | Upon Request |
| Space Use | Retail |
| Build-Out | Full Build-Out |
| Available | Now |
This intimate suite is an excellent choice for high-end retailers seeking a curated, exclusive environment. Despite its smaller size, Space C offers strong frontage and access to Aspen’s vibrant pedestrian flow. Ideal for jewelers, accessories, or specialty goods, the space supports a refined and personalized shopping experience.
- Fully Built-Out as Standard Retail Space
- Located in-line with other retail
- Space is in Excellent Condition
1st Floor, Ste D
| Size | 655 SF |
| Term | Negotiable |
| Rental Rate | Upon Request |
| Space Use | Retail |
| Build-Out | Full Build-Out |
| Available | Now |
Space D combines efficient square footage with exceptional exposure, making it a prime option for luxury brands aiming to capture Aspen’s discerning clientele. Its layout supports innovative store concepts and can be enhanced with creative design elements to deliver a memorable retail experience.
- Fully Built-Out as Standard Retail Space
- Space is in Excellent Condition
Property Facts
| Total Space Available | 4,108 SF | Building Size | 96,956 SF |
| Property Type | Hospitality | Year Built | 2012 |
| Property Subtype | Hotel |
| Total Space Available | 4,108 SF |
| Property Type | Hospitality |
| Property Subtype | Hotel |
| Building Size | 96,956 SF |
| Year Built | 2012 |
About the Property
The property is located at 501 E Dean Street in Aspen, Colorado, within close proximity to the Silver Queen Gondola and major luxury retail brands. It offers four retail spaces on the street level with varying sizes. The surrounding area includes high-end shopping, dining, and hospitality venues. The property is situated in a pedestrian-friendly environment with significant year-round foot traffic.
Features and Amenities
- Balcony
- Fitness Center
- Pool
- Restaurant
- Room Service
- Patio
- Destination Resort
- Boutique/Lifestyle Hotel
- Public Access Wifi
- Fully-Equipped Kitchen
- Ski (direct access)
Nearby Major Retailers
Presented by
Residences at The Little Nell | 501 E Dean St
Hmm, there seems to have been an error sending your message. Please try again.
Thanks! Your message was sent.


