Your email has been sent.
Sublease Highlights
- Well-located office property in the highly sought-after Village Boulevard corridor, offering convenient access to I-95 and Palm Beach Lakes Boulevard
- Professional office environment suitable for a variety of users including general office, medical, and professional services
- Surrounded by a dense mix of retail, dining, and service amenities along Palm Beach Lakes Blvd and nearby corridors
- Centrally positioned within West Palm Beach, providing excellent connectivity to Downtown, Palm Beach International Airport, and surrounding business
- Flexible suite configurations available to accommodate small to mid-size tenants
- Strong visibility and accessibility in one of West Palm Beach’s established office submarkets
All Available Spaces(2)
Display Rental Rate as
- Space
- Size
- Term
- Rental Rate
- Space Use
- Build-Out
- Available
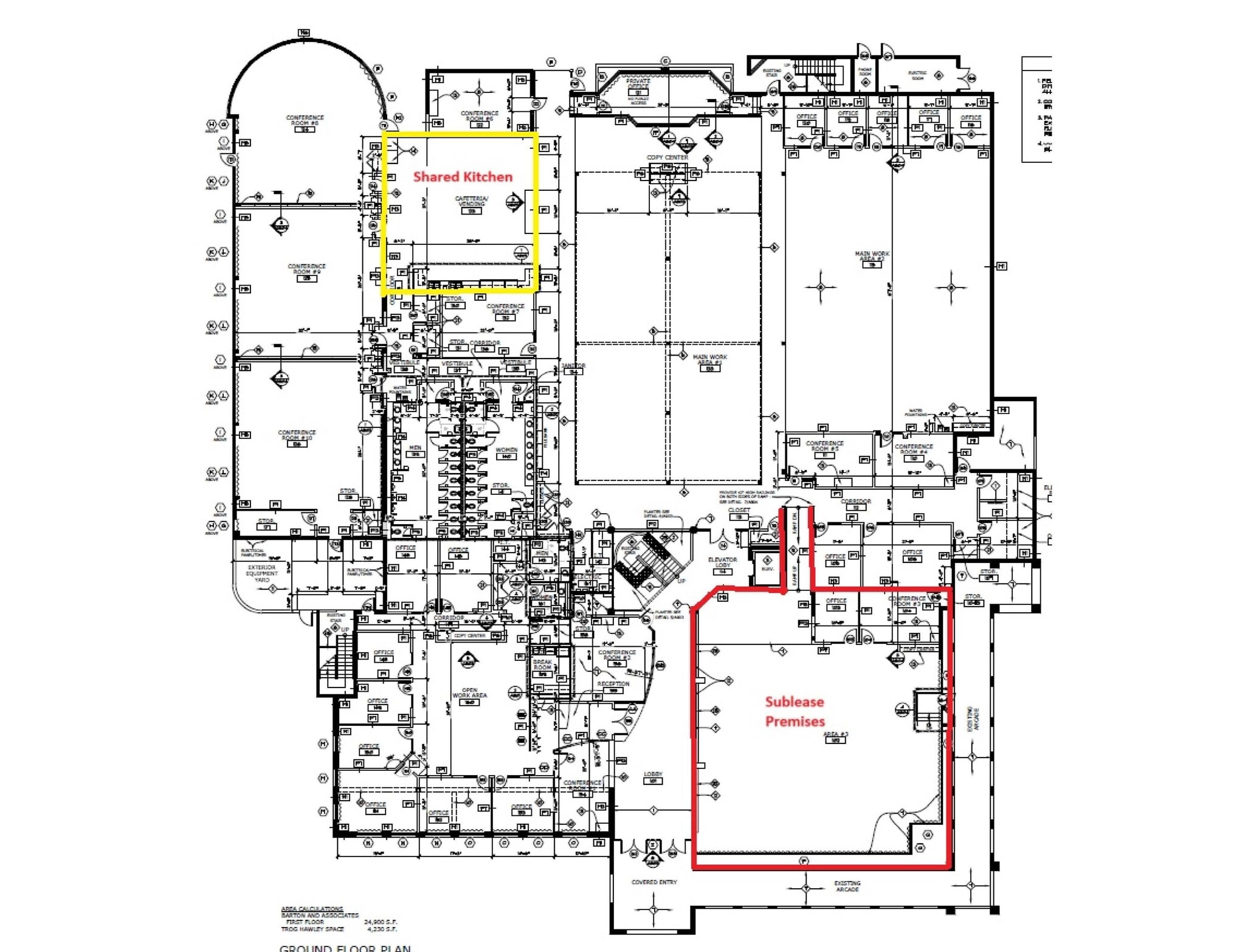
Multiple Sublease scenarios are available: Option # 1: Sublease 4,000 SF on the 1st floor. Option #2: Sublease 12,000 SF on the 2nd floor, or Option #3: Sublease 38,625 SF (1st & 2nd floors). Amenities include a large kitchenette and break room, a spacious training room, and an outdoor basketball court. Ample parking is available. Fully furnished with high-end systems.
- Sublease space available from current tenant
- Fully Built-Out as Standard Office
- Rate includes utilities, building services and property expenses
- Space is in Excellent Condition
Multiple Sublease scenarios are available: Option # 1: Sublease 4,000 SF on the 1st floor. Option #2: Sublease 12,000 SF on the 2nd floor, or Option #3: Sublease 38,625 SF (1st & 2nd floors). Amenities include a large kitchenette and break room, a spacious training room, and an outdoor basketball court. Ample parking is available. Fully furnished with high-end systems.
- Sublease space available from current tenant
- Fully Built-Out as Standard Office
- Rate includes utilities, building services and property expenses
- Space is in Excellent Condition
| Space | Size | Term | Rental Rate | Space Use | Build-Out | Available |
| 1st Floor | 4,000-26,265 SF | Dec 2032 | Upon Request Upon Request Upon Request Upon Request | Office | Full Build-Out | 30 Days |
| 2nd Floor | 12,000 SF | Dec 2032 | Upon Request Upon Request Upon Request Upon Request | Office | Full Build-Out | 30 Days |
1st Floor
| Size |
| 4,000-26,265 SF |
| Term |
| Dec 2032 |
| Rental Rate |
| Upon Request Upon Request Upon Request Upon Request |
| Space Use |
| Office |
| Build-Out |
| Full Build-Out |
| Available |
| 30 Days |
2nd Floor
| Size |
| 12,000 SF |
| Term |
| Dec 2032 |
| Rental Rate |
| Upon Request Upon Request Upon Request Upon Request |
| Space Use |
| Office |
| Build-Out |
| Full Build-Out |
| Available |
| 30 Days |
1st Floor
| Size | 4,000-26,265 SF |
| Term | Dec 2032 |
| Rental Rate | Upon Request |
| Space Use | Office |
| Build-Out | Full Build-Out |
| Available | 30 Days |
Multiple Sublease scenarios are available: Option # 1: Sublease 4,000 SF on the 1st floor. Option #2: Sublease 12,000 SF on the 2nd floor, or Option #3: Sublease 38,625 SF (1st & 2nd floors). Amenities include a large kitchenette and break room, a spacious training room, and an outdoor basketball court. Ample parking is available. Fully furnished with high-end systems.
- Sublease space available from current tenant
- Rate includes utilities, building services and property expenses
- Fully Built-Out as Standard Office
- Space is in Excellent Condition
2nd Floor
| Size | 12,000 SF |
| Term | Dec 2032 |
| Rental Rate | Upon Request |
| Space Use | Office |
| Build-Out | Full Build-Out |
| Available | 30 Days |
Multiple Sublease scenarios are available: Option # 1: Sublease 4,000 SF on the 1st floor. Option #2: Sublease 12,000 SF on the 2nd floor, or Option #3: Sublease 38,625 SF (1st & 2nd floors). Amenities include a large kitchenette and break room, a spacious training room, and an outdoor basketball court. Ample parking is available. Fully furnished with high-end systems.
- Sublease space available from current tenant
- Rate includes utilities, building services and property expenses
- Fully Built-Out as Standard Office
- Space is in Excellent Condition
Property Overview
Located off Okeechobee Boulevard and North Military Trail, 1 mile west of I-95 and 3 miles east of the Florida Turnpike. Seconds from Palm Beach Lakes’ dining, shopping, and entertainment; walkable to Red Lobster, The Chop Shop, and Park Avenue BBQ. Within a 5-mile drive of Palm Beach International Airport. Only 5 miles from the Atlantic Ocean. Village Commerce Center offers convenient access to beaches and coastal amenities. Surrounded by vibrant amenities and lifestyle destinations, including Grandview Public Market, GreenMarket, CityPlace, and Antique Row.
Property Facts
Select Tenants
- Floor
- Tenant Name
- Industry
- 1st
- 501 Village Blvd Alarm
- Finance and Insurance
- 1st
- Barton Associates
- Administrative and Support Services
- 1st
- Trog Hawley Capital Alarm
- Finance and Insurance
Presented by
501 Village Blvd
Hmm, there seems to have been an error sending your message. Please try again.
Thanks! Your message was sent.







