Log In/Sign Up
Your email has been sent.
Park Facts
| Total Space Available | 6,915 SF | Park Type | Industrial Park |
| Total Space Available | 6,915 SF |
| Park Type | Industrial Park |
All Available Spaces(3)
Display Rental Rate as
5113-5146 Commercial Way
5113 Commercial Way - Alpine Business Park & Self Storage
1,740 - 6,915 SF
|
Upon Request
Upon Request
Upon Request
Upon Request
Upon Request
Upon Request
Building Type/Class
Industrial/B
Building Subtype
Warehouse
Building Size
24,000 SF
Lot Size
6.70 AC
Year Built
1990
Construction
Wood Frame
Clear Height
21’
Drive In Bays
38
Sprinkler System
Dry
Lighting
Fluorescent
Power Supply
Amps: 200 Volts: 208-240 Phase: 3
Zoning
M4 - M4 Business Park. Light industrial
- Space
- Size
- Term
- Rental Rate
- Space Use
- Build-Out
- Available
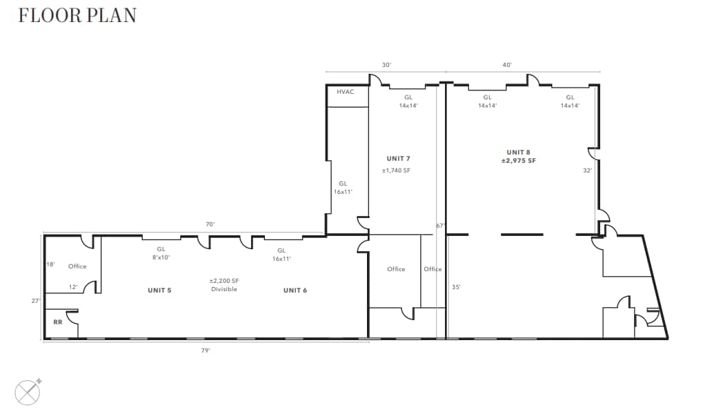
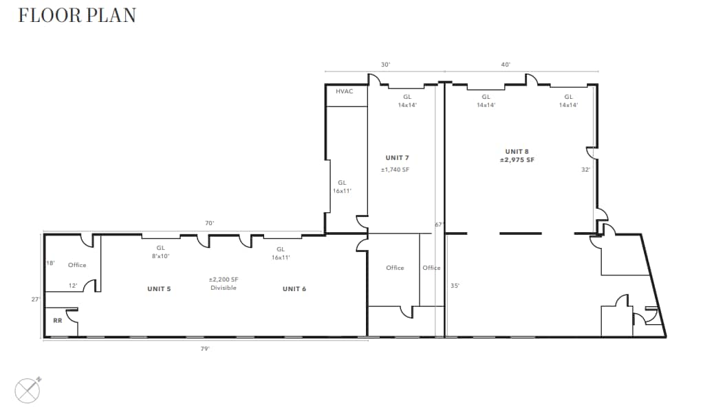
- Includes 265 SF of dedicated office space
- Private Restrooms
- 2 Loading Docks
- Includes 650 SF of dedicated office space
- 1 Loading Dock
- Includes 265 SF of dedicated office space
- Private Restrooms
- Yard
- 2 Loading Docks
- Shower Facilities
| Space | Size | Term | Rental Rate | Space Use | Build-Out | Available |
| 1st Floor - 5&6 | 2,200 SF | Negotiable | Upon Request Upon Request Upon Request Upon Request | Industrial | Full Build-Out | Now |
| 1st Floor - 7 | 1,740 SF | Negotiable | Upon Request Upon Request Upon Request Upon Request | Industrial | Full Build-Out | Now |
| 1st Floor - 8 | 2,975 SF | Negotiable | Upon Request Upon Request Upon Request Upon Request | Industrial | Full Build-Out | Now |
5113-5146 Commercial Way
5113 Commercial Way - Alpine Business Park & Self Storage
1,740 - 6,915 SF
|
Upon Request
Upon Request
Upon Request
Upon Request
Upon Request
Upon Request
Building Type/Class
Industrial/B
Building Subtype
Warehouse
Building Size
24,000 SF
Lot Size
6.70 AC
Year Built
1990
Construction
Wood Frame
Clear Height
21’
Drive In Bays
38
Sprinkler System
Dry
Lighting
Fluorescent
Power Supply
Amps: 200 Volts: 208-240 Phase: 3
Zoning
M4 - M4 Business Park. Light industrial
5113 Commercial Way - 1st Floor - 5&6
Size
2,200 SF
Term
Negotiable
Rental Rate
Upon Request
Upon Request
Upon Request
Upon Request
Space Use
Industrial
Build-Out
Full Build-Out
Available
Now
5113 Commercial Way - 1st Floor - 7
Size
1,740 SF
Term
Negotiable
Rental Rate
Upon Request
Upon Request
Upon Request
Upon Request
Space Use
Industrial
Build-Out
Full Build-Out
Available
Now
5113 Commercial Way - 1st Floor - 8
Size
2,975 SF
Term
Negotiable
Rental Rate
Upon Request
Upon Request
Upon Request
Upon Request
Space Use
Industrial
Build-Out
Full Build-Out
Available
Now
1 of 1
Videos
Matterport 3D Exterior
Matterport 3D Tour
Photos
Street View
Street
Map
5113 Commercial Way - 1st Floor - 5&6
| Size | 2,200 SF |
| Term | Negotiable |
| Rental Rate | Upon Request |
| Space Use | Industrial |
| Build-Out | Full Build-Out |
| Available | Now |
- Includes 265 SF of dedicated office space
- 2 Loading Docks
- Private Restrooms
1 of 1
Videos
Matterport 3D Exterior
Matterport 3D Tour
Photos
Street View
Street
Map
5113 Commercial Way - 1st Floor - 7
| Size | 1,740 SF |
| Term | Negotiable |
| Rental Rate | Upon Request |
| Space Use | Industrial |
| Build-Out | Full Build-Out |
| Available | Now |
- Includes 650 SF of dedicated office space
- 1 Loading Dock
1 of 1
Videos
Matterport 3D Exterior
Matterport 3D Tour
Photos
Street View
Street
Map
5113 Commercial Way - 1st Floor - 8
| Size | 2,975 SF |
| Term | Negotiable |
| Rental Rate | Upon Request |
| Space Use | Industrial |
| Build-Out | Full Build-Out |
| Available | Now |
- Includes 265 SF of dedicated office space
- 2 Loading Docks
- Private Restrooms
- Shower Facilities
- Yard
1 1
Not walkable
10/100
Exceptionally drivable
90/100
Somewhat bikeable
30/100
1 of 4
Videos
Matterport 3D Exterior
Matterport 3D Tour
Photos
Street View
Street
Map
1 of 1
Presented by
5113-5146 Commercial Way | Hathaway Pines, CA 95233
Already a member? Log In
Hmm, there seems to have been an error sending your message. Please try again.
Thanks! Your message was sent.









