Your email has been sent.
Fort Washington Office Plaza 515 Pennsylvania Ave 2,000 - 80,184 SF of Space Available in Fort Washington, PA 19034



Highlights
- High visibility location immediate to the PA Turnpike Fort Washingto Interchange
- SEPTA bus service at curbside, ample on-site parking
- Ideal for a variety of uses
- Convenient to area's major roadways, 1/2 mile from Fort Washington Train Station
- Customizable suites
Display Rental Rate as
- Space
- Size
- Term
- Rental Rate
- Space Use
- Build-Out
- Available
Great location.
- Listed lease rate plus proportional share of electrical cost
- Mostly Open Floor Plan Layout
- Finished Ceilings: 12’8”
- Natural Light
- Two (2) sides of glass.
- Partially Built-Out as Standard Office
- Fits 5 - 46 People
- Can be combined with additional space(s) for up to 9,822 SF of adjacent space
- Corner suite.
Large space.
- Listed lease rate plus proportional share of electrical cost
- Mostly Open Floor Plan Layout
- Can be combined with additional space(s) for up to 9,822 SF of adjacent space
- Great location.
- Partially Built-Out as Standard Retail Space
- Fits 5 - 34 People
- Natural Light
Elevator served 2nd floor corner suite located directly off lobby in very good condition with perimeter offices, kitchen, and conference rooms. This suite can be combined with Suite 202 (12,772 SF) for a total of 22,203 SF of contiguous space.
- Listed lease rate plus proportional share of electrical cost
- Mostly Open Floor Plan Layout
- 2 Conference Rooms
- Can be combined with additional space(s) for up to 22,083 SF of adjacent space
- Corner suite.
- Skylights for enhanced natural light.
- Partially Built-Out as Standard Office
- Fits 5 - 75 People
- Finished Ceilings: 12’8”
- Natural Light
- Two (2) sides of glass.
- Elevator served.
12'8" clear height available with additional skylights throughout the space. Corner suite, with two sides of glass. This suite can be combined with Suite 201 (9,311 SF) for a total availability of 22,083 SF of contiguous space. The second floor is served by three (3) elevators.
- Listed lease rate plus proportional share of electrical cost
- Open Floor Plan Layout
- Finished Ceilings: 10’ - 12’8”
- Natural Light
- Two (2) sides of glass.
- Partially Built-Out as Standard Office
- Fits 5 - 103 People
- Can be combined with additional space(s) for up to 22,083 SF of adjacent space
- 2nd floor corner suite with skylights
| Space | Size | Term | Rental Rate | Space Use | Build-Out | Available |
| 1st Floor, Ste 102 | 2,000-5,650 SF | 1-20 Years | $22.50 /SF/YR $1.88 /SF/MO $127,125 /YR $10,594 /MO | Office/Retail | Partial Build-Out | Now |
| 1st Floor, Ste 103 | 2,000-4,172 SF | Negotiable | $22.50 /SF/YR $1.88 /SF/MO $93,870 /YR $7,823 /MO | Office/Retail | Partial Build-Out | Now |
| 2nd Floor, Ste 201 | 2,000-9,311 SF | 1-20 Years | $22.50 /SF/YR $1.88 /SF/MO $209,498 /YR $17,458 /MO | Office/Medical | Partial Build-Out | Now |
| 2nd Floor, Ste 202 | 2,000-12,772 SF | 1-20 Years | $22.50 /SF/YR $1.88 /SF/MO $287,370 /YR $23,948 /MO | Office/Medical | Partial Build-Out | Now |
1st Floor, Ste 102
| Size |
| 2,000-5,650 SF |
| Term |
| 1-20 Years |
| Rental Rate |
| $22.50 /SF/YR $1.88 /SF/MO $127,125 /YR $10,594 /MO |
| Space Use |
| Office/Retail |
| Build-Out |
| Partial Build-Out |
| Available |
| Now |
1st Floor, Ste 103
| Size |
| 2,000-4,172 SF |
| Term |
| Negotiable |
| Rental Rate |
| $22.50 /SF/YR $1.88 /SF/MO $93,870 /YR $7,823 /MO |
| Space Use |
| Office/Retail |
| Build-Out |
| Partial Build-Out |
| Available |
| Now |
2nd Floor, Ste 201
| Size |
| 2,000-9,311 SF |
| Term |
| 1-20 Years |
| Rental Rate |
| $22.50 /SF/YR $1.88 /SF/MO $209,498 /YR $17,458 /MO |
| Space Use |
| Office/Medical |
| Build-Out |
| Partial Build-Out |
| Available |
| Now |
2nd Floor, Ste 202
| Size |
| 2,000-12,772 SF |
| Term |
| 1-20 Years |
| Rental Rate |
| $22.50 /SF/YR $1.88 /SF/MO $287,370 /YR $23,948 /MO |
| Space Use |
| Office/Medical |
| Build-Out |
| Partial Build-Out |
| Available |
| Now |
- Space
- Size
- Term
- Rental Rate
- Space Use
- Build-Out
- Available
Versatile corner space with drive-in door currently demised with open work area, kitchen, conference rooms, and perimeter offices. This space is ideal for a variety of uses, including and not limited to flex-industrial, office, retail, medical, etc., looking to benefit from a flexible floor plan, highly visible location, ample on-site parking, and immediate proximity to the PA Turnpike (Ft. Washington Interchange), PA Route 309, and the area's other major roadways. This suite may be combined with adjacent spaces for a total of 45,000 SF of contiguous space.
- Listed lease rate plus proportional share of electrical cost
- Can be combined with additional space(s) for up to 48,279 SF of adjacent space
- Divisible to 8,936 SF
- Drive-in door(s)
- Includes 8,936 SF of dedicated office space
- Finished Ceilings: 12’8”
- Expansion capabilities to 45,000 S
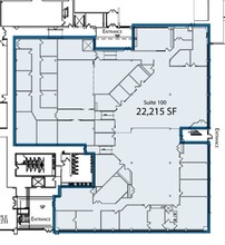
Very flexible corner suite located directly off lobby with open work area, conference rooms, and perimeter offices. This space may be combined with Suite 100 (13,279 SF) for a total contiguous space of 22,215 SF.
- Listed lease rate plus proportional share of electrical cost
- Can be combined with additional space(s) for up to 48,279 SF of adjacent space
- Great location.
- Includes 13,279 SF of dedicated office space
- Finished Ceilings: 12’8”
Great location.
- Listed lease rate plus proportional share of electrical cost
- Mostly Open Floor Plan Layout
- Finished Ceilings: 12’8”
- Natural Light
- Two (2) sides of glass.
- Partially Built-Out as Standard Office
- Fits 5 - 46 People
- Can be combined with additional space(s) for up to 9,822 SF of adjacent space
- Corner suite.
Large space.
- Listed lease rate plus proportional share of electrical cost
- Mostly Open Floor Plan Layout
- Can be combined with additional space(s) for up to 9,822 SF of adjacent space
- Great location.
- Partially Built-Out as Standard Retail Space
- Fits 5 - 34 People
- Natural Light
Elevator served 2nd floor corner suite located directly off lobby in very good condition with perimeter offices, kitchen, and conference rooms. This suite can be combined with Suite 202 (12,772 SF) for a total of 22,203 SF of contiguous space.
- Listed lease rate plus proportional share of electrical cost
- Mostly Open Floor Plan Layout
- 2 Conference Rooms
- Can be combined with additional space(s) for up to 22,083 SF of adjacent space
- Corner suite.
- Skylights for enhanced natural light.
- Partially Built-Out as Standard Office
- Fits 5 - 75 People
- Finished Ceilings: 12’8”
- Natural Light
- Two (2) sides of glass.
- Elevator served.
12'8" clear height available with additional skylights throughout the space. Corner suite, with two sides of glass. This suite can be combined with Suite 201 (9,311 SF) for a total availability of 22,083 SF of contiguous space. The second floor is served by three (3) elevators.
- Listed lease rate plus proportional share of electrical cost
- Open Floor Plan Layout
- Finished Ceilings: 10’ - 12’8”
- Natural Light
- Two (2) sides of glass.
- Partially Built-Out as Standard Office
- Fits 5 - 103 People
- Can be combined with additional space(s) for up to 22,083 SF of adjacent space
- 2nd floor corner suite with skylights
| Space | Size | Term | Rental Rate | Space Use | Build-Out | Available |
| 1st Floor - 100 | 13,279-35,000 SF | 1-20 Years | $22.50 /SF/YR $1.88 /SF/MO $787,500 /YR $65,625 /MO | Flex | Partial Build-Out | Now |
| 1st Floor - 101 | 13,279 SF | 1-20 Years | $22.50 /SF/YR $1.88 /SF/MO $298,778 /YR $24,898 /MO | Flex | Partial Build-Out | Now |
| 1st Floor, Ste 102 | 2,000-5,650 SF | 1-20 Years | $22.50 /SF/YR $1.88 /SF/MO $127,125 /YR $10,594 /MO | Office/Retail | Partial Build-Out | Now |
| 1st Floor, Ste 103 | 2,000-4,172 SF | Negotiable | $22.50 /SF/YR $1.88 /SF/MO $93,870 /YR $7,823 /MO | Office/Retail | Partial Build-Out | Now |
| 2nd Floor, Ste 201 | 2,000-9,311 SF | 1-20 Years | $22.50 /SF/YR $1.88 /SF/MO $209,498 /YR $17,458 /MO | Office/Medical | Partial Build-Out | Now |
| 2nd Floor, Ste 202 | 2,000-12,772 SF | 1-20 Years | $22.50 /SF/YR $1.88 /SF/MO $287,370 /YR $23,948 /MO | Office/Medical | Partial Build-Out | Now |
1st Floor - 100
| Size |
| 13,279-35,000 SF |
| Term |
| 1-20 Years |
| Rental Rate |
| $22.50 /SF/YR $1.88 /SF/MO $787,500 /YR $65,625 /MO |
| Space Use |
| Flex |
| Build-Out |
| Partial Build-Out |
| Available |
| Now |
1st Floor - 101
| Size |
| 13,279 SF |
| Term |
| 1-20 Years |
| Rental Rate |
| $22.50 /SF/YR $1.88 /SF/MO $298,778 /YR $24,898 /MO |
| Space Use |
| Flex |
| Build-Out |
| Partial Build-Out |
| Available |
| Now |
1st Floor, Ste 102
| Size |
| 2,000-5,650 SF |
| Term |
| 1-20 Years |
| Rental Rate |
| $22.50 /SF/YR $1.88 /SF/MO $127,125 /YR $10,594 /MO |
| Space Use |
| Office/Retail |
| Build-Out |
| Partial Build-Out |
| Available |
| Now |
1st Floor, Ste 103
| Size |
| 2,000-4,172 SF |
| Term |
| Negotiable |
| Rental Rate |
| $22.50 /SF/YR $1.88 /SF/MO $93,870 /YR $7,823 /MO |
| Space Use |
| Office/Retail |
| Build-Out |
| Partial Build-Out |
| Available |
| Now |
2nd Floor, Ste 201
| Size |
| 2,000-9,311 SF |
| Term |
| 1-20 Years |
| Rental Rate |
| $22.50 /SF/YR $1.88 /SF/MO $209,498 /YR $17,458 /MO |
| Space Use |
| Office/Medical |
| Build-Out |
| Partial Build-Out |
| Available |
| Now |
2nd Floor, Ste 202
| Size |
| 2,000-12,772 SF |
| Term |
| 1-20 Years |
| Rental Rate |
| $22.50 /SF/YR $1.88 /SF/MO $287,370 /YR $23,948 /MO |
| Space Use |
| Office/Medical |
| Build-Out |
| Partial Build-Out |
| Available |
| Now |
1st Floor - 100
| Size | 13,279-35,000 SF |
| Term | 1-20 Years |
| Rental Rate | $22.50 /SF/YR |
| Space Use | Flex |
| Build-Out | Partial Build-Out |
| Available | Now |
Versatile corner space with drive-in door currently demised with open work area, kitchen, conference rooms, and perimeter offices. This space is ideal for a variety of uses, including and not limited to flex-industrial, office, retail, medical, etc., looking to benefit from a flexible floor plan, highly visible location, ample on-site parking, and immediate proximity to the PA Turnpike (Ft. Washington Interchange), PA Route 309, and the area's other major roadways. This suite may be combined with adjacent spaces for a total of 45,000 SF of contiguous space.
- Listed lease rate plus proportional share of electrical cost
- Includes 8,936 SF of dedicated office space
- Can be combined with additional space(s) for up to 48,279 SF of adjacent space
- Finished Ceilings: 12’8”
- Divisible to 8,936 SF
- Expansion capabilities to 45,000 S
- Drive-in door(s)
1st Floor - 101
| Size | 13,279 SF |
| Term | 1-20 Years |
| Rental Rate | $22.50 /SF/YR |
| Space Use | Flex |
| Build-Out | Partial Build-Out |
| Available | Now |
Very flexible corner suite located directly off lobby with open work area, conference rooms, and perimeter offices. This space may be combined with Suite 100 (13,279 SF) for a total contiguous space of 22,215 SF.
- Listed lease rate plus proportional share of electrical cost
- Includes 13,279 SF of dedicated office space
- Can be combined with additional space(s) for up to 48,279 SF of adjacent space
- Finished Ceilings: 12’8”
- Great location.
1st Floor, Ste 102
| Size | 2,000-5,650 SF |
| Term | 1-20 Years |
| Rental Rate | $22.50 /SF/YR |
| Space Use | Office/Retail |
| Build-Out | Partial Build-Out |
| Available | Now |
Great location.
- Listed lease rate plus proportional share of electrical cost
- Partially Built-Out as Standard Office
- Mostly Open Floor Plan Layout
- Fits 5 - 46 People
- Finished Ceilings: 12’8”
- Can be combined with additional space(s) for up to 9,822 SF of adjacent space
- Natural Light
- Corner suite.
- Two (2) sides of glass.
1st Floor, Ste 103
| Size | 2,000-4,172 SF |
| Term | Negotiable |
| Rental Rate | $22.50 /SF/YR |
| Space Use | Office/Retail |
| Build-Out | Partial Build-Out |
| Available | Now |
Large space.
- Listed lease rate plus proportional share of electrical cost
- Partially Built-Out as Standard Retail Space
- Mostly Open Floor Plan Layout
- Fits 5 - 34 People
- Can be combined with additional space(s) for up to 9,822 SF of adjacent space
- Natural Light
- Great location.
2nd Floor, Ste 201
| Size | 2,000-9,311 SF |
| Term | 1-20 Years |
| Rental Rate | $22.50 /SF/YR |
| Space Use | Office/Medical |
| Build-Out | Partial Build-Out |
| Available | Now |
Elevator served 2nd floor corner suite located directly off lobby in very good condition with perimeter offices, kitchen, and conference rooms. This suite can be combined with Suite 202 (12,772 SF) for a total of 22,203 SF of contiguous space.
- Listed lease rate plus proportional share of electrical cost
- Partially Built-Out as Standard Office
- Mostly Open Floor Plan Layout
- Fits 5 - 75 People
- 2 Conference Rooms
- Finished Ceilings: 12’8”
- Can be combined with additional space(s) for up to 22,083 SF of adjacent space
- Natural Light
- Corner suite.
- Two (2) sides of glass.
- Skylights for enhanced natural light.
- Elevator served.
2nd Floor, Ste 202
| Size | 2,000-12,772 SF |
| Term | 1-20 Years |
| Rental Rate | $22.50 /SF/YR |
| Space Use | Office/Medical |
| Build-Out | Partial Build-Out |
| Available | Now |
12'8" clear height available with additional skylights throughout the space. Corner suite, with two sides of glass. This suite can be combined with Suite 201 (9,311 SF) for a total availability of 22,083 SF of contiguous space. The second floor is served by three (3) elevators.
- Listed lease rate plus proportional share of electrical cost
- Partially Built-Out as Standard Office
- Open Floor Plan Layout
- Fits 5 - 103 People
- Finished Ceilings: 10’ - 12’8”
- Can be combined with additional space(s) for up to 22,083 SF of adjacent space
- Natural Light
- 2nd floor corner suite with skylights
- Two (2) sides of glass.
Property Overview
515 Pennsylvania Avenue is a multi-tenant, multi-elevator served, two-story professional office building comprised of 82,000 square feet of first-class office and medical office space conveniently located within immediate proximity to the area’s major roadways and SEPTA regional commuter rail and bus services. Situated at the gateway to the Fort Washington Office Park, 515 Pennsylvania Avenue benefits greatly from an abundance of convenient on-site parking, professional property management, and immediate proximity to the Fort Washington Interchange of the east-west Pennsylvania Turnpike (Route 276), the north-south Pennsylvania Route 309, and the area’s other major roadways including Bethlehem Pike, Church Road (Rt. 73), Limekiln Pike (Rt. 152), and Welsh Road (Rt. 63). SEPTA’s Fort Washington Commuter Train Station (R-5 Line) is just up the street, and SEPTA Bus Routes 94, 95, and 201 further enhance the property’s accessibility. SEPTA Bus Route 201, which exclusively serves to connect the Fort Washington Train Station directly with the Fort Washington Office Park, has a regularly scheduled curbside stop at 515 Pennsylvania Avenue. Fort Washington Plaza is strategically located at the base of the Pennsylvania Turnpike Ft. Washington Interchange serving as the Gateway to the Fort Washington Business Park. An attractive, 82,000 SF, two storyy building, this professionally maintained property offers convenient access, ample on-site parking, first class space, flexible floor plans, and excellent tenant signage on well-travelled Pennsylvania Avenue.
- 24 Hour Access
- Bus Line
- Commuter Rail
- Wheelchair Accessible
- Air Conditioning
Property Facts
Select Tenants
- Floor
- Tenant Name
- Industry
- 2nd
- Chariot Solutions LLC
- Professional, Scientific, and Technical Services
- 1st
- RN Plus
- Administrative and Support Services
- 2nd
- Temple Health
- Health Care and Social Assistance
Presented by
Fort Washington Office Plaza | 515 Pennsylvania Ave
Hmm, there seems to have been an error sending your message. Please try again.
Thanks! Your message was sent.












